Bosch PIT611F17E Senza cornice Piano cottura ad induzione 60 cm - vetroceramica: инструкция
Раздел: Бытовая, кухонная техника, электроника и оборудование
Тип: Плита
Инструкция к Плите Bosch PIT611F17E Senza cornice Piano cottura ad induzione 60 cm - vetroceramica

*9000343103* 9000343103 921121
Û Instrucciones de montaje
ê Monteringsveiledning
Ø Montageanleitung
Ù Οδηγίες εγκατάστασης
Ú Installation instructions
ó Monteringsanvisning
Þ Notice de montage
Ý Asennusohje
â Istruzioni per il montaggio
ë Instrukcja montażu
é Installatievoorschrift
ô Montaj kılavuzu
× Monteringsvejledning
î Инструкция по монтажу
ì Instruções de montagem
[
5
%
'
&
(
$
%
PLQ
PLQ
PLQ
$
&'
PLQ
PLQ
PLQ
&
PLQ
PLQ
DE F
PLQ
PLQ
(
PLQPLQ PLQ
PD[
PD[
PLQ
PLQ
PLQ
PLQ
PLQ PLQ PLQ
PLQPD[ PLQPD[
PLQ
PLQ

PLQ
PLQ
PLQ
D E
PLQ
PLQ
PLQ

es
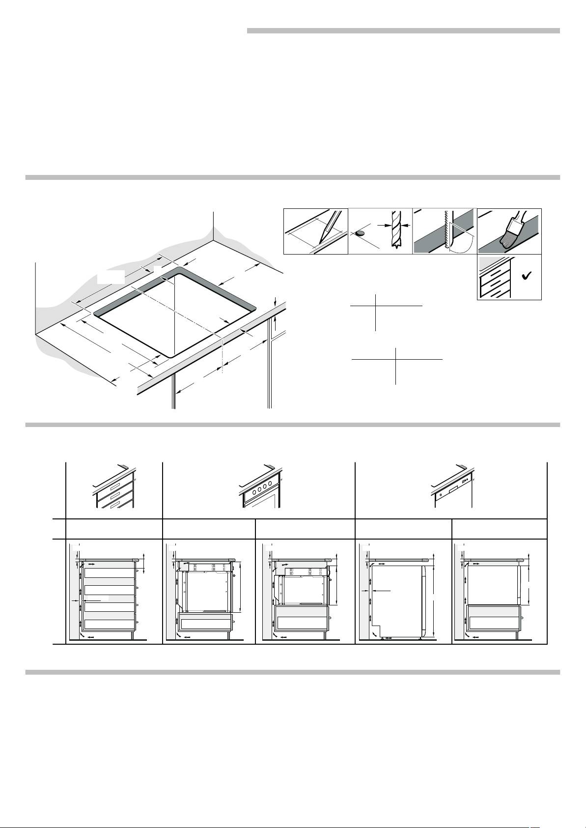
Encimera: debe tener como mínimo un grosor de 20 mm.
Û
Instrucciones de montaje
La distancia entre la parte superior de la encimera y la parte
superior del cajón debe ser de 65 mm.
Observaciones importantes
Montaje sobre horno, figura 2b
Seguridad: la seguridad durante el uso sólo está garantizada si
la instalación se ha efectuado de manera correcta en el aspecto
Encimera: debe tener como mínimo un grosor de:
técnico y en conformidad con estas instrucciones de montaje.
■ 20 mm si se instala sobre un horno compacto.
Los daños causados por un montaje inadecuado serán
■ 30 mm si se instala sobre un horno no compacto.
responsabilidad del instalador.
Si la placa se ha instalado sobre un horno compacto, deben
Conexión eléctrica: sólo a cargo de un técnico especialista
dejarse 60 mm de distancia entre la parte superior del horno y
autorizado. Se tendrá que regir por las disposiciones de la
la parte superior de la encimera.
compañía abastecedora de electricidad de la zona.
Montaje sobre lavavajillas, figura 2c
Tipo de conexión: el aparato pertenece a la clase de
Se debe instalar un accesorio intermedio. El accesorio se debe
protección I y sólo puede utilizarse en combinación con una
solicitar a nuestro Servicio de Asistencia Técnica. El código de
conexión con conductor de toma a tierra.
referencia de este accesorio es el 680502.
El fabricante no se hace responsable del funcionamiento
Encimera: debe tener un grosor de 20 mm como mínimo y
inadecuado y de los posibles daños motivados por
40 mm como máximo.
instalaciones eléctricas no adecuadas.
La distancia entre la parte superior de la encimera y la parte
Instalación: el aparato debe ser conectado a una instalación
superior del lavavajillas debe ser de:
fija y deben ser incorporados medios de desconexión a la
instalación fija de acuerdo a las reglamentaciones de la
■ 60 mm si se instala sobre un lavavajillas compacto.
instalación.
■ 65 mm si se instala sobre un lavavajillas no compacto.
Montaje empotrado bajo encimera: las placas de inducción
Ventilación, figura 4
sólo pueden ser instaladas sobre cajón, hornos con ventilación
Teniendo en cuenta la ventilación de la placa, es necesario:
forzada de la misma marca o lavavajillas de la misma marca.
Debajo de la placa de cocción no se pueden instalar
■ una abertura en la parte superior de la pared trasera del
frigoríficos, hornos sin ventilación o lavadoras.
mueble (figura 4a).
Cable de alimentación: no aprisionar el cable de alimentación
■ una separación entre la parte trasera del mueble y la pared
ni pasarlo por bordes afilados. Si hay un horno montado
de la cocina (figura 4b).
debajo, pasar el cable por las esquinas traseras del horno
hasta la caja de conexión. Debe colocarse de manera que no
Instalar el aparato, figuras 5/6
toque partes calientes de la placa de cocción o del horno.
Conectar el aparato a la red eléctrica y comprobar su
Encimera: plana, horizontal, estable. Siga las instrucciones del
funcionamiento.
fabricante de la encimera.
■ Tensión, ver placa de características.
Garantía: una instalación, conexión o montaje inadecuado
■ Conectar exclusivamente según el esquema de conexión
supone la pérdida de validez de la garantía del producto.
(figura 6).
Nota: Cualquier manipulación en el interior del aparato,
1. Marrón
incluyendo el cambio del cable de alimentación, deberá
2. Negro
realizarlo únicamente personal técnico del Servicio de
3. Azul
Asistencia con formación específica.
4. Blanco
Preparación de los muebles de montaje,
5. Amarillo y verde
figuras 1/2/3/4
Desmontar el aparato
Muebles empotrados: resistentes a una temperatura de 90°C
Desconectar el aparato de la red eléctrica.
como mínimo.
Extraer la placa de cocción ejerciendo presión desde abajo.
Hueco: retirar las virutas después de los trabajos de corte.
Superficies de corte: sellar con material resistente al calor.
¡Atención!
¡Daños en el aparato! No intente extraer el aparato haciendo
Montaje sobre el cajón, figura 2a
palanca desde arriba.
Los objetos metálicos que se encuentren en el cajón podrían
alcanzar temperaturas elevadas debido a la recirculación del
aire procedente de la ventilación de la placa, si esto ocurre, se
recomienda utilizar un soporte intermedio.
Soporte intermedio: se puede utilizar un panel de madera
(figura 3) o adquirir un accesorio adecuado en nuestro Servicio
de Asistencia Técnica. El código de referencia de este
accesorio es el 680502.
99a
991a
99/1a
1/
+]+]
+]+]
+]+]
/
/
/
/
/
9
9
9
9
9
9
9
9
1
1
1
9
9
1

de
Gebläse, Abbildung 4
Ø
Montageanleitung
Für die Lüftung des Kochfelds ist Folgendes notwendig:
Wichtige Hinweise
■ Eine Öffnung im oberen Bereich der Rückwand des Möbels
(Abbildung 4a).
Sicherheitshinweis: Die Sicherheit während des Gebrauchs ist
■ Ein Abstand zwischen der Rückwand des Möbels und der
nur gewährleistet, wenn der Einbau technisch korrekt und
Küchenwand (Abbildung 4b).
gemäß diesen Montageanweisungen vorgenommen wurde.
Schäden, die durch einen unsachgemäßen Einbau entstehen,
Einbau des Geräts, Abbildungen 5/6
liegen in der Verantwortung des Monteurs.
Das Gerät ans Stromnetz anschließen und auf einen korrekten
Elektrischer Anschluss: Darf nur von einem Elektriker vorge-
Betrieb überprüfen.
nommen werden. Dabei gelten die Bestimmungen der örtlichen
Stromversorger.
■ Für die elektrische Spannung siehe Typenschild.
Anschlusstypen: Das Gerät gehört zur Schutzklasse I und darf
■ Nur nach dem Anschlussplan anschließen (Abb. 6).
nur in Kombination mit einem geerdeten Anschluss verwendet
1. Braun
werden.
2. Schwarz
Der Hersteller übernimmt keine Verantwortung für Betriebsstö-
3. Blau
rungen oder mögliche Schäden wegen fehlerhafter elektrischer
4. Weiß
Installationen.
5. Gelb und grün
Einbau: Das Gerät muss fest angeschlossen werden, und es
müssen beim festen Anschluss gemäß den Montagevorschriften
Ausbau des Geräts
Trennungsvorrichtungen eingebaut werden.
Das Gerät von der Stromzufuhr trennen.
Einbau unter der Arbeitsplatte: Induktionskochfelder dürfen nur
über Schubfächern, Backöfen mit Gebläse desselben Herstel-
Entnehmen Sie das Kochfeld, indem Sie von unten dagegen
lers oder Geschirrspülern desselben Herstellers eingebaut wer-
drücken.
den. Unter dem Kochfeld dürfen keine Kühlschränke, Backöfen
Achtung!
ohne Gebläse oder Waschmaschinen eingebaut werden.
Schäden am Gerät! Versuchen Sie nicht, das Gerät durch
Netzkabel: Das Netzkabel nicht einklemmen oder über scharfe
Hebeln von oben zu entnehmen.
Kanten führen. Wenn sich darunter ein Backofen befindet, das
Kabel über die hinteren Kanten des Backofens bis zur
Anschlussdose führen. Das Netzkabel muss so angebracht wer-
den, dass heiße Teile des Kochfelds oder Backofens nicht
berührt werden.
Arbeitsplatte: eben, horizontal, stabil. Den Anweisungen des
Herstellers der Arbeitsplatte folgen.
Garantie: Ein unsachgemäßer Einbau, Anschluss oder Montage
führt zum Verlust der Garantie.
Hinweis: Jegliche Arbeiten im Geräteinneren, einschließlich
Austausch des Netzkabels, müssen vom eigens dafür ausgebil-
deten Kundendienst vorgenommen werden.
Vorbereitung der Einbaumöbel, Abb. 1, 2, 3, 4
Einbaumöbel: Müssen über eine Temperaturbeständigkeit von
mindestens 90 °C verfügen.
Aussparung: Späne nach den Schnittarbeiten entfernen.
Schnittoberflächen: Mit hitzebeständigem Material versiegeln.
Einbau über dem Schubfach, Abbildung 2a
Im Schubfach befindliche Metallgegenstände können durch den
Rückstrom der Luft der Belüftung des Kochfelds hohe Tempera-
turen erreichen, daher wird empfohlen, einen Zwischenboden
einzubauen.
Zwischenboden: Es kann eine Holzplatte verwendet werden
(Abbildung 3) oder ein geeignetes Zubehörteil, das über unse-
ren Technischen Kundendienst bezogen werden kann. Die Arti-
kelnummer für dieses Zubehörteil lautet 680502.
Arbeitsplatte: Muss über eine Dicke von mindestens 20 mm ver-
fügen.
Der Abstand zwischen dem oberen Bereich der Arbeitsplatte
und dem oberen Bereich des Schubfachs muss 65 mm betra-
gen.
Montage über dem Backofen, Abbildung 2b
Arbeitsplatte: Muss über folgende Mindestdicke verfügen:
■ 20 mm bei Einbau über einem Kompaktbackofen.
■ 30 mm bei Einbau über einem normalen Backofen.
Bei Einbau über einem Kompaktbackofen muss sich ein
Abstand von 60 mm zwischen dem oberen Teil des Backofens
und dem oberen Teil der Arbeitsplatte befinden.
Einbau über einem Geschirrspüler, Abbildung 2c
Es muss ein Zubehörteil dazwischen eingebaut werden. Zube-
hörteile erhalten Sie bei unserem Kundendienst. Die Artikelnum-
mer für dieses Zubehörteil lautet 680502.
Arbeitsplatte: Muss über eine Dicke von mindestens von 20 mm
und höchstens 40 mm verfügen.
Es muss folgender Abstand zwischen dem oberen Bereich der
Arbeitsplatte und dem oberen Bereich des Geschirrspülers ein-
gehalten werden:
■ 60 mm bei Einbau über einem Kompakt-Geschirrspüler.
■ 65 mm bei Einbau über einem normalen Geschirrspüler.
en
Ú
In stallati on in struc ti ons
Important notes
Safety: Safety in use is only guaranteed if the technical
installation of the hob has been carried out correctly and in
accordance with the assembly instructions. The installation
technician shall be liable for any damage caused as a result of
unsuitable installation.
Electric connection: Only by an authorised specialist
technician. The guidelines set out by the local electricity provider
must be observed.
Type of connection: The appliance falls under protection class I
and can only be used in combination with a grounding
conductor connection.
The manufacturer accepts no responsibility for any malfunction
or damage caused by incorrect electrical installations.
Installation: The appliance must be connected to a fixed
installation and the means of disconnecting it from the fixed
installation must be installed according to the installation
instructions.
Built-in assembly under worktop: The induction hobs may only
be installed over a drawer, ovens with forced ventilation from the
same brand and dishwashers from the same brand.
Refrigerators, unventilated ovens and washing machines may
not be installed beneath the hob.
Power cable: Do not tie the power cable or pass it along sharp
edges. If there is an oven installed below, pass the cable along
the rear corners of the oven to the connection box. It must be
positioned so that it does not touch any of the hot parts of the
hob or the oven.
Hob: flat, horizontal, stable. Follow the hob manufacturer's
instructions.
Warranty: an unsuitable installation, connection or assembly will
invalidate the product warranty.
Note: Any change to the appliance's interior, including changing
the power cable, must only be performed by specially trained
members of the Technical Assistance Service.
Preparation of assembly kitchen units,
figures 1/2/3/4
Built-in kitchen units: Minimum temperature resistance of
90°C.
Gap: Remove any shavings after performing cutting work.
Cut surfaces: Seal with heat resistant material.
Assembly over drawer, figure 2a
Metal objects stored inside the drawer could become very hot
due to the air recirculating from the hob ventilation system. If
this occurs, an intermediate support is recommended.
Intermediate support: A wooden panel can be used (figure 3) or
you may order a suitable accessory from our Technical
Assistance Service. The reference code for this accessory
is 680502.

Worktop: Must have a minimum thickness of 20 mm.
The distance between the top of the working surface and the top
of the drawer must be 65 mm.
Assembly over oven, figure 2b
Worktop: Must have a minimum thickness of:
■ 20 mm if installed over a compact oven.
■ 30 mm if installed over a full-size oven.
If the hob is installed over a compact oven, there must be a
distance of 60 mm between the top of the oven and the top of
the working surface.
Assembly over dishwasher, figure 2c
An intermediate accessory must be installed. The accessory
may be ordered from our Technical Assistance Service. The
reference code for this accessory is 680502.
Worktop: Must have a minimum thickness of 20 mm and
maximum thickness of 40 mm.
The space between the top of the working surface and the top
of the dishwasher must be:
■ 60 mm if installed over a compact dishwasher.
■ 65 mm if installed over a full-size dishwasher.
Ventilation, figure 4
Ventilating the hob requires:
■ An opening on the upper part of the kitchen unit's rear wall
(figure 4a).
■ A separation between the rear part of the kitchen unit and
kitchen wall (figure 4b).
Installing the appliance, figures 5/6
Connect the appliance to the mains to check its working.
■ Voltage, see specifications plate.
■ Connect only according to the connection drawing (figure 6).
1. Brown
2. Black
3. Blue
4. White
5. Yellow and green
Uninstalling the appliance
Disconnect the appliance from the mains.
Push the hob upwards from below to remove it.
Caution!
Damage to the appliance! Do not try to remove the appliance by
prying it out from above.
fr
Plan de travail : plat, horizontal, stable. Respectez les
instructions du fabricant du plan de travail.
Garantie : une mauvaise installation, un mauvais branchement
ou un montage inadapté peuvent conduire à la perte de validité
de la garantie du produit.
Remarque : Toute manipulation à l'intérieur de l'appareil, y
compris le remplacement du câble d'alimentation, devra être
effectuée par du personnel technique du service d'assistance
technique ayant reçu une formation spécifique.
Préparation des meubles de montage,
schémas 1, 2, 3 et 4
Meubles encastrés : capables de résister à une température
d'au moins 90 °C.
Creux d'encastrement : retirer les copeaux dus à la découpe.
Surfaces de découpe : sceller à l'aide d'un matériau résistant à
la chaleur.
Montage sur tiroir, schéma 2a
Les objets métalliques qui se trouvent dans le tiroir pourraient
atteindre des températures élevées en raison de la recirculation
de l'air provenant de la ventilation de la plaque, c'est pourquoi il
est recommandé d'utiliser un support intermédiaire.
Support intermédiaire :il est possible d'utiliser un panneau en
bois (schéma 3) ou d'acheter un accessoire approprié auprès
de notre service d'assistance technique. Le code de référence
de cet accessoire est le 680502.
Plan de travail : son épaisseur minimum doit être de 20 mm.
La distance entre la partie supérieure du plan de travail et la
partie supérieure du tiroir doit être de 65 mm.
Montage sur four, schéma 2b
Plan de travail : son épaisseur minimum doit être de :
■ 20 mm en cas d'installation sur un four compact.
■ 30 mm en cas d'installation sur un four non compact.
Si la plaque a été installée sur un four compact, il faut laisser
60 mm de distance entre la partie supérieure du four et la partie
supérieure du plan de travail.
Montage sur lave-vaisselle, schéma 2c
Il faut installer un accessoire intermédiaire. Demandez
l'accessoire auprès de notre service d'assistance technique. Le
code de référence de cet accessoire est le 680502.
Plan de travail : son épaisseur doit être de 20 mm minimum et
de 40 mm maximum.
La distance entre la partie supérieure du plan de travail et la
partie supérieure du lave-vaisselle doit être de :
■ 60 mm en cas d'installation sur un lave-vaisselle compact.
■ 65 mm en cas d'installation sur un lave-vaisselle non
Þ
Not ic e de mo ntage
compact.
Remarques importantes
Ventilation, schéma 4
Pour prendre en compte la ventilation de la plaque, il faut
Sécurité : la sécurité pendant l'utilisation n'est garantie que si
prévoir :
l'installation a été effectuée de manière correcte du point de vue
technique et conformément à ces instructions de montage.
■ une ouverture dans la partie supérieure de la face arrière du
L'installateur sera responsable de tout dommage provoqué par
meuble (schéma 4a).
un montage incorrect.
■ une séparation entre la face arrière du meuble et le mur de la
Connexion électrique : ne peut être effectuée que par un
cuisine (schéma 4b).
spécialiste autorisé. Il devra suivre les dispositions du
fournisseur d'électricité dans la zone.
Installer l'appareil, schémas 5/6
Type de branchement : l'appareil fait partie de la classe de
Brancher l'appareil au réseau électrique et vérifier son
protection I et ne peut être utilisé qu'avec une prise possédant
fonctionnement.
un conducteur de prise de terre.
■ Tension, voir la plaque signalétique.
Le fabricant se dégage de toute responsabilité quant au
■ Réaliser le branchement en suivant exclusivement le schéma
fonctionnement inapproprié et aux possibles dommages
de branchement (schéma 6).
provoqués par des installations électriques non appropriées.
1. Marron
Installation : l'appareil doit être connecté à une installation fixe
2. Noir
et des moyens de déconnexion doivent être prévus sur
3. Bleu
l'installation fixe, conformément aux réglementations de
l'installation.
4. Blanc
Montage encastré sous le plan de travail : les plaques à
5. Jaune et vert
induction ne peuvent être installées que sur tiroir, des fours
avec ventilation forcée de la même marque ou des lave-
Démonter l'appareil
vaisselle de la même marque. Sous la plaque de cuisson, il
Débrancher l'appareil du réseau électrique.
n'est pas possible d'installer des frigos, des fours sans
Extraire la table de cuisson en exerçant une pression depuis le
ventilation ou des lave-linge.
bas.
Câble d'alimentation : ne pas coincer le câble d'alimentation,
Attention !
ne pas le faire passer sur des arêtes vives. S'il y a un four déjà
monté en dessous, faire passer le câble par les coins arrière du
Dommages causés à l'appareil ! Ne pas tenter d'extraire
four jusqu'au boîtier de connexion. Il doit être placé de façon à
l'appareil en faisant levier depuis le haut.
ne toucher aucune partie chaude de la plaque de cuisson ou du
four.

it
La distanza tra la parte superiore del piano di lavoro e la parte
superiore della lavastoviglie deve essere di:
â
Istruzioni per il m ontaggio
■ 60 mm nel caso in cui venga installato su una lavastoviglie
Indicazioni importanti
compatta.
Sicurezza: la sicurezza durante l'uso è garantita solo se
■ 65 mm nel caso in cui venga installato su una lavastoviglie di
l'installazione è stata effettuata in modo corretto dal punto di
altro tipo.
vista tecnico e in conformità con le presenti istruzioni per il
montaggio. I danni causati da un montaggio inadeguato
Ventilazione, figura 4
saranno di responsabilità dell'installatore.
Per assicurare la ventilazione del piano di cottura, è necessario:
Collegamento elettrico: può essere effettuato solo da un
■ disporre di un'apertura nella parte superiore della parete
tecnico specializzato autorizzato. È opportuno rispettare le
posteriore del mobile (figura 4a).
disposizioni della società di fornitura di energia elettrica locale.
■ separare la parte posteriore del mobile dalla parete della
Tipo di collegamento: l'apparecchio appartiene alla classe di
cucina (figura 4b).
protezione I e può essere utilizzato esclusivamente in
combinazione con una connessione dotata di conduttore di
Installare l'apparecchio, figure 5/6
messa a terra.
Collegare l'apparecchio alla rete elettrica e verificare il
Il fabbricante non è responsabile del funzionamento inadeguato
funzionamento.
e dei possibili danni causati da installazioni elettriche non
■ Tensione, vedere la targhetta dei dati.
adeguate.
■ Eseguire il collegamento attenendosi strettamente al relativo
Installazione: l'apparecchio deve essere collegato a una rete
schema (figura 6).
fissa e devono essere installati dispositivi di interruzione
1. Marrone
dell'alimentazione di rete, conformemente alle pertinenti
regolamentazioni.
2. Nero
Montaggio ad incasso sotto il piano di lavoro: le piastre a
3. Blu
induzione possono essere installate esclusivamente sopra
4. Bianco
cassetti, forni a ventilazione forzata della stessa marca, o
5. Giallo e verde
lavastoviglie della stessa marca. Non è possibile installare sotto
il piano di cottura frigoriferi, forni non ventilati o lavatrici.
Smontare l'apparecchio
Cavo di alimentazione: non bloccare il cavo di alimentazione né
Scollegare l'apparecchio dalla rete elettrica.
farlo passare lungo bordi taglienti. Nel caso in cui sotto il piano
Estrarre il piano di cottura premendo dal basso.
di cottura sia montato un forno, far passare il cavo dagli angoli
posteriori del forno fino alla scatola di collegamento. Deve
Attenzione!
essere collocato in modo che non sia a contatto con parti calde
Danni all'apparecchio Non cercare di estrarre l'apparecchio
del piano di cottura o del forno.
facendo leva da sopra.
Piano di lavoro: piatto, orizzontale e stabile. Attenersi alle
istruzioni del fabbricante del piano di lavoro.
Garanzia: la garanzia del prodotto non è valida se
l'installazione, la connessione o il montaggio vengono effettuati
in maniera impropria.
Avvertenza: Qualsiasi tipo di manipolazione all'interno
dell'apparecchio, inclusa la sostituzione del cavo di
alimentazione, deve essere effettuata esclusivamente da
personale del servizio di assistenza tecnica debitamente
formato.
Preparazione dei mobili per il montaggio,
figure 1/2/3/4
Mobili ad incasso: resistenti a una temperatura minima di
90°C.
Foro: rimuovere i trucioli dopo le operazioni di taglio.
Superfici di taglio: chiuderle ermeticamente con materiale
resistente al calore.
Montaggio sopra il cassetto, figura 2a
Gli oggetti metallici che si trovano nel cassetto potrebbero
raggiungere temperature elevate a causa del ricircolo dell'aria
proveniente dalla ventilazione del piano; si raccomanda, quindi,
di utilizzare un supporto intermedio.
Supporto intermedio: si può utilizzare un pannello di legno
(figura 3) oppure acquistare un accessorio adeguato presso il
nostro servizio di assistenza tecnica. Il codice di riferimento di
questo accessorio è 680502.
Il piano di lavoro: deve avere uno spessore minimo di 20 mm.
La distanza tra la parte superiore del piano di lavoro e la parte
superiore del cassetto deve essere di 65 mm.
Montaggio su forno, figura 2b
Il piano di lavoro: deve avere uno spessore minimo di:
■ 20 mm nel caso in cui venga installato su un forno compatto.
■ 30 mm nel caso in cui venga installato su un forno di altro
tipo.
Nel caso in cui il piano di cottura venga installato su un forno
compatto, è necessario lasciare una distanza di 60 mm tra la
parte superiore del forno e la parte superiore del piano di
lavoro.
Montaggio sopra lavastoviglie, figura 2c
È necessario installare un accessorio intermedio. Tale
accessorio dovrà essere richiesto al nostro servizio di
assistenza tecnica. Il codice di riferimento di questo accessorio
è 680502.
Il piano di lavoro: deve avere uno spessore minimo di 20 mm e
massimo di 40 mm.
nl
é
Installatievoorschrift
Belangrijke aanwijzingen
Veiligheid: de veiligheid gedurende het gebruik is alleen
gegarandeerd indien de montage in technisch opzicht op
correcte wijze en in overeenstemming met dit
installatievoorschrift uitgevoerd is. De installateur is
aansprakelijk voor schade veroorzaakt door een ongeschikte
montage.
Elektrische aansluiting: deze mag alleen worden uitgevoerd
door een bevoegd vakman. Deze wordt geregeld door de
voorschriften van de elektriciteitsmaatschappij van de zone.
Type aansluiting: het apparaat behoort tot
beschermingsklasse I en mag alleen worden gebruikt in
combinatie met een aansluiting met aardgeleiding.
De fabrikant is niet aansprakelijk voor de ongeschikte werking
en de mogelijke schade veroorzaakt door ongeschikte
elektrische installaties.
Installatie: het apparaat moet worden aangesloten op een vaste
installatie waarin middelen voor uitschakeling zijn ingebouwd, in
overeenstemming met de reglementeringen van de installatie.
Montage ingebouwd onder het werkblad: inductieplaten
mogen alleen worden geïnstalleerd op een lade, ovens met
gedwongen ventilatie van hetzelfde merk of vaatwassers van
hetzelfde merk. Onder de kookplaat mogen geen koelkasten,
ovens zonder ventilatie of wasmachines geïnstalleerd worden.
Voedingskabel: zorg ervoor dat de voedingskabel niet bekneld
raakt of langs scherpe randen loopt. Indien er een oven onder
gemonteerd is, laat de kabel dan via de achterste hoeken van
de oven tot de aansluitkast lopen. Hij moet zo geplaatst worden
dat er geen hete delen van de kookplaat of de oven geraakt
worden.
Werkblad: vlak, horizontaal, stabiel. Volg de instructies van de
fabrikant van het werkblad op.
Garantie: een ongeschikte installatie, aansluiting of montage
houdt het verlies van de geldigheid van de garantie van het
product in.
Aanwijzing: Elke manipulatie in het apparaat, met inbegrip van
de vervanging van de voedingskabel, moet worden uitgevoerd
door personeel van de Technische Dienst met een specifieke
opleiding.

Gereedmaken van de meubels waarin het apparaat
wordt gemonteerd, afbeeldingen 1/2/3/4
Inbouwmeubelen: ten minste bestand tegen een temperatuur
van 90°C.
Vrije ruimte: verwijder de spaanders na de snijwerkzaamheden.
Snijoppervlakken: afdichten met hittebestendig materiaal.
Montage op de lade, afbeelding 2a
Metalen voorwerpen die zich in de lade bevinden kunnen hoge
temperaturen bereiken, wat te wijten is aan luchtcirculatie
afkomstig van de ventilatie van de plaat. Als dit gebeurt is het
raadzaam om een tussensteun te gebruiken.
Tussensteun: u kunt een houten paneel gebruiken
(afbeelding 3) of een geschikt accessoire aanschaffen bij onze
technische dienst. De referentiecode van dit accessoire
is 680502.
Werkblad: moet een dikte hebben van ten minste 20 mm.
De afstand tussen de bovenzijde van de kookplaat en de
bovenzijde van de lade moet 65 mm bedragen.
Montage op een oven, afbeelding 2b
Werkblad: moet een dikte hebben van ten minste:
■ 20 mm als het op een compacte oven geïnstalleerd wordt.
■ 30 mm als het op een niet-compacte oven geïnstalleerd
wordt.
Als de plaat op een compacte oven geïnstalleerd is, moet er
een afstand van 60 mm worden opengelaten tussen de
bovenzijde van de oven en de bovenzijde van het werkblad.
Montage op de vaatwasmachine, afbeelding 2c
Er moet een tussenliggend accessoire geïnstalleerd worden. Dit
accessoire moet bij onze technische dienst besteld worden. De
referentiecode van dit accessoire is 680502.
Werkblad: moet een dikte hebben van ten minste 20 mm en
maximaal 40 mm.
De afstand tussen de bovenzijde van de kookplaat en de
bovenzijde van de vaatwasmachine moet bedragen:
■ 60 mm als het op een compacte vaatwasmachine
geïnstalleerd wordt.
■ 65 mm als het op een niet-compacte vaatwasmachine
geïnstalleerd wordt.
Ventilatie, afbeelding 4
In verband met de ventilatie van de kookplaat zijn de volgende
punten noodzakelijk:
■ een opening aan de bovenzijde van de achterwand van het
meubel (afbeelding 4a).
■ ruimte tussen de achterzijde van het meubel en de
keukenwand (afbeelding 4b).
Installeren van het apparaat, afbeeldingen 5/6
Sluit het apparaat op de stroom aan en controleer de werking.
■ Spanning, zie gegevensplaatje.
■ Sluit het alleen aan volgens het aansluitschema
(afbeelding 6).
1. Bruin
2. Zwart
3. Blauw
4. Wit
5. Geel en groen
Het apparaat demonteren
Sluit het apparaat af van het verdeelnet.
Neem de kookplaat uit door van beneden af druk uit te oefenen.
Attentie!
Schade aan het apparaat! Probeer het apparaat niet uit te
nemen door hem van bovenaf uit te wippen.
da
×
M onte ri ngs vejl ed ning
Vigtige henvisninger
Sikkerhed: sikkerhed under brug kan kun garanteres, hvis
installationen er udført på en korrekt teknisk måde og i
overensstemmelse med monteringsinstruktionerne. Skader, der
opstår pga. forkert montering, er installatørens ansvar.
Elektrisk tilslutning: må kun foretages af en uddannet
elektriker. Regulativerne fra elforsyningsselskabet i området skal
følges.
Tilslutningstype: apparatet tilhører beskyttelsesklasse I og må
udelukkende anvendes sammen med en tilslutning med
jordforbindelse.
Fabrikanten frasiger sig ethvert ansvar for forkert funktion og
mulige skader, der skyldes forkert elektrisk installation.
Installation: apparatet skal sluttes til en fastgjort installation, og
der skal monteres afbrydere i overensstemmelse med
bestemmelserne for installationen.
Fastmontering under bordpladen: induktionskomfurer kan kun
installeres over skuffer,·varmluftsovne af samme mærke eller
opvaskemaskiner af samme mærke. Under kogesektionen kan
man ikke installere køleskabe, ovne uden ventilation eller
vaskemaskiner.
Forsyningskabel: sørg for, at forsyningskablet ikke bliver
spærret inde eller ført over skarpe kanter. Hvis ovnen er
undermonteret, skal du føre kablet på hjørnerne bag på ovnen
og frem til tilslutningsboksen. Skal anbringes, så det ikke
berører kogesektionens eller ovnens varme dele.
Bordplade: plan, vandret, stabil. Følg bordpladefabrikantens
anvisninger.
Garanti: en forkert installation, tilslutning eller montering
betyder, at produktgarantien bortfalder.
Bemærk: Enhver ændring i apparatets indre herunder
udskiftning af forsyningskablet skal udføres af særligt uddannet
personale i vores tekniske serviceafdeling.
Forberedelse af monteringsmøblerne,
figurer 1/2/3/4
Møbler med udskæringer: modstandsdygtige over for
temperaturer op til min. 90°C.
Udskæring: fjern spånerne, når udskæringsarbejdet er udført.
Udskæringskanter: foretag forsegling med varmeresistent
materiale.
Montering over en skuffe, figur 2a
De metalobjekter, der befinder sig i skuffen, kan opnå høje
temperaturer på grund af recirkulationsluften fra kogesektionens
ventilation. Derfor anbefales det at bruge en
adskillelsesanordning.
Støtte: som støtte kan man anvende en træplade (figur 3) eller
købe egnet ekstraudstyr fra vores serviceafdeling.
Referencenummeret til dette ekstraudstyr er 680502.
Bordplade: skal have en tykkelse på min. 20 mm.
Afstanden mellem toppen af bordpladen og toppen af skuffen
skal være 65 mm.
Montering over en ovn (figur 2b)
Bordplade: skal have en tykkelse på min.:
■ 20 mm, hvis den installeres over en kompakt ovn.
■ 30 mm, hvis den installeres over en ovn, som ikke er
kompakt.
Hvis kogesektionen installeres over en kompakt·ovn,·skal der
være en afstand på 60 ·mm mellem toppen af ovnen og toppen
af bordpladen.
Montering over en opvaskemaskine (figur 2c)
Der skal installeres et mellemlæg. Ekstraudstyret skal bestilles
hos vores serviceafdeling. Referencenummeret til dette
ekstraudstyr er 680502.
Bordplade: skal have en tykkelse på min. 20 mm og maks.
40 mm.
Afstanden mellem toppen af bordpladen og toppen af
opvaskemaskinen skal være:
■ 60 mm, hvis den installeres over en kompakt
opvaskemaskine.
■ 65 mm, hvis den installeres over en opvaskemaskine, der
ikke er kompakt.

Ventilation, figur 4
Med henblik på sektionens ventilation er det nødvendigt med
følgende:
■ en åbning i den øverste del af møblets bagvæg (figur 4a).
■ en adskillelse mellem møblets bagside og køkkenvæggen
(figur 4b).
Installation af apparatet, figur 5/6
Slut apparatet til en strømforsyning, og afprøv funktionaliteten.
■ Spænding: se mærkeplade.
■ Følg altid tilslutningsskemaet ved tilslutning (figur 6).
1. Brun
2. Sort
3. Blå
4. Hvid
5. Gul og grøn
Afmontering af apparatet
Afbryd apparatets strømtilslutning.
Løft kogesektionen op ved at presse nedefra.
Pas på!
Skader på apparatet! Forsøg ikke at afmontere apparatet ved at
løfte det af fra oven.
pt
Serviço de Assistência Técnica. O código de referência deste
acessório é o 680502.
Bancada: deve ter uma espessura mínima de 20 mm.
A distância entre a parte superior da bancada e a parte superior
da gaveta deve ser de 65 mm.
Montagem sobre o forno (figura 2b)
Bancada: deve ter uma espessura mínima de:
■ 20 mm, se se instalar sobre um forno compacto.
■ 30 mm, se se instalar sobre um forno não compacto.
Se a placa tiver sido instalada sobre um forno compacto,
devem deixar-se 60 mm de distância entre a parte superior do
forno e a parte superior da bancada.
Montagem sobre a máquina de lavar loiça (figura 2c)
Deve instalar-se um acessório intermédio. Deve solicitar o
acessório ao nosso Serviço de Assistência Técnica. O código
de referência deste acessório é o 680502.
Bancada: deve ter uma espessura de 20 mm, no mínimo, e
40 mm, no máximo.
A distância entre a parte superior da bancada e a parte superior
da máquina de lavar loiça deve ser de:
■ 60 mm, se se instalar sobre uma máquina de lavar loiça
compacta.
■ 65 mm, se se instalar sobre uma máquina de lavar loiça não
compacta.
Ventilação (figura 4)
ì
Instr uç ões de m ontagem
Tendo em conta a ventilação da placa, é necessário:
Instruções importantes
■ uma abertura na parte superior da parede posterior do móvel
Segurança: a segurança durante a utilização só está garantida
(figura 4a).
se a instalação tiver sido efectuada de forma correcta, a nível
■ uma separação entre a parte posterior do móvel e a parede
técnico, e de acordo com estas instruções de montagem. Os
da cozinha (figura 4b).
danos causados por uma montagem inadequada serão da
responsabilidade do instalador.
Instalar o aparelho (figuras 5/6)
Ligação eléctrica: deve ser efectuada apenas por um técnico
Ligar o aparelho à rede eléctrica e confirmar que funciona
especialista autorizado e de acordo com as disposições da
correctamente.
companhia de fornecimento eléctrico da zona.
■ Tensão, ver a placa de características.
Tipo de ligação: o aparelho pertence à classe de protecção I e
■ Ligar apenas de acordo com o esquema de ligação
apenas pode ser utilizado em combinação com uma ligação
(figura 6).
com condutor de tomada de terra.
1. Castanho
O fabricante não se responsabiliza pelo funcionamento
2. Preto
incorrecto e por possíveis danos provocados por instalações
eléctricas inadequadas.
3. Azul
Instalação: deve ligar o aparelho a uma instalação fixa e
4. Branco
incorporar meios de desconexão na instalação fixa, de acordo
5. Amarelo e verde
com as regulamentações da instalação.
Montagem dos móveis encastrados por baixo da bancada: só
Desmontar o aparelho
é possível instalar as placas de indução sobre fornos com
Desligar o aparelho da rede eléctrica.
ventilação forçada da mesma marca. Debaixo da placa de
Retirar a placa de cozedura, exercendo pressão a partir de
cozedura não se podem instalar frigoríficos, fornos sem
baixo.
ventilação nem máquinas de lavar roupa.
Atenção!
Cabo de alimentação: não prender o cabo de alimentação,
nem passá-lo por extremidades afiadas. Se existir um forno
Danos no aparelho! Não tente retirar o aparelho utilizando uma
montado por baixo, passar o cabo pelos cantos posteriores do
ferramenta que faça de alavanca a partir de cima.
forno até à caixa de derivação. Deve ser colocado de forma a
não tocar nas partes quentes da placa de cozedura ou do
forno.
Bancada: plana, horizontal, estável. Siga as instruções do
fabricante da bancada.
Garantia: uma instalação, ligação ou montagem inadequada
implica a anulação da garantia do produto.
Nota: Qualquer manipulação no interior do aparelho, incluindo
a mudança do cabo de alimentação, deve ser realizada
exclusivamente por pessoal técnico do Serviço de Assistência
com formação específica.
Preparação dos móveis de montagem
(figuras 1/2/3/4)
Móveis encastrados: resistentes a uma temperatura mínima de
90 °C.
Cavidade: remover as aparas de madeira após os trabalhos de
corte.
Superfícies de corte: vedar com material resistente ao calor.
Montagem sobre a gaveta (figura 2a)
Os objectos metálicos que se encontram no interior da gaveta
poderão atingir temperaturas elevadas devido à recirculação do
ar proveniente da ventilação da placa. Se tal acontecer,
recomenda-se a utilização de um suporte intermédio.
Suporte intermédio: pode utilizar-se um painel de madeira
(figura 3) ou adquirir um acessório adequado através do nosso
no
ê
M onte rin gsve ile dni ng
Viktige henvisninger
Sikkerhet: sikker bruk kan bare garanteres dersom montering
av apparatet er teknisk korrekt utført og i henhold til
monteringsveiledningen. Installatøren er ansvarlig for skader
som skyldes feilaktig montering.
Elektrisk tilkobling: må kun utføres av en kvalifisert tekniker.
Den lokale strømleverandørs retningslinjer skal følges.
Type tilkobling: apparatet tilhører beskyttelsesklasse I og må
kun brukes sammen med en jordet stikkontakt.
Produsenten står ikke ansvarlig for feil bruk og eventuelle
skader grunnet uegnede elektriske installasjoner.
Installasjon: apparatet må kobles til en fast installasjon, og
innretninger for å koble fra apparatet må festes til den faste
installasjonen i henhold til gjeldende installasjonsregler.
Fastmontasje under koketoppen: induksjonstoppene kan kun
installeres over skuff, ovner med ventilasjonsvifte av samme
merke, eller oppvaskmaskiner av samme merke. Under
koketoppen kan det ikke monteres kjøleskap, ovner uten
ventilasjonsvifte eller vaskemaskiner.

Strømledningen: ikke klem strømledningen, og ikke legg den
over skarpe kanter. Hvis det er en ovn montert under, skal
ledningen trekkes på hjørnene på baksiden av ovnen og til
koblingsboksen. Den må strekkes slik at den ikke berører de
varme delene til koketoppen eller ovnen.
Benkeplate: flat, vannrett og stabil. Følg instruksjonene fra
produsenten av koketoppen.
Garanti: en feilaktig installasjon, tilkobling eller montasje vil
annullere garantien.
Merk: Enhver modifikasjon av apparatets indre, inkludert bytte
av strømledningen, må kun utføres av opplært teknisk personell
fra vår serviceavdeling.
Klargjøring av møblene for montering, figur 1/2/3/4
Innebygde møbler: må tåle en temperatur på minst 90 °C.
Hulrommet: fjern alle spon etter utskjæringen.
Kutteflatene: forsegle med et varmebestandig stoff.
Montasje over skuffen, figur 2a
Metallobjekter i skuffen kan bli svært varme på grunn av
ventilasjonsluften fra koketoppen. Hvis dette skjer, bør det
installeres et mellomlegg.
Mellomlegg: det kan brukes et trepanel (figur 3) eller man kan
kjøpe et passende mellomlegg fra vår tekniske service. Dette
tilbehøret har referansenummer 680502.
Benkeplate: må ha en minste tykkelse på 20 mm.
Avstanden mellom oversiden av koketoppen og oversiden av
skuffen må være minst 65 mm.
Montasje over ovn, figur 2b
Benkeplate: Må ha en minimum tykkelse på:
■ 20 mm hvis den installeres over en kompaktovn.
■ 30 mm hvis den installeres over en ovn som ikke er kompakt.
Hvis koketoppen installeres over en kompakt ovn, skal de være
60 mm mellom oven overside og undersiden av koketoppen.
Montasje over oppvaskmaskin, figur 2c
Det må installeres et mellomlegg. Dette mellomlegget må
skaffes fra vår tekniske service. Referansenummeret til dette
produktet er 680502.
Benkeplate: må en tykkelse på minst 20 mm og maksimalt
40 mm.
Avstanden mellom kjøkkenbenkens overflate og
oppvaskmaskinens overflate må være på:
■ 60 mm hvis den installeres over en kompakt oppvaskmaskin.
■ 65 mm hvis den installeres over en vaskemaskin som ikke er
kompakt.
Ventilasjon, figur 4
Med hensyn til ventilasjon av koketoppen, kreves det følgende:
■ en åpning i den øvre delen av møblets bakside (figur 4a).
■ en separasjonsavstand mellom møblets bakside og
kjøkkenveggen (figur 4b).
Installere apparatet, figur 5/6
Koble apparatet til strømnettet og kontroller at det fungerer.
■ Nettspenning, se typeskiltet.
■ Koble nøyaktig som beskrevet i koblingsskjemaet (figur 6).
1. Brun
2. Svart
3. Blå
4. Hvit
5 Gul og grønn
Demontere apparatet
Koble apparatet fra strømnettet.
Trykk koketoppen nedover når du skal løfte den av.
Obs!
Fare for skade på apparatet! Ikke prøv å trekke ut apparatet ved
å løsne det ovenfra.
el
Ù
Οδηγίες εγκατάσ τα σης
Σημαντικές υποδείξεις
Ασφάλεια: η ασφάλεια κατά τη χρήση εξασφαλίζεται μόνο εάν η
εγκατάσταση έγινε με σωστό τρόπο σε τεχνικό επίπεδο και σύμφωνα
με τις οδηγίες τοποθέτησης. Ζημιές που προκλήθηκαν λόγω μη
σωστής τοποθέτησης εμπίπτουν στην ευθύνη του εγκαταστάτη.
Σύνδεση στο ηλεκτρικό ρεύμα: μόνο υπ' ευθύνη ενός εγκεκριμένου
ειδικού τεχνικού. Θα πρέπει να διέπεται
από τους κανόνες της
εταιρείας παροχής ηλεκτρικού στη περιοχή.
Τύπος σύνδεσης στο ηλεκτρικό ρεύμα: η συσκευή ανήκει στην
κλάση προστασίας I και μπορεί να χρησιμοποιηθεί μόνο σε
συνδυασμό με μία σύνδεση στο ηλεκτρικό ρεύμα με αγωγό γείωσης.
Ο κατασκευαστής δεν φέρει ευθύνη για τη μη σωστή λειτουργία και
τις πιθανές ζημιές
που προκλήθηκαν λόγω μη σωστής ηλεκτρικής
εγκατάστασης.
Εγκατάσταση: η συσκευή πρέπει να συνδέεται σε μια μόνιμη
εγκατάσταση και πρέπει να προσαρμόζονται μέσα αποσύνδεσης στη
μόνιμη εγκατάσταση σύμφωνα με τους κανονισμούς εγκατάστασης.
Εντοιχισμένη συναρμολόγηση κάτω από τον πάγκο: η εγκατάσταση
για τις επαγωγικές βάσεις εστιών μπορεί να γίνει μόνο πάνω σε
συρτάρι
, φούρνους με εξαναγκασμένο εξαερισμό της ίδιας μάρκας
ή με πλυντήριο πιάτων της ίδιας μάρκας. Δεν μπορεί να γίνει
εγκατάσταση ψυγείων, φούρνων χωρίς εξαερισμό ή πλυντηρίων κάτω
από τη βάση εστιών.
Καλώδιο τροφοδοσίας: μη σφηνώνετε το καλώδιο τροφοδοσίας και
μην το περνάτε από αιχμηρές άκρες. Αν υπάρχει από κάτω κάποιος
φούρνος,
περάστε το καλώδιο από τις πίσω γωνίες του φούρνου
μέχρι το κιβώτιο σύνδεσης στο ηλεκτρικό ρεύμα. Θα πρέπει να
τοποθετηθεί κατά τρόπο ώστε να μην αγγίζει τα ζεστά τμήματα της
βάσης εστιών ή του φούρνου.
Πάγκος κουζίνας: επίπεδος, οριζόντιος, σταθερός. Ακολουθήστε τις
οδηγίες του κατασκευαστή του πάγκου.
Εγγύηση: μια μη σωστή
εγκατάσταση, σύνδεση στο ηλεκτρικό ρεύμα
ή συναρμολόγηση συνεπάγεται την απώλεια ισχύος της εγγυήσεως
του προϊόντος.
Υπόδειξη: Οποιοσδήποτε χειρισμός στο εσωτερικό της συσκευής,
περιλαμβανομένου την αλλαγή καλωδίου τροφοδοσίας, θα πρέπει να
πραγματοποιείται μόνο από τεχνικό προσωπικό του Τεχνικού Σέρβις
με ειδική εκπαίδευση.
Προετοιμασία των επίπλων συναρμολόγησης,
σχήματα 1/2/3/4
Εντοιχισμένα έπιπλα: ανθεκτικά σε θερμοκρασία 90°C τουλάχιστον.
Κενός χώρος: απομακρύνετε τα ροκανίδια μετά από τις εργασίες
κοπής.
Επιφάνειες κοπής: μονώστε με υλικό ανθεκτικό στη θερμότητα.
Συναρμολόγηση πάνω στο συρτάρι, σχήμα 2a
Τα μεταλλικά αντικείμενα που βρίσκονται στο συρτάρι μπορεί να
υπερθερμανθούν λόγω της ανακύκλωσης του αέρα που οφείλεται
στον εξαερισμό της βάσης εστιών
. Αν συμβεί αυτό συνιστάται η
χρήση ενός ενδιάμεσου χωρίσματος.
Ενδιάμεσο χώρισμα: μπορεί να χρησιμοποιηθεί μία ξύλινη σανίδα
(σχήμα 3) ή να προμηθευτείτε ένα κατάλληλο εξάρτημα από το
Τεχνικό μας Σέρβις. Ο κώδικας αναφοράς για αυτό το εξάρτημα
είναι το 680502.
Πάγκος κουζίνας: θα πρέπει να έχει πάχος τουλάχιστον
20 χιλιοστών.
Η απόσταση
ανάμεσα στο επάνω μέρος του πάγκου και στο επάνω
μέρος του συρταριού θα πρέπει να είναι 65 χιλιοστά.
Συναρμολόγηση πάνω σε φούρνο, σχήμα 2b
Πάγκος κουζίνας: θα πρέπει να έχει πάχος τουλάχιστον:
■ 20 χιλιοστά αν γίνεται εγκατάσταση πάνω σε ένα συμπαγή
φούρνο.
■ 30 χιλιοστά αν γίνεται εγκατάσταση πάνω σε ένα μη συμπαγή
φούρνο.
Αν η βάση εγκατασταθεί πάνω σε συμπαγή φούρνο, θα πρέπει να
αφεθεί απόσταση 60 χιλιοστών ανάμεσα στο επάνω μέρος του
φούρνου και στο επάνω μέρος του πάγκου.
Συναρμολόγηση πάνω σε πλυντήριο πιάτων, σχήμα 2c
Θα πρέπει να τοποθετηθεί ένα ενδιάμεσο εξάρτημα. Θα πρέπει να
ζητήσετε το εξάρτημα από το Τεχνικό μας Σέρβις. Ο κώδικας
αναφοράς για αυτό το εξάρτημα είναι το 680502.
Πάγκος κουζίνας: το πάχος του θα πρέπει να είναι από 20 χιλιοστά
το ελάχιστο έως 40 χιλιοστά το μέγιστο.
Η απόσταση μεταξύ του πάνω μέρους του πάγκου και του πάνω
μέρους του πλυντηρίου πιάτων
πρέπει να είναι:
■ 60 χιλιοστά αν γίνεται εγκατάσταση πάνω σε ένα συμπαγές
πλυντήριο πιάτων.
■ 65 χιλιοστά αν γίνεται εγκατάσταση πάνω σε μη συμπαγές
πλυντήριο πιάτων.

Εξαερισμός, σχήμα 4
Λαμβάνοντας υπόψη τον εξαερισμό της βάσης εστιών, είναι
απαραίτητο:
■ ένα άνοιγμα στο επάνω μέρος του πίσω τοίχου του επίπλου
(σχήμα 4a).
■ ένα χώρισμα ανάμεσα στο πίσω μέρος του επίπλου και στον τοίχο
της κουζίνας (σχήμα 4b).
Εγκατάσταση της συσκευής, σχήματα 5/6
Συνδέστε τη συσκευή στο ηλεκτρικό ρεύμα και επιβεβαιώστε τη
λειτουργία της.
■ Τάση, βλέπε την ετικέτα χαρακτηριστικών.
■ σύνδεση μόνο σύμφωνα με το διάγραμμα σύνδεσης (σχήμα 6).
1. Καφέ
2. Μαύρο
3. Μπλε
4. Λευκό
5. Κίτρινο και πράσινο
Αποσυναρμολόγηση της συσκευής
Αποσυνδέστε τη συσκευή από το ηλεκτρικό ρεύμα.
Αφαιρέστε τη βάση εστιών ασκώντας πίεση από κάτω.
Προσοχή!
Βλάβη στη συσκευή! Μην προσπαθείτε να βγάλετε τη συσκευή
κάνοντας μοχλό από πάνω.
sv
Montering över ugn, bild 2b
Bänkskiva: den bör ha en tjocklek på minst:
■ 20 mm om den installeras på en kompakt ugn.
■ 30 mm om den installeras på en ugn som inte är kompakt.
Om hällen har installerats på en kompakt ugn bör du lämna ett
avstånd på 60 mm mellan ugnens övre del och bänkskivans
övre del.
Montering över diskmaskin, bild 2c
En mellanläggsmodul bör installeras. Detta tillbehör ska
beställas från vår kundtjänst. Artikelnumret för detta tillbehör är
680502.
Bänkskiva: den bör ha en tjocklek på mellan 20 mm och
40 mm.
Avståndet mellan bänkskivans övre del och diskmaskinens övre
del ska vara:
■ 60 mm vid montering på en kompakt diskmaskin.
■ 65 mm vid montering på en diskmaskin som inte är kompakt.
Ventilation, bild 4
Med tanke på spishällens ventilation bör du se till att det finns:
■ en öppning på den övre delen av skåpets bakvägg (bild 4a).
■ ett mellanrum mellan skåpets bakre del och köksväggen
(bild 4b.
Montera apparaten, bilderna 5/6
Anslut apparaten till elnätet och kontrollera att den fungerar.
ó
Mo nter in gsa nvisn ing
■ Information om spänning hittar du på märkskylten.
Viktigt att observera
■ Följ alltid elschemat när du utför elanslutningar (bild 6).
1. Brun
Säkerhet: säkerheten vid användning garanteras under
förutsättning att installationen har utförts korrekt och i enlighet
2. Svart
med denna monteringsanvisning. Skador orsakade av felaktig
3. Blå
montering är montörens ansvar.
4. Vit
Elanslutning: får endast utföras av en behörig fackman.
5. Gul och grön
Föreskrifterna från den lokala elleverantören skall följas.
Anslutningstyp: apparaten tillhör skyddsklass I och får endast
Demontera apparaten
användas med en jordad anslutning.
Koppla bort apparaten från elnätet.
Tillverkaren tar inget ansvar för felaktig funktion eller skador
Lyft ut hällen genom att trycka underifrån.
orsakade av felaktig elinstallation.
Obs!
Montering: apparaten ska anslutas till en fast installation som
måste innehålla frånkopplingsanordningar för den fasta
Risk för skador på apparaten! Försök inte att lyfta ut hällen
installationen i enlighet med gällande installationsbestämmelser.
genom att använda hävstång uppifrån.
Inbyggnad under bänkskiva: induktionshällar kan endast
installeras över lådor, ugnar med forcerad ventilation av samma
märke samt diskmaskiner av samma märke. Under spishällen
kan du inte installera kylskåp, ugnar utan ventilation eller
tvättmaskiner.
Strömförsörjningskabel: kläm inte fast strömförsörjningskabeln
och lägg den inte över vassa kanter. Om det finns en ugn
monterad under hällen bör du lägga kabeln kring ugnens bakre
hörn och därifrån vidare mot väggkontakten. Placera den så att
den inte vidrör varma delar på spishällen eller ugnen.
Bänkskiva: plan, vågrät, stabil. Följ instruktionerna från
bänkskivans tillverkare.
Garanti: vid felaktig montering eller anslutning gäller inte
produktgarantin.
Anvisning: Åtgärder på apparatens insida, inklusive byte av
strömkabel, får endast utföras av särskilt utbildad personal från
Kundtjänst.
Förberedelse av köksskåpen för montering,
bilderna 1/2/3/4
Inbyggda skåp: tål temperaturer på upp till 90 °C.
Utrymme: avlägsna sågspånen efter urskärningsarbetet.
Skärytor: försegla med värmebeständigt material.
Montering på låda, bild 2a
Metallföremål som finns i lådan kan bli mycket varma pga. luften
som cirkulerar i hällens ventilationssystem. Om detta sker är det
lämpligt att placera ett skydd däremellan.
Mellanskydd: du kan använda en träskiva (bild 3) eller beställa
ett lämpligt tillbehör från vår Kundtjänst. Artikelnumret för detta
tillbehör är 680502.
Bänkskiva: den bör ha en tjocklek på minst 20 mm.
Avståndet mellan bänkskivans övre del och lådans övre del ska
vara 65 mm.
fi
Ý
Asennusohje
Tärkeitä vihjeitä
Turvallisuus: käyttöturvallisuus on taattu ainoastaan silloin, kun
asennus on suoritettu teknisesti oikein ja näiden
asennusohjeiden mukaan. Virheellisestä asennuksesta
aiheutuvat vahingot ovat asentajan vastuulla.
Sähköliitäntä: liitännän saa suorittaa vain valtuutettu alan
asiantuntija. Kytkennässä on noudatettava paikallisen
sähköntoimittajan sääntöjä.
Liitäntätyyppi: laitteen suojausluokka on I ja sitä voidaan
käyttää vain maadoitetulla sähköliitännällä.
Valmistaja ei ota vastuuta virheellisestä toiminnasta ja
mahdollisista vahingoista, jotka aiheutuvat virheellisistä
sähköasennuksista.
Asennus: Laite on on asennettava kiinteään asennukseen ja
kiinteässä asennuksessa on oltava virran katkaisuvälineet
asennusta koskevien määräyksien mukaisesti.
Asentaminen kalusteeseen työtason alapuolelle:
induktiokeittotasot voidaan asentaa vain laatikon,
samanmerkkisen kiertoilmauunin tai samanmerkkisen
astianpesukoneen yläpuolelle. Keittotason alapuolelle ei saa
asentaa jääkaappia, tuuletuksella varustamattomia uuneja tai
pesukoneita.
Virtajohto: virtajohto ei saa jäädä puristuksiin eikä sitä saa
viedä terävien reunojen yli. Jos alapuolelle on asennettu uuni,
vie johto uunin takanurkkien kautta kytkentärasiaan. Virtajohto
on asetettava niin, ettei se koske keittotason tai uunin kuumiin
osiin.
Keittotaso: tasainen, vaakasuora, vakaa. Noudata keittotason
valmistajan ohjeita.
Takuu: virheellinen asennus tai liitäntä mitätöi tuotteen takuun.
Huomautus: Laitteen sisäosien käsittely, mukaan lukien
virtajohdon vaihto, tulee jättää vastaavan koulutuksen saaneen
huoltopalvelun suoritettavaksi.

Asennuskalusteiden valmisteleminen,
kuvat 1/2/3/4
Sisäänrakennetut kalusteet: kestävät vähintään 90 °C
lämpötilan.
Asennusaukko: poista lastut leikkaustoimenpiteiden jälkeen.
Leikkauspinnat: tiivistä lämmönkestävällä materiaalilla.
Laatikon päälle asentaminen, kuva 2a
Laatikossa olevat metalliset esineet voivat kuumentua
huomattavasti keittotason tuuletuksesta aiheutuvan ilmankierron
vuoksi, tällöin on suositeltavaa käyttää välikappaletta.
Välikappale: voit käyttää puukappaletta (kuva 3) tai hankkia
sopivan lisävarusteen teknisestä huoltopalvelustamme. Tämän
lisävarusteen viitekoodi on: 680502.
Työtaso: paksuuden on oltava vähintään 20 mm.
Keittotason yläreunan ja laatikon yläreunan väliin on jätettävä
65 mm tilaa.
Asentaminen uunin yläpuolelle, kuva 2b
Työtaso: paksuuden on oltava vähintään:
■ 20 mm, jos se asennetaan pienikokoisen uunin päälle.
■ 30 mm, jos se asennetaan suurikokoisen uunin päälle.
Jos keittotaso on asennettu pienikokoisen uunin päälle, uunin
yläreunan ja keittotason yläreunan väliin on jätettävä 60 mm
tilaa.
Asentaminen astianpesukoneen yläpuolelle, kuva 2c
Välikappale-lisävaruste on asennettava. Lisävaruste voidaan
tilata teknisestä huoltopalvelusta. Tämän lisävarusteen viitekoodi
on: 680502.
Työtaso: paksuuden on oltava vähintään 20 mm ja enintään
40 mm.
Työtason yläreunan ja astianpesukoneen yläreunan välisen
välimatkan on oltava:
■ 60 mm, jos keittotaso asennetaan pienikokoisen
astianpesukoneen päälle.
■ 65 mm, jos keittotaso asennetaan suurikokoisen
astianpesukoneen päälle.
Tuuletus, kuva 4
Keittotason tuuletuksen kannalta on varmistettava, että:
■ kalusteen takaseinän yläosassa on ilma-aukko (kuva 4a).
■ kalusteen takaosan ja keittiön seinän välissä on tilaa
(kuva 4b).
Laitteen asennus, kuvat 5/6
Liitä laite sähköverkkoon ja tarkista sen toiminta.
■ Jännite, katso laitteen tyyppimerkinnät.
■ Liitä ainoastaan kytkentäkaavion mukaisesti (kuva 6).
1. Ruskea
2. Musta
3. Sininen
4. Valkoinen
5. Keltavihreä
Laitteen purkaminen
Irrota laite sähköverkosta.
Poista keittotaso painamalla sitä alhaalta päin.
Huomio!
Laitteen vaurioitumisvaara! Älä yritä poistaa laitetta ylhäältä päin
tankoa apuna käyttäen.
pl
Instalacja: urządzenie powinno być podłączone do instalacji
stałej, w której należy zastosować odłączniki od instalacji stałej,
zgodnie z normami dotyczącymi instalacji.
Montaż w zabudowie pod blatem: płyty indukcyjne mogą być
instalowane wyłącznie na szafkach, piekarnikach z systemem
wymuszonej wentylacji tej samej marki lub na zmywarkach do
naczyń tej samej marki. Pod płytą kuchenki nie mogą być
instalowane lodówki, piekarniki bez systemu wentylacji lub
pralki.
Kabel zasilania: nie zaciskać kabla zasilania ani nie
przeprowadzać go przy ostrych brzegach. Jeśli poniżej
zamontowany jest piekarnik, przeprowadzić kabel przy tylnych
rogach piekarnika aż do puszki przyłączeniowej. Kabel zasilania
należy ułożyć w ten sposób, aby nie dotykał nagrzanych części
płyty kuchenki lub piekarnika.
Blat: płaski, poziomy, stabilny. Postępować zgodnie ze
wskazówkami producenta blatu.
Gwarancja: nieprawidłowo wykonana instalacja, podłączenie
lub montaż powoduje utratę ważności gwarancji produktu.
Wskazówka: Wszelkie czynności wewnątrz urządzenia, włącznie
z wymianą kabla zasilania, powinny zostać wykonane przez
odpowiednio przeszkolonych pracowników technicznych
Serwisu Technicznego.
Przygotowanie mebli do montażu, rysunki 1/2/3/4
Meble w zabudowie: odporne na temperaturę minimum 90°C.
Otwór: usunąć wióry po wykonaniu wycięcia.
Powierzchnie wycięcia: uszczelnić materiałem odpornym na
wysoką temperaturę.
Montaż na szafce, rysunek 2a
Jeśli płyta została zainstalowana na szafce, wówczas
przedmioty metalowe znajdujące się w szafce mogą nagrzać się
do wysokiej temperatury z powodu recyrkulacji powietrza
wypływającego z systemu wentylacji płyty. W tym przypadku,
zaleca się zastosowanie podpory przedzielającej.
Podpora przedzielająca: można użyć drewnianego panelu
(rysunek 3) lub nabyć odpowiednie akcesorium w naszym
Serwisie Technicznym. Kod referencyjny opisywanego
akcesorium to 680502.
Blat: powinien mieć grubość minimum 20 mm.
Odstęp między górną częścią zabudowy, a górną częścią szafki
powinien wynosić 65 mm.
Montaż na piekarniku, rysunek 2b
Blat: powinien mie
ć grubość minimum:
■ 20 mm, jeśli jest montowany na piekarniku kompaktowym.
■ 30 mm, jeśli jest montowany na piekarniku niekompaktowym.
Jeśli płyta została zainstalowana na piekarniku kompaktowym,
należy zostawić odstęp 60 mm między górną częścią piekarnika
i górną częścią zabudowy.
Montaż na zmywarce do naczyń, rysunek 2c
Należy zamontować akcesorium przedzielające. O to
akcesorium można poprosić w naszym Serwisie Technicznym.
Kod referencyjny opisywanego akcesorium to 680502.
Blat: powinien mieć grubość minimum 20 mm i maksimum
40 mm.
Odstęp między górną częścią zabudowy i górną częścią
zmywarki do naczyń powinien wynosić:
■ 60 mm, w przypadku instalowania na zmywarce kompaktowej.
■ 65 mm, w przypadku instalowania na zmywarce
niekompaktowej.
Wentylacja, rysunek 4
Mając na względzie odpowiednią wentylację płyty, należy
ë
Instrukcja montażu
zapewnić:
Ważne wskazówki
■ otwór w górnej części tylnej ścianki mebla (rysunek 4a).
Bezpieczeństwo: bezpieczeństwo podczas użytkowania
■ odstęp między tylną częścią mebla a ścianką kuchenki
zapewnione jest wyłącznie w przypadku, gdy urządzenie zostało
(rysunek 4b).
zainstalowane poprawnie pod względem technicznym i zgodnie
z niniejszą instrukcją montażu. Za szkody powstałe w wyniku
Instalacja urządzenia, rysunki 5/6
nieodpowiedniego montażu odpowiedzialna będzie osoba
Podłączyć urządzenie do sieci elektrycznej i sprawdzić jego
instalująca.
działanie.
Podłączenie elektryczne: powierzać wyłącznie upoważnionemu
■ Napięcie, patrz tabliczka znamionowa.
technikowi specjaliście. Należy przestrzegać rozporządzeń
miejscowej firmy dostarczającej energię elektryczną.
■ Podłączyć obowiązkowo według schematu podłączenia
(rysunek 6).
Rodzaj podłączenia: urządzenie posiada stopień ochrony I i
można go używać wyłącznie z uziemionym przyłączem.
1. Brązowy
Producent nie ponosi odpowiedzialności za niewłaściwe
2. Czarny
funkcjonowanie urządzenia i ewentualne szkody spowodowane
3. Niebieski
przez niewłaściwą instalację elektryczn
ą.
4. Biały
5. Żółto-zielony

Demontaż urządzenia
Odłączyć urządzenie od sieci elektrycznej.
Wyjąć płytę kuchenki, wypychając ją od dołu.
Uwaga!
Możliwość uszkodzenia urządzenia! Nie próbować wyjmować
urządzenia, stosując dźwignię od góry.
tr
Havalandırma, şekil 4
Tezgahın havalandırılması için şunlar gereklidir:
■ mobilyanın arka duvarının üst kısmında bir açıklık (şekil 4a).
■ mobilyanın arka kısmıyla mutfak duvarı arasında boşluk
(şekil 4b).
Cihazın kurulumu, şekil 5/6
Cihazı elektrik şebekesine bağlayarak çalışmasını kontrol ediniz.
ô
Montaj kılavuzu
■ Gerilim, özellikler tablosuna bakınız.
Önemli açıklamalar
■ Yalnızca bağlantı şemasına uygun olarak bağlayınız (şekil 6).
1. Kahverengi
Güvenlik: kullanım esnasında güvenlik sadece tesis işleminin
teknik açıdan doğru ve montaj talimatlarına uygun bir şekilde
2. Siyah
yapılmış olması durumunda garanti edilmektedir. Uygun şekilde
3. Mavi
yapılmayan montajdan kaynaklanan hasarlar montajı yapanın
4. Beyaz
sorumluluğundadır.
5. Sarı ve yeşil
Elektrik bağlantısı: sadece yetkili bir uzman teknisyenin
sorumluluğunda. Daha sonra bölgenizdeki elektrik tedarik
Cihazı sökünüz
şirketinin izni ile yönetilir.
Cihazın elektrik bağlantısını kesiniz.
Bağlantı tipi: aygıt, koruma sınıfı I'ya aittir ve sadece topraklama
Pişirme tezgahını çıkarmak için aşağıdan baskı uygulayınız.
bağlantısı ile kombinasyon halinde kullanılabilir.
Üretici, yanlış kullanımdan ve uygun olmayan elektrik
Dikkat!
kurulumlarından kaynaklanan hasarlardan sorumlu olmayacaktır.
Cihaz hasar görebilir! Cihazı yukarıdan bastırarak çıkarmaya
Kurulum: cihaz, sabit bir tesisata bağlanmalı ve bağlantı sökme
çalışmayınız.
araçları, montaj yönergelerine uygun olarak sabit tesisata dahil
edilmelidir.
Tezgah alt
ı gömme montaj: indüksiyon plakaları yalnızca aynı
markalı motorlu havalandırması olan fırınlar üzerine kurulabilir.
Pişirme tezgahının altına buzdolabı, havalandırmasız fırın veya
çamaşır makinesi kurulamaz.
Besleme kablosu: besleme kablosunu sıkıştırmayınız ve keskin
kenarların üzerinden geçirmeyiniz. Aşağıda monte edilmiş bir
fırın varsa, kabloyu fırının arka köşelerinden bağlantı kutusuna
kadar geçiriniz. Pişirme tezgahı veya fırının sıcak yerlerine temas
etmeyecek şekilde yerleştirilmelidir.
Tezgah: düz, yatay, stabil. Tezgahın üretici talimatlarını izleyiniz.
Garanti: yanlış kurulum, bağlantı ya da montaj, ürünün
garantisinin geçerliliğini yitirmesine yol açacaktır.
Bilgi: Besleme kablosunun değişimi de dahil olmak üzere
cihazın içerisinde yapılacak her türlü işlem, özel eğitimli Destek
Servis teknik personeli tarafından yapılmalıdır.
Montaj mobilyalarının hazırlanması, şekil 1/2/3/4
Gömme mobilyalar: en az 90°C ısıya dayanıklıdırlar.
Girinti: kesme işlerinden sonra talaşları temizleyiniz.
Kesme yüzeyleri: ısıya dayanıklı bir malzeme ile mühürleyiniz.
Çekmecenin üzerinde montaj, şekil 2a
Çekmecenin içinde bulunan metal objeler, tezgah
havalandırmasından kaynaklanan hava sirkülasyonundan dolayı
yüksek ısıya maruz kalabilir. Bu olursa, bir ara destek
kullanılması tavsiye edilir.
Ara destek: ahşap bir panel (şekil 3) kullanabilir veya Teknik
Destek Servisimizden uygun bir aksesuar edinebilirsiniz. Bu
aksesuarın referans kodu 680502'dir.
Tezgah: en az 20 mm kalınlığa sahip olmalıdır.
Tezgahın üst kısmıyla çekmecenin üst kısmı arasındaki mesafe
65 mm olmalıdır.
Fırın üzerine montaj, şekil 2b
Tezgah: sahip olması gereken minimum kalı
nlı k:
■ kompakt bir fırın üzerine kuruluyorsa 20 mm.
■ kompakt olmayan bir fırın üzerine kuruluyorsa 30 mm.
Tezgah kompakt bir fırın üzerine kurulduysa, fırının üst kısmıyla
tezgahın üst kısmı arasında 60 mm mesafe bırakılması
gerekmektedir.
Bulaşık makinesi üzerine montaj, şekil 2c
Bir ara aksesuar takılmalıdır. Aksesuar Teknik Servisimizden
talep edilebilir. Bu aksesuarın referans kodu 680502'dir.
Tezgah: en az 20 mm ve en fazla 40 mm kalınlığa sahip
olmalıdır.
Tezgahın üst kısmıyla bulaşık makinesinin üst kısmı arasındaki
mesafe şu kadar olmalıdır:
■ kompakt bir bulaşık makinesi üzerine kuruluyorsa 60 mm.
■ kompakt olmayan bir bulaşık makinesi üzerine kuruluyorsa
65 mm.
ru
î
Инструкция по мо нтаж у
Важные указания
Техника безопасности: Безопасная эксплуатация прибора
гарантируется только в том случае, если его установка и
подключение к электросети выполнены правильно с
технической точки зрения и в соответствии с данным
руководством по монтажу. Ответственность за повреждения,
причиной которых послужил неправильный монтаж прибора,
несет производитель монтажных работ.
Подключение к электросети: должно производиться только
аттестованным
специалистом. При этом необходимо
придерживаться инструкций местной электроснабжающей
компании.
Вид подключения: данный прибор соответствует классу
защиты I и может использоваться только при условии наличия
заземления.
Производитель не несет ответственности за некорректную
работу прибора и возможные повреждения, вызванные
неправильно проведенным подключением к электросети.
Установка: Необходимо подключить прибор к стационарной
электропроводке и предусмотреть
средства отключения от
электросети, согласно с нормами подключения
электроприборов.
Установка встраиваемой варочной панели в столешницу:
Индукционные варочные панели можно устанавливать только
над духовыми шкафами с принудительной вентиляцией той же
марки, что и варочная панель. Под варочной панелью нельзя
устанавливать холодильники, духовые шкафы без
принудительной вентиляции и стиральные машины.
Кабель питания: следите
, чтобы кабель питания не был зажат
или касался острых кромок. В случае установки варочной
панели над духовым шкафом, следует проложить кабель через
задние углы духового шкафа до соединительной коробки.
Кабель питания не должен касаться нагревающихся частей
варочной панели и духового шкафа.
Столешница: плоская, горизонтальная, устойчивая. Следуйте
инструкциям производителя столешницы.
Гарантия:
неправильная установка, подключение или монтаж
влекут за собой отмену гарантии производителя.
Указание: Любые действия с внутренними компонентами
прибора, включая замену кабеля питания, должны
производиться специалистами сервисного центра.
Подготовка мебели к установке варочной панели
рисунки 1/2/3/4
Мебель для встраиваемой бытовой техники: должна
выдерживать температуру не менее 90° C.
Отверстие: после вырезания отверстия уберите опилки.
Поверхность среза: обработайте герметиком, чтобы обеспечить
его термостойкость.
Монтаж над выдвижным ящиком, рисунок 2a
Если варочная панель устанавливается над выдвижным ящиком,
находящиеся в нем металлические предметы могут раскалиться
от горячего воздуха, используемого для вентиляции варочной
панели
, поэтому рекомендуется использовать промежуточную
перегородку.

Промежуточная перегородка: можно использовать деревянную
доску (рисунок 3) или специальную промежуточную
перегородку, которую можно приобрести в сервисном центре.
Артикул данной промежуточной перегородки — 680502.
Столешница: должна иметь толщину не менее 20 мм.
Расстояние между верхней частью столешницы и верхней
частью выдвижного ящика должно составлять 65 мм.
Установка над духовым шкафом, рисунок 2b
Столешница: должна иметь толщину не
менее:
■ 20 мм при установке над компактным духовым шкафом.
■ 30 мм при установке над другими видами духовых шкафов.
Если варочная панель устанавливается над компактным
духовым шкафом, расстояние между верхней частью духового
шкафа и верхней частью столешницы должно составлять 60 мм.
Установка над посудомоечной машиной, рисунок 2c
Необходимо установить промежуточную перегородку. Такую
перегородку следует заказать в нашем сервисном центре.
Артикул такой перегородки — 680502.
Столешница:
должна иметь толщину не менее 20 мм и не более
40 мм.
Расстояние между верхней частью столешницы и верхней
частью посудомоечной машины должно составлять:
■ 60 мм при установке над компактной посудомоечной
машиной.
■ 65 мм при установке над другими видами посудомоечных
машин.
Вентиляция, рисунок 4
Для обеспечения вентиляции варочной панели необходимо
предусмотреть:
■ отверстие в верхней части задней стенки кухонного шкафа
(рисунок 4a).
■ зазор между задней стенкой кухонного шкафа и стеной кухни
(рисунок 4b).
Установка варочной панели (рисунки 5/6)
Подключите варочную панель к электросети и проверьте,
работает ли она.
■ Напряжение: см. табличку с характеристиками.
■ Подключение к электросети следует производить
исключительно в соответствии со схемой подключения
(рис.6).
1. Коричневый
2. Черный
3. Синий
4. Белый
5. Желто-зеленый
Демонтаж варочной панели
Отключите прибор от электросети.
Извлеките варочную панель из столешницы, нажав на нее снизу.
Внимание!
Существует опасность повреждения электроприбора! Не
пытайтесь извлечь варочную панель из отверстия, применяя
рычаг сверху.
Аннотация для Плиты Bosch PIT611F17E Senza cornice Piano cottura ad induzione 60 cm - vetroceramica в формате PDF
Топ 10 инструкций
Другие инструкции
Bosch PIN651F17E Piano cottura ad induzione 60 cm - vetroceramica
Bosch PIS631F17E Inducción 60 cm de ancho Terminación bisel frontal EAN 4242002776910
Bosch PIY651F17E Inducción 60 cm de ancho Terminación biselada EAN 4242002748689
Bosch PIB645B17E Edelstahl umlaufender Rahmen Induktions-Kochstelle Glaskeramik
