Bosch DKE 645M: инструкция
Характеристики, спецификации
Инструкция к Кухонной Вытяжке Bosch DKE 645M

RUS
Инструкция по эксплуатации и монтажу
DKE 645M
DKE 945M
901540

Информация для предварительного ознакомления. Официальной информацией изготовителя не является.
Содержание
Инструкция по эксплуатации . . . . . . . . . . 2
Инструкция по монтажу . . . . . . . . . . . . . . 7
Изготовитель не исключает возможности распространения данной инструкции также на новые модели
продукции, которые будут выведены на рынок после изготовления тиража этой инструкции по эксплу
атации при условии, что новые модели продукции будут идентичны актуальным с точки зрения особен
ностей их эксплуатации.
Данная инструкция по эксплутации распространяется также на модели DWB065450, DWB095450.
Право на внесение изменений изготовитель оставляет за собой.

Информация для предварительного ознакомления. Официальной информацией изготовителя не является.
Инструкция по эксплуатации
Описание вытяжки Режимы работы
Обшивка
Это можно обеспечить, если воздух при сго
вытяжной
рании топлива будет выводиться из помеще
трубы
ния через незакрытые отверстия, например,
через двери, окна, настенные вентиляцион
Переключатель
ные шкафы или с помощью технических мер,
освещения/
обеспечивающих блокировку других уст
вентилятора
ройств при работе одного устройства и т.д.
При подаче воздуха в недостаточном
объеме возникает опасность отравления
газообразными продуктами сгорания,
которые всасываются обратно в комнату.
Применение только настенного вентиляци
онного шкафа не гарантирует, что предель
ное значение пониженного давления возду
ха не будет превышено.
Примечание. При оценке давления воздуха
Освещение Решетка фильтра
следует учитывать всю систему вентиляции,
которая имеется в здании. Однако это пра
вило не применяется при использовании
оборудования для приготовления пищи, на
пример, варочных панелей и газовых плит.
Режимы работы
Если вытяжка используется в режиме цир
куляции воздуха с угольным фильтром, экс
Режим отвода воздуха:
плуатация возможна без какихлибо ограни
чений.
Вентилятор вытяжки всасывает кухонные
испарения и удаляет их за пределы по
мещения через жиропоглощающий
Режим циркуляции воздуха:
фильтр.
Этот режим требует установки угольного
Жиропоглощающий фильтр поглощает
фильтра (см. раздел «Фильтры и их тех
частицы жира, которые могут содержать
ническое обслуживание»).
ся в кухонных испарениях.
Полный комплект для установки и
Кухня в значительной степени освобож
фильтры для замены можно приобрести
дается от жиров и запахов.
в специализированных торговых точ"
Если вытяжка в режиме отвода воздуха
ках. Соответствующие номера принад
работает одновременно с отопительным
лежностей можно найти в конце настоя
оборудованием, которое пользуется вы"
щей инструкции по эксплуатации.
тяжными трубами (например, отопитель
Вентилятор вытяжки всасывает кухонные
ные системы, проточные водонагреватели
испарения, которые очищаются в жиро
или котлы, которые работают на газе, жид
поглощающем фильтре и угольном филь
ком или твердом топливе), необходимо
тре. После этого очищенный воздух воз
обеспечить подачу воздуха в объеме, до
вращается на кухню.
статочном для сгорания топлива.
Жиропоглощающий фильтр поглощает
По соображениям безопасности требуется,
частицы жира, которые могут содержать
чтобы в помещении, где установлено отопи
ся в кухонных испарениях.
тельное или нагревательное оборудование
Угольный фильтр удаляет имеющиеся
с открытым огнем, давление воздуха по
запахи.
сравнению с атмосферным было понижено
не более чем на 4 Па (0,04 мбар).
Без установленного угольного фильтра
пахучие вещества кухонных испарений не
связываются.
2

Информация для предварительного ознакомления. Официальной информацией изготовителя не является.
Перед первым использованием вытяжки
Важные указания:
Перед первым использованием новой
вытяжки внимательно прочтите инструк
Эта инструкция по эксплуатации относит
цию по эксплуатации. Она содержит важ
ся к нескольким моделям вытяжки. Воз
ную информацию по Вашей безопаснос
можно, что описанные в ней отдельные
ти, а также по эксплуатации вытяжки и
детали оснащения отсутствуют в Вашей
уходу за ней.
вытяжке.
Сохраните инструкцию по эксплуатации
Эта вытяжка соответствует действующим
и монтажу для возможной передачи пос
правилам техники безопасности.
ледующему владельцу.
Ремонт вытяжки должен выполняться
только квалифицированным персоналом.
Если вытяжка повреждена, ее не следу
Неправильно выполненный ремонт
ет вводить в эксплуатацию.
вытяжки может привести к возникно"
вению серьезной опасности для
Эксплуатация вытяжки над очагом, в
пользователя.
котором сгорает твердое топливо (уголь,
дерево и т.д.), разрешается только в огра
Подключение и ввод в эксплуатацию вы
ниченных случаях (см. инструкцию по мон
тяжки должен выполнять только квалифици
тажу).
рованный специалист.
Газовые варочные панели/
газовые плиты
Из соображений безопасности замена
поврежденных соединительных проводов
Не эксплуатируйте все газовые конфор
вытяжки должна осуществляться изготови
ки одновременно в течение длительного ин
телем, или его Сервисной службой, или дру
тервала времени (макс. 15 минут) при мак
гими квалифицированными специалистами.
симальной тепловой нагрузке. В противном
случае возникает опасность ожога при при
Утилизацию упаковочного материала
косновении к поверхности корпуса вытяжки
следует проводить должным образом (см.
или опасность повреждения вытяжки. При
инструкцию по монтажу).
эксплуатации вытяжки над газовой варочной
панелью с одновременно включенными тре
Эта вытяжка предназначена только для
мя или более газовыми конфорками вклю
использования в домашнем хозяйстве.
чайте вытяжку на максимальную мощность.
Эксплуатируйте вытяжку только с уста
новленными лампами.
Неисправности
Неисправные лампы следует сразу же
заменять, чтобы предотвратить перегрузку
Если у Вас имеются какиелибо вопросы,
оставшихся ламп.
или если появилась неисправность, обра
щайтесь в Сервисную службу (cм. перечень
Никогда не эксплуатируйте вытяжку без
мастерских Сервисной службы).
установленного жиропоглощающего филь
тра.
При телефонном звонке, пожалуйста, сооб
щите следующие сведения:
Перегретые жир и масло легко воспла
меняются. Поэтому всегда следите за при
ENr. FD
готовлением пищи с жиром или маслом, на
пример, в случае приготовления картофеля
Впишите эти номера в вышеуказанных мес
фри.
тах. Номера ENr. (номер изделия) и FD (за
водской номер) Вы найдете на табличке с
Не стерилизуйте продукты питания пла
техническими характеристиками внутри Ва
менем непосредственно под вытяжкой.
шей вытяжки после того, как снимете решет
ку фильтра.
Опасность воспламенения жиропогло
!
щающего фильтра.
Пламя газовых конфорок всегда должно
быть закрыто посудой.
3

Информация для предварительного ознакомления. Официальной информацией изготовителя не является.
Управление вытяжкой
Фильтры и их техническое
обслуживание
Самым эффективным способом удале
ния кухонных испарений, образующихся при
Жиропоглощающий фильтр:
приготовлении пищи, является следующий
Для поглощения частиц жира в кухонных
способ:
испарениях, образующихся при приго"
Включите вытяжку сразу же, как только
товлении пищи, используется металли"
Вы начинаете готовить.
ческий жиропоглощающий фильтр.
Выключите вытяжку через несколько
Фильтрующие прокладки сделаны из невос
минут после того, как Вы закончите гото
пламеняющегося металла.
вить.
Внимание!
По мере насыщения фильтра остатками жи
Выключение
Включение/выключение
ров не только увеличивается риск воспламе
вентилятора
освещения
нения, но это может также оказать отрица
тельное воздействие на работу вытяжки.
Важное замечание.
Регулярная чистка металлического жиропог
лощающего фильтра снижает вероятность
воспламенения, которое возможно изза
нагрева при жарении в большом количестве
жира.
Чистка металлического
Уменьшение
Включение и
жиропоглощающего фильтра:
скорости
увеличение скорости
При обычном режиме работы (12 часа в
вентилятора
вентилятора
день) металлический жиропоглощающий
фильтр следует чистить через 810 не
Индикатор
дель.
для настройки вентилятора
Фильтр можно мыть в посудомоечной
машине. Однако это может привести к не
Включение вентилятора:
значительному изменению окраски
Нажмите клавишу +.
фильтра.
Установка требуемой скорости
Фильтр должен свободно лежать в посу
вентилятора:
домоечной машине, он не должен быть
зажат.
Нажмите клавишу +.
Скорость вентилятора увеличивается на
Важное замечание.
одну ступень.
Сильно загрязненный металлический жи
ропоглощающий фильтр не следует мыть
Нажмите клавишу –.
в посудомоечной машине вместе с посу
Скорость вентилятора уменьшается на
дой.
одну ступень.
При ручной мойке фильтра сначала замо
Выключение вентилятора:
чите его в горячей мыльной воде. Затем
Нажмите клавишу 0.
очистите фильтр щеткой, тщательно про
полощите его и дайте воде стечь.
или:
Нажимайте клавишу – до тех пор, пока
вентилятор не выключится.
Освещение:
Для включения или выключения освеще
ния нажмите клавишу <.
Освещением можно пользоваться в лю
бое время, даже когда вентилятор выклю
чен.
4

Информация для предварительного ознакомления. Официальной информацией изготовителя не является.
Фильтры и их техническое обслуживание
Снятие и установка металлического
2. Вставьте угольный фильтр.
жиропоглощающего фильтра:
Предупреждение. Галогенные лампы дол
жны быть выключены и должны остыть.
1. Нажмите на фиксатор на жиропоглоща
ющем фильтре в направлении стрелки и
выньте фильтр.
3. Защелкните спереди фиксатор.
Снятие фильтра:
Предупреждение. Галогенные лампы дол
жны быть выключены и должны остыть.
1. Снимите жиропоглощающий фильтр.
2. Нажмите на фиксатор спереди и сними
те угольный фильтр, сдвинув его вниз.
2. Проведите чистку фильтра.
3. Установите жиропоглощающий фильтр.
3. Снова установите очищенный фильтр на
место в вытяжку.
Замена угольного фильтра:
При обычном режиме работы (12 часа в
Угольный фильтр:
день) угольный фильтр следует менять
Предназначен для устранения запахов в
примерно 1 раз в год.
режиме циркуляции воздуха.
Угольный фильтр можно приобрести в
Установка фильтра:
специализированном магазине (см. спе
циальные принадлежности).
Предупреждение. Галогенные лампы дол
жны быть выключены и должны остыть.
Используйте только фильтры нашей
фирмы. Тем самым будет обеспечена
1. Снимите жиропоглощающий фильтр (см.
оптимальная работа вытяжки.
раздел «Снятие и установка металличес
кого жиропоглощающего фильтра»).
Утилизация старого угольного фильтра:
Угольный фильтр не содержит вредных
веществ. Его можно утилизировать как
обычный домашний мусор.
5

Информация для предварительного ознакомления. Официальной информацией изготовителя не является.
Чистка и уход
Замена ламп
Выключите электропитание вытяжки,
1. Выключите вытяжку и отключите ее от
для чего выньте вилку из сетевой розет"
сети путем отсоединения вилки от сете
ки или выключите предохранитель.
вой розетки или выключения предохра
нителя.
При чистке жиропоглощающего фильтра
проводите чистку всех доступных дета
Включенные галогенные лампочки очень
лей корпуса от имеющихся отложений
горячие. Даже через некоторое время пос
жира. Это значительно снижает опас
ле их выключения еще имеется риск ожога.
ность воспламенения и гарантирует наи
2. Снимите ламповое кольцо с помощью
более эффективное функционирование
отвертки или подобного инструмента.
вытяжки.
Для чистки обшивки вытяжки пользуйтесь
горячей мыльной водой или мягким сред
ством для чистки оконных стекол.
Не соскребайте присохшую грязь, а раз
мягчайте ее влажной тряпкой.
Никогда не пользуйтесь абразивными
чистящими средствами или губками, ко
торые могут поцарапать поверхность.
Примечание. Никогда не протирайте
спиртом пластмассовые поверхности,
так как на них могут появиться матовые
3. Замените галогенную лампу (имеющая
пятна.
ся в продаже галогенная лампа, 12 В, мак
симум 20 Вт, цоколь G4).
Предостережение! Достаточно часто
Внимание! См. рис., на котором показан
проветривайте кухню. Никогда не остав
патрон лампы.
ляйте открытое пламя!
Берите лампы только чистой тряпкой.
Чистите клавиши управления только сла
бым мыльным раствором и мягкой влажной
тряпкой. Не используйте для чистки клавиш
управления средство для чистки нержавею
щей стали.
Поверхности из нержавеющей стали:
Используйте мягкое, неабразивное сред
ство для чистки нержавеющей стали.
Чистите только в направлении шлифовки.
Не используйте для чистки поверхнос
4. Вставьте на место ламповое кольцо.
тей из нержавеющей стали средства, содер
жащие песок, соду, кислоты, хлориды и губ
5. Подключите опять вилку к сетевой розет
ки, которые могут поцарапать эти поверхно
ке или включите предохранитель.
сти!
Примечание. Если освещение не работает,
проверьте правильность установки ламп.
Алюминиевые, лакированные и
пластмассовые поверхности:
Используйте мягкую неворсистую ткань
для протирки стекол или микроволокни
стую ткань.
Не пользуйтесь сухими тряпками.
Используйте мягкое средство для чист
ки оконных стекол.
Не используйте агрессивные, кислотные
или щелочные чистящие средства.
Не используйте абразивные средства для
чистки.
6

Информация для предварительного ознакомления. Официальной информацией изготовителя не является.
Инструкция по монтажу
Важные указания
Старая вытяжка не является совершен
Дополнительные указания в случае
но ненужным мусором. Она содержит цен
использования газовых плит:
ные материалы, которые могут быть вторич
но использованы при утилизации с учетом
При монтаже газовых плит соблюдайте
требований по охране окружающей среды.
действующие в данной стране соответству
Перед тем, как отправлять на утилизацию
ющие положения (например, в Германии:
старую вытяжку, приведите ее в неработос
технические правила по установке газовых
пособное состояние.
приборов TRGI).
Ваша новая вытяжка защищена соответ
Во всех случаях следует соблюдать со
ствующей упаковкой на время транспорти
ответствующие правила и указания по уста
ровки. Все материалы, которые использова
новке, которые даются изготовителем газо
ны для этой цели, не наносят вреда окружа
вой плиты.
ющей среде и могут быть переработаны для
вторичного использования. Пожалуйста,
Вытяжку разрешается устанавливать та
сделайте свой вклад в охрану окружающей
ким образом, чтобы только с одной ее сто
среды, отправив этот материал для упаков
роны располагались высокий шкаф или вы
ки на переработку с учетом требований по
сокая стена. При этом расстояние до этого
охране окружающей среды.
шкафа или до этой стены должно быть не
Самые последние сведения относительно
менее 50 мм.
возможностей по утилизации Вашей старой
вытяжки и упаковки новой вытяжки Вы мо
Минимальное расстояние между ниж
жете получить в той организации, где Вы
ним краем вытяжки и верхним краем под
приобрели вытяжку, или в местных админи
ставки для посуды на газовых варочных па
стративных органах.
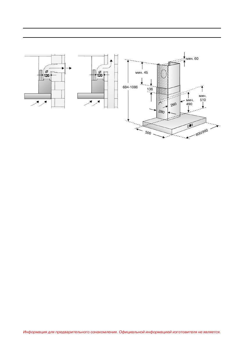
нелях: 650 мм, рис. 1.
Вытяжка предназначена для использо
вания в режиме отвода воздуха или в режи
ме циркуляции воздуха.
Всегда устанавливайте вытяжку над цен
тральной частью варочной панели.
Минимальное расстояние между элект
рической варочной панелью и нижним кра
ем вытяжки: 550 мм, рис. 1.
Над очагом, в котором сгорает твердое
топливо, вследствие потенциальной пожар
ной опасности (например, изза разлетаю
щихся искр) устанавливать вытяжку разре
шается только в том случае, если очаг име
ет закрытое несъемное покрытие, и со
блюдаются все правила, которые действу
ют в каждой конкретной стране. Это ограни
чение не относится к газовым плитам и па
нелям газовых конфорок.
Чем меньше расстояние между вытяж
кой и варочной панелью, тем выше вероят
ность конденсации поднимающихся паров
на вытяжке.
7

Информация для предварительного ознакомления. Официальной информацией изготовителя не является.
Перед монтажом
Режим отвода воздуха
Отводимый воздух подается вверх через
Это можно обеспечить, если воздух при сго
вентиляционную шахту или непосредствен
рании топлива будет выводиться из помеще
но через наружную стену за пределы поме
ния через незакрытые отверстия, например,
щения.
через двери, окна, настенные вентиляцион
ные шкафы или с помощью технических мер,
Отводимый воздух нельзя выводить через
обеспечивающих блокировку других уст
дымоход, который используется для других
ройств при работе одного устройства и т.д.
целей, или через шахту, используемую для
вентиляции помещений, в которых также
При подаче воздуха в недостаточном
установлены печи или камины.
объеме возникает опасность отравления
газообразными продуктами сгорания,
При отводе воздуха следует соблюдать
которые всасываются обратно в комнату.
предписания административных органов
власти (например, принятые в данной
Применение только настенного вентиляци
стране строительные нормы и правила).
онного шкафа не гарантирует, что предель
ное значение пониженного давления возду
Следует получить разрешение соответству
ха не будет превышено.
ющих административных органов при отво
де воздуха через дымоход, который не экс
Примечание. При оценке давления воздуха
плуатируется.
следует учитывать всю систему вентиляции,
которая имеется в здании. Однако это пра
Если вытяжка в режиме отвода воздуха
вило не применяется при использовании
работает одновременно с отопительным
оборудования для приготовления пищи, на
оборудованием, которое пользуется вы"
пример, варочных панелей и газовых плит.
тяжными трубами (например, отопитель
ные системы, проточные водонагреватели
Если вытяжка используется в режиме цир
или котлы, которые работают на газе, жидком
куляции воздуха с угольным фильтром, экс
или твердом топливе), необходимо обеспе"
плуатация возможна без какихлибо ограни
чить подачу воздуха в объеме, достаточ
чений.
ном для сгорания топлива.
По соображениям безопасности требуется,
чтобы в помещении, где установлено отопи
тельное или нагревательное оборудование
с открытым огнем, давление воздуха по
сравнению с атмосферным было понижено
не более чем на 4 Па (0,04 мбар).
8

Информация для предварительного ознакомления. Официальной информацией изготовителя не является.
Перед монтажом
В режиме удаления отработанного воз"
Трубы прямоугольного сечения долж
духа в вытяжке следует установить обрат
ны иметь площадь внутреннего сече"
ный клапан, если его нет в вытяжной трубе
ния, равную площади внутреннего сече
или воздуховоде. Если обратный клапан не
ния соответствующих круглых труб.
прилагается к прибору, Вы можете купить
Они не должны иметь резких изгибов.
его в специализированном магазине.
В случае труб с внутренним диаметром
100 мм площадь внутреннего сечения со
Монтаж обратного клапана:
2
ставляет примерно 78 см
.
Вставьте обратный клапан в воздушный
В случае труб с внутренним диаметром
патрубок.
125 мм площадь внутреннего сечения со
2
ставляет примерно 113 см
.
Если трубы имеют различные диа"
метры: используйте герметизирующую
ленту.
В случае эксплуатации вытяжки в режи"
ме отвода воздуха обеспечивайте дос
таточное поступление свежего воздуха.
Подсоединение к вытяжной трубе
диаметром 125 мм:
Установите вытяжную трубу непосред
ственно в выходном отверстии вытяжки.
Подсоединение к вытяжной трубе
диаметром 100 мм:
Должна быть возможность сдвигать
Вставьте переходник для сужения кана
вверх два клапана с небольшим подпружи
ла в выходное отверстие вытяжки и при
ниванием.
соедините к нему вытяжную трубу.
Если отработанный воздух удаляется
через наружную стену, следует использо
вать для этой цели телескопические стенные
коробки.
Оптимальная эффективность вытяжки
обеспечивается при выполнении следу"
ющих условий:
Использование коротких и гладких вы
тяжных труб без изгибов.
Использование минимального количе
ства колен.
Использование труб с насколько возмож
но большими внутренними диаметрами,
а также использование колен труб с боль
шим радиусом.
Использование длинных, неровных
вытяжных труб, большого количества
колен или труб с малым внутренним
диаметром ведет к снижению эффек"
тивности работы вытяжки и, одновре"
менно, к повышению уровня шумов.
Круглые трубы:
Мы рекомендуем внутренний диаметр
125 мм (минимальный внутренний диа
метр 100 мм).
9

Информация для предварительного ознакомления. Официальной информацией изготовителя не является.
Перед монтажом
Электрическое подключение
Режим циркуляции воздуха
Вытяжку следует подключать только к за
земленной розетке, установленной в соот
Применяется, если
ветствии с действующими правилами.
нет возможности
По возможности розетку с контактом зазем
использовать ре
ления следует располагать непосредствен
жим отвода возду
но за обшивкой вытяжной трубы.
ха. При этом ис
пользуется уголь
Электрические характеристики:
ный фильтр.
Их можно найти на табличке с техническими
характеристиками внутри вытяжки, после
снятия рамки фильтра.
В случае ремонта всегда отсоединяй
те вытяжку от электрической сети.
Длина соединительного кабеля: 1,30 м.
В случае необходимости фиксирован"
ного подключения вытяжки к сети:
Вытяжка должна подключаться к сети элек
тропитания только квалифицированным
электриком.
Со стороны сети электропитания должно
быть установлено размыкающее устрой
ство. В качестве размыкающего устройства
следует использовать переключатель с ми
нимальным расстоянием между контактами
3 мм. К числу таких переключателей относят
ся автоматические выключатели или контак
торы.
Если соединительный кабель вытяжки
Полный комплект для монтажа можно
поврежден, для предотвращения серьезных
приобрести в специализированном мага"
травм пользователя его замену должны осу
зине. Соответствующие номера принад
ществлять изготовитель, служба сервиса
лежностей можно найти в инструкции по эк
или квалифицированный специалист.
сплуатации.
Данная вытяжка соответствует требованиям
Подготовка стены
правил Европейского союза по подавлению
радиопомех.
Стена должна быть ровной и вертикаль
ной.
Для прочного крепления используйте дю
бели.
Вес в кг:
Режим Режим
отвода циркуляции
воздуха воздуха
60 см 19,0 21,0
90 см 21,5 23,5
Мы сохраняем за собой право на изменение кон
струкции в связи с техническими усовершенство
ваниями.
10

Информация для предварительного ознакомления. Официальной информацией изготовителя не является.
Монтаж
Данная вытяжка предназначена для монта
Примечание. Если предполагается уста
жа на стене кухни.
навливать какиелибо специальные принад
лежности, это следует учесть.
1. Снимите жиропоглощающий фильтр (см.
инструкцию по эксплуатации).
5. Прикрепите 2 входящие в комплект по
ставки прокладки к скобам для крепления
2. Начертите линию на стене от потолка до
обшивки вытяжной трубы.
нижнего края вытяжки в центре того мес
Прикрепите скобы для крепления обшив
та, в котором предполагается установить
ки вытяжной трубы 2 винтами с шести
вытяжку.
гранной головкой.
3. Используйте шаблон для маркировки на
6. Ввинтите два верхних винта с шестигран
стене точек, в которых будут установле
ной головкой так, чтобы они выступали
ны шурупы.
примерно на 5 мм.
Обеспечьте минимальное расстояние
7. Подвесьте вытяжку на винты.
между варочной панелью и вытяжкой
550 мм – для электрической варочной па
нели и 650 мм – для газовой варочной па
нели. Нижний край шаблона располагается
на уровне нижнего края вытяжки.
4. Просверлите 4 отверстия ∅ 8 мм для вы
тяжки и 2 отверстия ∅ 8 мм для обшивки.
Вставьте дюбели в отверстия таким об
разом, чтобы они были заподлицо со сте
ной.
мин. 550 до электроплиты
мин. 650 до газовой плиты
11

Информация для предварительного ознакомления. Официальной информацией изготовителя не является.
Монтаж
8. Ввинтите два нижних винта с шестигран
10.Подключите вытяжку к электропитанию.
ной головкой.
11.Снимите защитную пленку с обеих сек
ций обшивки вытяжной трубы.
Перед затягиванием 4 винтов выров"
няйте вытяжку.
Старайтесь избежать повреждений
чувствительных поверхностей.
12.Соедините обе секции обшивки вытяж
ной трубы (разрезы в верхней секции
должны быть направлены вниз) и вставь
те их в отверстие в вытяжке.
При вставлении секций одну в другую
старайтесь их не поцарапать, для чего,
например, установите в качестве защи
ты монтажные шаблоны по краям нижней
секции обшивки вытяжной трубы.
9. Подсоедините трубу для вывода воздуха.
13.Выдвиньте верхнюю секцию и прикрепи
те ее сбоковых сторон двумя винтами к
монтажным скобам.
14.Установите на место жиропоглощающий
фильтр (см. инструкцию по эксплуата
ции).
12

Информация для предварительного ознакомления. Официальной информацией изготовителя не является.
Рис. 1
ГАЗОВАЯ
ЭЛЕКТРО
ПЛИТА
ПЛИТА
не менее 650 мм
не менее 550 мм
13

Информация для предварительного ознакомления. Официальной информацией изготовителя не является.
DHZ 5105
360732
14









