Bosch DKE 995F: инструкция
Характеристики, спецификации
Инструкция к Кухонной Вытяжке Bosch DKE 995F

B
RUS
Инструкция по эксплуатации
RUS
Инструкция по эксплуатации
Напечатано в России / октябрь 2006 / 200 / GM2502
DKE 995F
b
901530

Описание вытяжки Режим работы
Это можно обеспечить, если воздух при сго
Стеклянный экран Обшивка
рании топлива будет выводиться из поме
вытяжной трубы
щения через незакрытые отверстия, напри
мер, через двери, окна, настенные венти
Переключатель
ляционные шкафы или с помощью техни
освещения/
ческих мер, обеспечивающих блокировку
вентилятора
других устройств при работе одного устрой
ства и т.д.
Применение только настенного вентиляци
онного шкафа не гарантирует, что предель
ное значение пониженного давления возду
ха не будет превышено.
Примечание. При оценке давления воздуха
следует учитывать всю систему вентиляции,
которая имеется в здании. Однако это пра
вило не применяется при использовании
оборудования для приготовления пищи, на
пример, варочных панелей и газовых плит.
При обеспечении отвода воздуха необходи
Освещение Фильтр
мо придерживаться правил, установленных
местными административными органами.
Режим работы
Перед первым
Режим отвода воздуха:
использованием вытяжки
Вентилятор вытяжки всасывает кухон
ные испарения и удаляет их за пределы
Важные указания:
помещения через жиропоглощающий
Эта вытяжка соответствует применяемым
фильтр.
правилам техники безопасности.
Жиропоглощающий фильтр поглощает
Ремонт вытяжки должен выполняться толь
частицы жира, которые могут содер
ко квалифицированным персоналом.
жаться в кухонных испарениях.
Неправильно выполненный ремонт вы
Кухня в значительной степени освобож
тяжки может привести к возникновению
дается от жиров и запахов.
серьезной опасности для пользователя.
Если вытяжка в режиме отвода воздуха
работает одновременно с отопительным
Подключение вытяжки и ввод ее в экс
оборудованием, которое пользуется вы
плуатацию должен выполнять только квали
тяжными трубами (например, отопитель
фицированный специалист.
ные системы, проточные водонагреватели
Утилизацию упаковочного материала
или котлы, которые работают на газе, жид
ком или твердом топливе), необходимо
следует проводить должным образом (см.
обеспечить подачу воздуха в объеме, до
инструкцию по монтажу).
статочном для сгорания топлива.
Эксплуатируйте вытяжку только с уста
По соображениям безопасности требуется,
новленными лампами.
чтобы в помещении, где установлено ото
пительное или нагревательное оборудова
Неисправные лампы следует сразу же
ние с открытым огнем, давление воздуха по
заменять, чтобы предотвратить перегрузку
сравнению с атмосферным было понижено
оставшихся ламп.
не более чем на 4 Па (0,04 мбар).
Информация для предварительного ознакомления. Официальной информацией изготовителя не является.
1

Перед первым
Управление вытяжкой
использованием вытяжки
Самым эффективным способом удале
Никогда не эксплуатируйте вытяжку без
ния кухонных испарений, образующихся
установленного жиропоглощающего филь
при приготовлении пищи, является следу
тра.
ющий способ:
Включите вытяжку сразу же, как толь
Перегретые жир и масло легко воспла
ко Вы начинаете готовить.
меняются. Поэтому всегда тщательно конт
Выключите вытяжку через несколько
ролируйте процесс приготовления блюд с
минут после того, как Вы закончите го
использованием жира или масла, напри
товить.
мер, картофеля фри.
Не стерилизуйте продукты питания
пламенем непосредственно под вытяжкой.
Опасность воспламенения жиропогло
!
щающего фильтра.
Эксплуатация вытяжки над очагом, в
котором сгорает твердое топливо (уголь,
Освещение
Индикатор
Остаточ
дерево и т.д.), разрешается только в огра
для настройки
ный ход
ниченных случаях (см. инструкцию по мон
вентилятора
тажу).
Выключение
Уменьшение
Газовые варочные панели/
Включение
вентилятора
скорости
газовые плиты
и увеличение
вентилятора
скорости
Всегда правильно эксплуатируйте га
вентилятора
зовые варочные панели.
Звуковой сигнал:
Важно:
Нажатие клавиши подтверждается зву
Пламя газовых конфорок всегда должно
ковым сигналом.
быть закрыто посудой.
Сильный нагрев пламенем газовых кон
Выключение звукового сигнала:
!
форок может повредить вытяжку.
Одновременно нажмите клавиши 0 и
++
++
+
и удерживайте их нажатыми, пока при
Во время эксплуатации тепловая на
мерно через 3 секунды не прозвучит
грузка всех конфорок не должна пре
звуковой сигнал.
вышать 11,3 кВт, независимо от номи
нальной мощности.
Включение звукового сигнала:
Исключение:
Повторите вышеописанную операцию.
В течение короткого времени (не более
15 минут) можно эксплуатировать кон
Включение вентилятора:
форки с тепловой нагрузкой до 13,5 кВт,
Нажмите клавишу
+.
++
++
но только если вентилятор включен по
стоянно на 2 ступени. (В противном слу
Установка требуемой скорости
чае возникает опасность ожога при при
вентилятора:
косновении к поверхности корпуса.)
Нажмите клавишу
+. Скорость вентиля
++
++
тора увеличивается на одну ступень.
Нажмите клавишу
––
––
–. Скорость вентиля
тора уменьшается на одну ступень.
Выключение вентилятора:
Нажмите клавишу 0. Через короткое
время 0 на индикаторе перестает све
титься.
или:
Нажимайте клавишу
– до тех пор, пока
––
––
вентилятор не выключится. Через корот
кое время 0 на индикаторе перестает
светиться.
2
Информация для предварительного ознакомления. Официальной информацией изготовителя не является.

Управление вытяжкой
Фильтры и их
техническое обслуживание
Интенсивная ступень:
Максимальная производительность обес
Жиропоглощающий фильтр:
печивается на интенсивной ступени. Такая
Для поглощения частиц жира в кухонных
производительность обычно требуется
испарениях, образующихся при приго
только на короткое время.
товлении пищи, в вытяжке установлены
Нажимайте клавишу
++
++
+ до тех пор, пока
два металлических жиропоглощающих
на индикаторе не появится индикация P.
фильтра.
Если интенсивная ступень не отключа
Фильтры сделаны из невоспламеняющего
ется вручную, вентилятор через 10 ми
ся металла.
нут автоматически переключится на
уровень 2.
Внимание:
По мере насыщения фильтра остатками
Остаточный
жиров не только увеличивается риск вос
ход вентилятора
пламенения, но это может также оказать
Нажмите клавишу .
отрицательное воздействие на работу вы
Вентилятор продолжает работать на
тяжки.
уровне 1 в течение 10 минут, и все это
Важное замечание:
время на индикаторе мигает точка. По
Регулярная чистка металлического жиро
истечении этого времени вентилятор
поглощающего фильтра снижает вероят
автоматически выключается.
ность воспламенения, которое возможно
Освещение:
изза нагрева при жарении в большом ко
Для включения или выключения осве
личестве жира.
щения на короткое время нажмите кла
Индикатор насыщения:
вишу <.
Когда жиропоглощающий фильтр доходит
Освещением можно пользоваться в лю
до точки насыщения, в течение 10 секунд
бое время, даже когда вентилятор вык
после выключения вентилятора слышен
лючен.
звуковой сигнал, а на индикаторе появля
Регулировка яркости:
ется . Следует сразу же произвести чист
Удерживайте нажатой клавишу < до по
ку жиропоглощающего фильтра.
лучения требуемой яркости.
Чистка металлического
Автоматическое включение освеще
жиропоглощающего фильтра:
ния, например, с помощью таймера:
Фильтр можно мыть в посудомоечной
Вентилятор и освещение должны быть
машине. Однако это может привести к
выключены.
незначительному изменению окраски
фильтра.
Включение:
Установите внешний фильтр таким об
Одновременно нажмите клавиши
и !.
разом, чтобы отверстия для навешива
Примерно через 3 секунды свет вклю
ния были внизу, и промывная вода мог
чается для подтверждения настройки.
ла стекать.
Выключение:
Важное замечание:
Сильно загрязненный металлический
Повторите операцию при включенном осве
жиропоглощающий фильтр не следует
щении.
мыть в посудомоечной машине вместе
Примерно через 3 секунды свет выклю
с посудой.
чается для подтверждения настройки.
При ручной мойке фильтра сначала за
мочите его в горячей мыльной воде.
Затем очистите фильтр щеткой, тща
тельно прополощите его и дайте воде
стечь.
Удалите с индикатора.
Нажмите клавишу 0.
Информация для предварительного ознакомления. Официальной информацией изготовителя не является.
3

Фильтры и их техническое обслуживание
Снятие
Установка
жиропоглощающего фильтра:
жиропоглощающего фильтра:
1. Потяните внешний фильтр вниз, пока он
1. Вставьте внутренний фильтр сзади и
не освободится из магнитов.
откиньте его кверху.
2. Вверху снимите фильтр с петель, удер
живая его в вертикальном положении.
2. Навесьте внешний фильтр вверху на
петли, удерживая его в вертикальном
положении.
3. Нажмите на стопор внутреннего фильт
ра и откиньте фильтр вниз.
3. Надавите на фильтр, чтобы он зафикси
ровался магнитами.
4
Информация для предварительного ознакомления. Официальной информацией изготовителя не является.

Чистка и уход
Выключите электропитание вытяжки,
Поверхности из нержавеющей стали:
для чего отсоедините вилку от сетевой
Используйте мягкое, неабразивное
розетки или выключите предохрани
средство для чистки нержавеющей
тель.
стали.
При чистке жиропоглощающего фильт
Чистите только в направлении шли
ра проводите чистку всех доступных де
фовки.
талей корпуса от имеющихся отложений
жира. Это значительно снижает опас
Не используйте для чистки поверхнос
ность воспламенения и гарантирует
тей из нержавеющей стали средства, со
наиболее эффективное функциониро
держащие песок, соду, кислоты, хлориды и
вание вытяжки.
губки, которые могут поцарапать эти повер
Для чистки обшивки вытяжки пользуй
хности!
тесь горячей мыльной водой или мягким
средством для чистки оконных стекол.
Алюминиевые, лакированные
Не соскребайте присохшую грязь, а раз
и пластмассовые поверхности:
мягчайте ее влажной тряпкой.
Используйте мягкую неворсистую ткань
Никогда не пользуйтесь абразивными
для протирки стекол или микроволокни
чистящими средствами или губками,
стую ткань.
которые могут поцарапать поверхность.
Не пользуйтесь сухими тряпками.
Примечание. Никогда не протирайте
спиртом пластмассовые поверхности,
Используйте мягкое средство для чист
так как на них могут появиться матовые
ки оконных стекол.
пятна.
Не используйте агрессивные, кислот
Предостережение. Достаточно часто
ные или щелочные чистящие средства.
проветривайте кухню. Никогда не остав
Не используйте абразивные средства
ляйте открытое пламя!
для чистки.
Чистите клавиши управления только
слабым мыльным раствором и мягкой
влажной тряпкой. Не используйте для чис
тки клавиш управления средство для чист
ки нержавеющей стали.
Информация для предварительного ознакомления. Официальной информацией изготовителя не является.
5

Замена ламп
1. Выключите вытяжку и отключите ее от
сети путем отсоединения вилки от се
тевой розетки или выключения предох
ранителя.
Включенные галогенные лампочки
очень горячие. Даже через некоторое вре
мя после их выключения еще имеется риск
ожога.
2. Снимите ламповое кольцо с помощью
отвертки или подобного инструмента.
3. Замените галогенную лампу (имеюща
яся в продаже галогенная лампа, 12 В,
максимум 20 Вт, цоколь G4).
Внимание: патрон лампы.
Берите лампы только чистой тряпкой.
4. Вставьте на место ламповое кольцо.
5. Подключите опять вилку к сетевой ро
зетке или включите предохранитель.
Примечание. Если освещение не работа
ет, проверьте правильность установки ламп.
Неисправности
Если на индикаторе появилось :
Если у Вас имеются какиелибо вопросы,
См. раздел «Фильтры и их техническое
или если появилась неисправность, обра
обслуживание».
щайтесь в Сервисную службу (cм. перечень
мастерских Сервисной службы).
Если вытяжка не работает:
При телефонном звонке, пожалуйста, сооб
Отсоедините вытяжку от сети, отсоеди
щите следующие сведения:
нив вилку от розетки или выключив пре
дохранитель. Подождите примерно 1 ми
ENr. FD
нуту и затем опять включите вытяжку в
сеть.
Впишите эти номера в вышеуказанных ме
стах. Номера ENr. (номер изделия) и FD (за
водской номер) Вы найдете на табличке с
техническими характеристиками внутри
Вашей вытяжки после того, как снимите
жиропоглощающий фильтр.
6
Информация для предварительного ознакомления. Официальной информацией изготовителя не является.

Инструкция по монтажу/Важные указания
Старая вытяжка не является совершен
Установка вытяжки над газовой вароч
но ненужным мусором. Она содержит цен
ной панелью или плитой разрешается лишь
ные материалы, которые могут быть вторич
на минимальном расстоянии 650 мм.
но использованы при утилизации с учетом
требований по охране окружающей среды.
Пламя газовых конфорок всегда долж
Перед тем, как отправлять на утилизацию
но быть закрыто посудой.
старую вытяжку, приведите ее в неработос
Газовые варочные панели/
пособное состояние.
газовые плиты
Ваша новая вытяжка защищена соот
Во время эксплуатации тепловая на
ветствующей упаковкой на время транспор
грузка всех конфорок не должна пре
тировки. Все материалы, которые исполь
вышать 11,3 кВт, независимо от номи
зованы для этой цели, не наносят вреда ок
нальной мощности.
ружающей среде и могут быть переработа
Исключение:
ны для вторичного использования. Пожа
В течение короткого времени (не более
луйста, сделайте свой вклад в охрану окру
15 минут) можно эксплуатировать кон
жающей среды, отправив этот материал для
форки с тепловой нагрузкой до 13,5 кВт,
упаковки на переработку с учетом требова
но только если вентилятор включен по
ний по охране окружающей среды.
стоянно на 2 ступени. (В противном слу
Самые последние сведения относительно
чае возникает опасность ожога при при
возможностей по утилизации Вашей старой
косновении к поверхности корпуса.)
вытяжки и упаковки новой вытяжки Вы мо
Плиты на твердом топливе
жете получить в той организации, где Вы
Максимальная номинальная тепловая
приобрели вытяжку, или в местных админи
нагрузка и максимальное расстояние до
стративных органах.
плиты имеют такое же значение, как и в
Вытяжка предназначена только для ис
случае газовых плит.
пользования в режиме отвода воздуха.
Над очагом, в котором сгорает твердое
Всегда устанавливайте вытяжку над
топливо, вследствие потенциальной пожар
центральной частью варочной панели.
ной опасности (например, изза разлетаю
Минимальное расстояние между элек
щихся искр) устанавливать вытяжку разре
трической варочной панелью и нижним кра
шается только в том случае, если очаг име
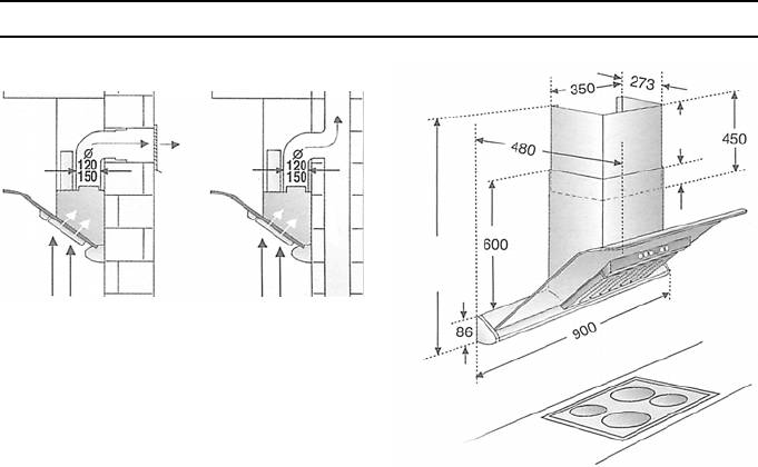
ем вытяжки: 550 мм (см. рис. на стр. 13).
ет закрытое несъемное покрытие, и со
блюдаются все правила, которые действу
Дополнительные указания в случае
ют в каждой конкретной стране. Это огра
использования газовых плит:
ничение не относится к газовым плитам и
панелям газовых конфорок.
При монтаже газовых плит соблюдай
те действующие в данной стране соответ
Чем меньше расстояние между вытяж
ствующие положения (например, в Герма
кой и варочной панелью, тем выше вероят
нии: технические правила по установке га
ность конденсации поднимающихся паров
зовых приборов TRGI).
на вытяжке.
Во всех случаях следует соблюдать со
ответствующие правила и указания по ус
тановке, которые даются изготовителем га
зовой плиты.
Вытяжку разрешается устанавливать
таким образом, чтобы только с одной ее
стороны располагались высокий шкаф или
высокая стена. При этом расстояние до это
го шкафа или до этой стены должно быть не
менее 50 мм.
Информация для предварительного ознакомления. Официальной информацией изготовителя не является.
7

Перед монтажом
Режим отвода воздуха
≥ 40
≥ 55
мин.800
макс.1080
Отводимый воздух подается вверх через
вентиляционную шахту или непосредствен
но через наружную стену за пределы поме
щения.
Отводимый воздух нельзя выводить через
дымоход, который используется для других
целей, или через шахту, используемую для
вентиляции помещений, в которых также
установлены печи или камины.
При отводе воздуха следует соблюдать
предписания административных органов
Применение только настенного вентиляци
власти (например, принятые в данной
онного шкафа не гарантирует, что предель
стране строительные нормы и правила).
ное значение пониженного давления возду
Следует получить разрешение соответству
ха не будет превышено.
ющих административных органов при отво
Примечание. При оценке давления воздуха
де воздуха через дымоход, который не экс
следует учитывать всю систему вентиляции,
плуатируется.
которая имеется в здании. Однако это пра
Если вытяжка в режиме отвода воздуха
вило не применяется при использовании
работает одновременно с отопительным
оборудования для приготовления пищи, на
оборудованием, которое пользуется вы
пример, варочных панелей и газовых плит.
тяжными трубами (например, отопитель
Если отводимый воздух удаляется че
ные системы, проточные водонагреватели
рез наружную стену, следует установить
или котлы, которые работают на газе, жид
вентиляционный телескопический блок в
ком или твердом топливе), необходимо
наружной стене.
обеспечить подачу воздуха в объеме, до
статочном для сгорания топлива.
Оптимальная эффективность вытяжки
По соображениям безопасности требуется,
обеспечивается при выполнении следу
чтобы в помещении, где установлено ото
ющих условий:
пительное или нагревательное оборудова
Использование коротких и гладких вы
ние с открытым огнем, давление воздуха по
тяжных труб без изгибов.
сравнению с атмосферным было понижено
Использования минимального количе
не более чем на 4 Па (0,04 мбар).
ства колен.
Это можно обеспечить, если воздух при сго
Использование труб с насколько воз
рании топлива будет выводиться из помеще
можно большими внутренними диамет
ния через незакрытые отверстия, например,
рами, а также использование колен труб
через двери, окна, настенные вентиляцион
с большим радиусом.
ные шкафы или с помощью технических мер,
Использование длинных, неровных
обеспечивающих блокировку других уст
вытяжных труб, большого количе
ройств при работе одного устройства и т.д.
ства колен или труб с малым внут
При подаче воздуха в недостаточном
ренним диаметром ведет к сниже
объеме возникает опасность отравления
нию эффективности работы вытяж
газообразными продуктами сгорания,
ки и, одновременно, к повышению
которые всасываются обратно в комнату.
уровня шумов.
8
Информация для предварительного ознакомления. Официальной информацией изготовителя не является.

Перед монтажом
Круглые трубы:
Подготовка стены
Мы рекомендуем внутренний диаметр
Стена должна быть ровной и вертикаль
150 мм (минимальный внутренний ди
ной.
аметр 120 мм).
Для прочной опоры используйте дю
Трубы прямоугольного сечения дол
бели.
жны иметь площадь внутреннего сече
ния, равную площади внутреннего се
Вес в кг: 27,0
чения соответствующих круглых труб.
Мы сохраняем за собой право на изменение кон
Они не должны иметь резких изгибов.
струкции в связи с техническими усовершенство
В случае труб с внутренним диаметром
ваниями.
120 мм площадь внутреннего сечения
составляет примерно 113 см
2
.
В случае труб с внутренним диаметром
150 мм площадь внутреннего сечения
составляет примерно 177 см
2
.
Если трубы имеют различные диа
метры используйте герметизирующую
ленту.
В случае эксплуатации вытяжки в режи
ме отвода воздуха обеспечивайте до
статочное поступление свежего воздуха.
Подсоединение к вытяжной трубе
диаметром 150 мм:
Установите вытяжную трубу непосред
ственно в выходном отверстии вытяжки.
Подсоединение к вытяжной трубе
диаметром 120 мм:
Вставьте переходник для сужения кана
ла в выходное отверстие вытяжки и при
соедините к нему вытяжную трубу.
Информация для предварительного ознакомления. Официальной информацией изготовителя не является.
9

Электрическое подключение
Монтаж
Вытяжку следует подключать только к за
Данная вытяжка предназначена для мон
земленной розетке, установленной в соот
тажа на стене кухни.
ветствии с действующими правилами.
1. Снимите жиропоглощающий фильтр
По возможности розетку с контактом зазем
(см. инструкцию по эксплуатации).
ления следует располагать непосредствен
но за обшивкой вытяжной трубы.
2. Начертите линию на стене от потолка до
нижнего края вытяжки в центре того
места, в котором предполагается уста
Электрические характеристики:
новить вытяжку.
Их можно найти на табличке с технически
3. Используйте шаблон для маркировки
ми характеристиками внутри вытяжки пос
точек на стене, в которых будут установ
ле снятия обоих металлических жиропогло
лены шурупы. Чтобы облегчить подве
щающих фильтров.
шивание вытяжки, начертите контур той
зоны, где будет крепиться вытяжка.
В случае ремонта всегда отсоединяй
те вытяжку от электрической сети.
Обеспечьте минимальное расстояние
между варочной панелью и вытяжкой
Длина соединительного кабеля: 1,30 м.
550 мм – для электрической варочной па
В случае необходимости фиксирован
нели и 650 мм – для газовой варочной па
ного подключения вытяжки к сети:
нели. Нижний край шаблона располагается
на уровне нижнего края вытяжки.
Вытяжка должна подключаться к сети элек
тропитания только квалифицированным
4. Просверлите 3 отверстия ∅ 8 мм для
электриком местного энергоснабжающего
вытяжки и 2 отверстия ∅ 8 мм для об
предприятия.
шивки. Вставьте дюбели в отверстия
Со стороны сети электропитания должно
таким образом, чтобы они были запод
быть установлено размыкающее устрой
лицо со стеной.
ство. В качестве размыкающего устройства
следует использовать переключатель с ми
нимальным расстоянием между контактами
3 мм. К числу таких переключателей отно
сятся автоматические выключатели или
контакторы.
Данная вытяжка соответствует требовани
ям правил Европейского Сообщества по
подавлению радиопомех.
≥ 550 до электроплиты
≥ 650 до газовой плиты
Примечание. Если предполагается уста
навливать какиелибо специальные принад
лежности, это следует учесть.
10
Информация для предварительного ознакомления. Официальной информацией изготовителя не является.

Монтаж
5. Привинтите один уголок вверху и два
7. Ввинтите нижний шуруп (с шестигран
внизу.
ной головкой).
8. Установите соединение труб.
9. Подключите вытяжку к электропитанию.
10.Снимите защитную пленку с обеих сек
ций вытяжной трубы.
Старайтесь избежать повреждений
чувствительных поверхностей.
11.Задвиньте верхнюю секцию вытяжной
6. Подвесьте вытяжку. Выровняйте ее по
трубы в нижнюю секцию вытяжной
высоте и по горизонтали с помощью ре
трубы.
гулировочных винтов.
При вставлении секций одну в дру
гую старайтесь их не поцарапать, для
чего, например, установите в качестве
защиты монтажные шаблоны по краям
нижней секции вытяжной трубы.
12.Вставьте полную вытяжную трубу под
углом и поверните ее назад.
Информация для предварительного ознакомления. Официальной информацией изготовителя не является.
11

Монтаж
13.Осторожно выдвиньте верхнюю секцию
14.Монтаж стеклянного экрана:
вытяжной трубы вверх и с боков привин
– Удерживая стеклянный экран обеи
тите двумя винтами к уголку.
ми руками, вставьте его в боковые
направляющие и задвиньте вниз до
упора.
– Вставьте обе пластмассовых втулки
слева и справа в держатели. Для
этого стеклянный экран должен
быть задвинут вниз до упора.
– Ввинтите винты слева и справа в
пластмассовые втулки.
15.Снова установите жиропоглощающий
фильтр (см. инструкцию по эксплуата
ции).
12
Информация для предварительного ознакомления. Официальной информацией изготовителя не является.

ЭЛЕКТРО
ГАЗОВАЯ
ПЛИТА
ПЛИТА
не менее
550 мм
не менее
650 мм
Изготовитель не исключает возможности распространения данной инструкции также на новые модели
продукции, которые будут выведены на рынок после изготовления тиража этой инструкции по эксплу
атации при условии, что новые модели продукции будут идентичны актуальным с точки зрения особен
ностей их эксплуатации.
Право на внесение изменений изготовитель оставляет за собой.
Информация для предварительного ознакомления. Официальной информацией изготовителя не является.
13









