Bosch DWA 062450: инструкция
Характеристики, спецификации
Инструкция к Кухонной Вытяжке Bosch DWA 062450

RUS
Инструкция по эксплуатации и монтажу
DWA 062450
901550

Информация для предварительного ознакомления. Официальной информацией изготовителя не является.
Содержание
Инструкция по эксплуатации 2
Инструкция по монтажу 10
Изготовитель не исключает возможности распространения данной инструкции также на новые мо-
дели продукции, которые будут выведены на рынок после изготовления тиража этой инструкции по
эксплуатации при условии, что новые модели продукции будут идентичны актуальным с точки зрения
особенностей их эксплуатации.
Данная инструкция по эксплутации распространяется также на модель DWA092450.
Право на внесение изменений изготовитель оставляет за собой.

Информация для предварительного ознакомления. Официальной информацией изготовителя не является.
Инструкция по эксплуатации
Режимы работы
Режим отвода воздуха:
Примечание При оценке давления воз
духа следует учитывать всю систему
q
Вентилятор вытяжки всасывает кухон
вентиляции, которая имеется в здании
ные испарения и удаляет их за преде
Однако это правило не применяется при
лы помещения через жироулавливаю
использовании оборудования для при
щий фильтр
готовления пищи, например, варочных
q
Жироулавливающий фильтр погло
панелей и газовых плит
щает частицы жира, которые могут
Если вытяжка используется в режиме
содержаться в кухонных испарениях
циркуляции воздуха (с угольным фильт
q
Кухня в значительной степени осво
ром), эксплуатация возможна без каких
бождается от жиров и запахов
либо ограничений
Если вытяжка в режиме отвода воз-
Режим циркуляции воздуха:
духа работает одновременно с ото-
пительным оборудованием, которое
q
Этот режим требует установки уголь
пользуется вытяжными трубами (на
ного фильтра (см раздел «Фильтры и
пример, отопительные системы, проточ
их техническое обслуживание»)
ные водонагреватели или котлы, кото
Полный комплект для установки
рые работают на газе, жидком или твер
и фильтры для замены можно приоб
дом топливе), необходимо обеспечить
рести в специализированных ма-
подачу воздуха в объеме, достаточном
газинах Соответствующие номера
для сгорания топлива
принадлежностей можно найти в кон
По соображениям безопасности требу
це инструкции
ется, чтобы в помещении, где установ
q
Вентилятор вытяжки всасывает кухон
лено отопительное или нагревательное
ные испарения, которые очищаются в
оборудование с открытым огнем, давле
жироулавливающем фильтре и уголь
ние воздуха по сравнению с атмосфер
ном фильтре После этого очищенный
ным было понижено не более чем на 4 Па
воздух возвращается на кухню
(0,04 мбар)
q
Жироулавливающий фильтр погло
Это можно обеспечить, если воздух при
щает частицы жира, которые могут
сгорании топлива будет выводиться из
содержаться в кухонных испарениях
помещения через незакрытые отвер
q
Угольный фильтр удаляет имеющие
стия, например, через двери, окна, на
ся запахи
стенные вентиляционные шкафы или с
помощью технических мер, обеспечива
Без установленного угольного
ющих блокировку других устройств при
фильтра пахучие вещества кухонных
работе одного устройства и тд
испарений не связываются
При подаче воздуха в недостаточном
объеме возникает опасность отрав-
ления газообразными продуктами
сгорания, которые всасываются об-
ратно в комнату.
Применение только настенного венти
ляционного шкафа не гарантирует, что
предельное значение пониженного дав
ления воздуха не будет превышено
2

Информация для предварительного ознакомления. Официальной информацией изготовителя не является.
Перед первым использованием вытяжки
Важные указания:
q
Перед первым использованием но
вой вытяжки внимательно прочтите
q
Эта инструкция по эксплуатации от
инструкцию по эксплуатации Она со
носится к нескольким моделям вытя
держит важную информацию по Ва
жек Возможно, что описанные в ней
шей безопасности, а также по эксплу
отдельные детали оснащения отсутс
атации вытяжки и уходу за ней
твуют в Вашей вытяжке
q
Сохраните инструкцию по эксплуата
q
Эта вытяжка соответствует действу
ции и монтажу для возможной пере
ющим правилам техники безопаснос
дачи последующему владельцу
ти
q Данный прибор имеет
Ремонт вытяжки должен выполнять
маркировку в соответс
ся только квалифицированным пер
твии с европейской ди
соналом
рективой 2002/96/EG по
Неправильно выполненный ремонт
утилизации старых элек
вытяжки может привести к возник-
тронных и электрических
новению серьезной опасности для
приборов (waste electrical
пользователя.
and electronic equipment – WEEE) Эта
директива определяет порядок воз
врата и утилизации старых приборов
в рамках Европейского союза
Газовые варочные панели/
газовые плиты
Неисправности
Не эксплуатируйте более двух газо
вых конфорок одновременно в течение
Если у Вас имеются какиелибо вопро
длительного интервала времени (макс
сы, или если появилась неисправность,
15 минут) при максимальной тепловой
обращайтесь в Сервисную службу (cм
нагрузке В противном случае возника
перечень мастерских Сервисной службы
ет опасность ожога при прикосновении к
в гарантийном талоне)
поверхности корпуса вытяжки или опас
При телефонном звонке, пожалуйста,
ность повреждения вытяжки
сообщите следующие сведения:
q
Обратите внимание, что большая го
релка мощностью более 5 кВт (Wok)
ENr FD
по мощности cответствует 2 газовым
горелкам
Впишите эти номера в указанных мес
q
Никогда не оставляйте зажженные
тах Номера ENr (номер изделия) и FD
газовые горелки без установленной
(заводской номер) Вы найдете на типо
на них посуды Отрегулируйте пламя
вой табличке с техническими характе
горелки таким образом, чтобы оно не
ристиками внутри Вашей вытяжки после
выходило за дно посуды
того, как снимете жироулавливающий
фильтр
Под действие гарантии изгото-
вителя вытяжки не попадают претен-
зии, связанные с планированием и
прокладкой воздуховода.

Информация для предварительного ознакомления. Официальной информацией изготовителя не является.
Перед первым использованием вытяжки
Указания по технике
Не разрешайте детям играть с при
безопасности
бором
Не стерилизуйте продукты питания
Взрослые и дети не должны пользовать
пламенем непосредственно под вытяж
ся прибором без присмотра,
кой
– если по своему физическому или пси
Опасность воспламенения жироулав
хическому состоянию они не в состо
!
ливающего фильтра
янии этого делать,
Конфорки всегда должны быть за
– или если они не обладают знаниями и
крыты посудой
опытом, необходимыми для правиль
ного и безопасного управления при
Эксплуатация вытяжки над очагом, в
бором
котором сгорает твердое топливо (уголь,
дерево и тд), разрешается только в ог
Перед первым использованием вы
раниченных случаях (см инструкцию по
тяжки ее следует тщательно почистить
монтажу)
Не следует ставить на вытяжку по
Эксплуатируйте вытяжку только с
сторонние предметы
установленными лампами
Неисправные лампы следует сразу
же заменять, чтобы предотвратить пе
регрузку оставшихся ламп
Никогда не эксплуатируйте вытяжку
без установленного жироулавливающе
го фильтра
Перегретые жир и масло легко вос
пламеняются Поэтому всегда тщатель
но контролируйте процесс приготовле
ния блюд с использованием жира или
масла, например, картофеля фри
Если вытяжка повреждена ее, не
следует вводить в эксплуатацию
Подключение вытяжки и ввод ее в
эксплуатацию должен выполнять только
квалифицированный специалист
Из соображений безопасности за
мена поврежденных соединительных
проводов вытяжки должна осущест
вляться изготовителем, или его Сервис
ной службой, или другими квалифици
рованными специалистами
Утилизацию упаковочного материа
ла следует проводить должным образом
(см инструкцию по монтажу)
Эта вытяжка предназначена только
для использования в домашнем хозяйс
тве
4

Информация для предварительного ознакомления. Официальной информацией изготовителя не является.
5
0
3
Управление вытяжкой
Интенсивная ступень:
Самое эффективное удаление ку
q
Максимальная производительность
хонных испарений достигается при
обеспечивается на интенсивной сту
q
включении вытяжки, когда Вы начи
пени P Такая производительность
наете готовить;
обычно требуется только на короткое
q
выключении вытяжки через не
время
сколько минут после окончания при
готовления пищи
Установка требуемой скорости
вентилятора:
q
Нажмите соответствующую кнопку
Вкл/выкл
Ступени
Интен
освещения
мощности
сивная
Освещение:
вентилятора
ступень
q
Освещением можно пользоваться в
любое время, даже когда вентилятор
выключен
Вкл/выкл
Ступени мощности
освещения
вентилятора
Вкл/выкл
Ступени мощности
освещения
вентилятора

Информация для предварительного ознакомления. Официальной информацией изготовителя не является.
Фильтры и их техническое обслуживание
Жироулавливающий фильтр:
Снятие и установка металлических
жироулавливающих фильтров:
Для поглощения частиц жира в кухон-
Предупреждение. Галогенные лампы
ных испарениях, образующихся при
должны быть выключены и должны ос
приготовлении пищи, используется
тыть
металлический жироулавливающий
фильтр.
1. Нажмите на фиксатор на жироулав
ливающем фильтре в направлении
Фильтрующие прокладки сделаны из не
стрелки и опустите фильтр При этом
воспламеняющегося металла
другой рукой придерживайте фильтр
Внимание!
снизу
По мере насыщения фильтра остатка
ми жиров не только увеличивается риск
воспламенения, но это может также ока
зать отрицательное воздействие на ра
боту вытяжки
Важное замечание:
Регулярная чистка металлического жи
рулавливающего фильтра снижает ве
роятность воспламенения, которое
возможно изза нагрева при жарении в
большом количестве жира
Чистка металлического
2. Почистите жироулавливающие
жироулавливающего фильтра:
фильтры
q
При обычном режиме работы (12
3. Снова установите очищенные фильт
часа в день) металлический жиро
ры в вытяжку
улавливающий фильтр следует чис
тить один раз в месяц
q
Фильтр можно мыть в посудомоечной
машине Однако это может привести
к незначительному изменению окрас
ки фильтра
q
Фильтр должен свободно лежать в
посудомоечной машине, он не дол
жен быть зажат
Важное замечание!
Сильно загрязненный металлический
жироулавливающий фильтр не сле
дует мыть в посудомоечной машине
вместе с посудой
q
При ручной мойке фильтра сначала за
мочите его в горячей мыльной воде
Не следует использовать агрессив
ные, содержащие кислоты или щело
чи моющие средства Затем очистите
фильтр щеткой, тщательно прополо
щите его и дайте воде стечь
6

Информация для предварительного ознакомления. Официальной информацией изготовителя не является.
Фильтры и их техническое обслуживание
Угольный фильтр:
Установка и снятие
угольного фильтра:
Предназначен для связывания паху-
Предупреждение. Галогенные лампы
чих веществ кухонных испарений в
должны быть выключены и должны ос
режиме циркуляции воздуха.
тыть
Внимание!
1 Снимите жироулавливающие фильт
По мере насыщения фильтра остатка
ры (см «Снятие и установка метал
ми жиров не только увеличивается риск
лических жироулавливающих фильт
воспламенения, но это может также ока
ров»)
зать отрицательное воздействие на ра
2. Вставьте угольный фильтр
боту вытяжки
Важное замечание:
Регулярная замена угольного фильтра
снижает вероятность воспламенения,
которое возможно изза нагрева при жа
ренье в большом количестве жира
3. Защелкните язычок
4. Снова установите металлические жи
роулавливающие фильтры (см «Сня
тие и установка металлических жиро
улавливающих фильтров»)
Замена угольного фильтра:
q
При обычном режиме работы (1
2 часа в день) угольный фильтр сле
дует менять примерно 2 раза в год
q
Угольный фильтр можно приобрести
в специализированном магазине (см
специальные принадлежности)
q
Используйте только фильтры на-
шей фирмы. Тем самым будет обес
печена оптимальная работа вытяжки
Утилизация старого угольного
фильтра
q
Угольный фильтр не содержит вред
ных веществ Его можно утилизиро
вать как обычный домашний мусор

Информация для предварительного ознакомления. Официальной информацией изготовителя не является.
Чистка и уход
Выключите электропитание вытяж-
Поверхности из нержавеющей
ки, для чего отсоедините вилку от
стали:
сетевой розетки или выключите пре-
q
Используйте мягкое, неабразивное
дохранитель.
средство для чистки нержавеющей
стали
Никогда не пользуйтесь чистящими
средствами, содержащими песок, соду,
q
Чистите только в направлении шли
кислоты или хлориды, а также губками,
фовки
которые могут поцарапать поверхность
q
Мы рекомендуем использовать наше
вытяжки
средство для чистки нержавеющей
q
Для чистки вытяжки пользуйтесь го
стали № 4611 Заказать это средст
рячей мыльной водой или мягким
во Вы можете в нашей Сервисной
средством для чистки оконных сте
службе
кол
Алюминиевые, лакированные и
q
Не соскребайте присохшую грязь, а
пластмассовые поверхности:
размягчайте ее влажной тряпкой
q
Не пользуйтесь сухими тряпками
q
При чистке жироулавливающего
q
Используйте мягкое средство для
фильтра проводите чистку всех до
чистки оконных стекол
ступных деталей корпуса от имеющих
ся отложений жира Это значительно
q
Не используйте агрессивные, кислот
снижает опасность воспламенения и
ные или щелочные чистящие средст
гарантирует наиболее эффективное
ва
функционирование вытяжки
Обратите внимание на условия гаран-
Чистите кнопки управления только
тии в гарантийном талоне.
слабым мыльным раствором и мягкой
влажной тряпкой Не используйте для
чистки кнопок средство для чистки не
ржавеющей стали

Информация для предварительного ознакомления. Официальной информацией изготовителя не является.
Замена ламп
Лампы накаливания:
Галогенные лампы:
1. Выключите вытяжку и отключите ее от
1.
Выключите вытяжку и отключите ее от
сети путем вынимания вилки из сете
электросети, вынув вилку из сетевой
вой розетки или выключения предох
розетки или выключив предохрани
ранителя
тель
2. Снимите жироулавливающие фильт
Включенные галогенные лампы очень
ры (см «Фильтры и их техническое
горячие Даже через некоторое время
обслуживание»)
после их выключения еще имеется риск
ожога
3. Надавите на крышку лампы вниз и
выньте ее
2. Снимите ламповое кольцо с помо
щью отвертки или подобного инстру
мента
3. Замените галогенную лампу (имею
щаяся в продаже галогенная лампа,
4. Замените лампу (имеющаяся в про
12 В, максимум 20 Вт, цоколь G4)
даже лампа накаливания 20 В, 2 Вт,
Внимание! См рисунок, на котором
цоколь Е14)
показан патрон лампы
Берите лампы только чистой тряпкой
4. Вставьте на место ламповое кольцо
5. Снова подключите вилку к сетевой ро
зетке или включите предохранитель
Примечание. Если освещение не рабо
5. Установите на место крышку лампы
тает, проверьте правильность установки
6. Установите на место жироулавливаю
ламп
щие фильтры
7. Снова подключите вилку к сетевой ро
зетке или включите предохранитель
9

Информация для предварительного ознакомления. Официальной информацией изготовителя не является.
Инструкция по монтажу
Важные указания
Старая вытяжка не является совер
Над очагом, в котором сгорает твер
шенно ненужным мусором Она содер
дое топливо, вследствие потенциальной
жит ценные материалы, которые могут
пожарной опасности (например, изза
быть вторично использованы при ути
разлетающихся искр) устанавливать вы
лизации с учетом требований по охране
тяжку разрешается только в том случае,
окружающей среды Перед тем, как от
если очаг имеет закрытое несъемное
правлять на утилизацию старую вытяж
покрытие, и соблюдаются все правила,
ку, приведите ее в неработоспособное
которые действуют в каждой конкретной
состояние
стране Это ограничение не относится к
газовым плитам и панелям газовых кон
Ваша новая вытяжка защищена со
форок
ответствующей упаковкой на время
транспортировки Все материалы, ко
Чем меньше расстояние между вы
торые использованы для этой цели, не
тяжкой и варочной панелью, тем выше
наносят вреда окружающей среде и мо
вероятность конденсации поднимаю
гут быть переработаны для вторичного
щихся паров на вытяжке
использования Пожалуйста, сделайте
свой вклад в охрану окружающей среды,
Дополнительные указания в случае
отправив этот материал для упаковки на
использования газовых варочных
переработку с учетом требований по ох
панелей/газовых плит:
ране окружающей среды
При монтаже газовых приборов со
Самые последние сведения относитель
блюдайте действующие в данной стра
но возможностей по утилизации Вашей
не соответствующие положения (напри
старой вытяжки и упаковки новой вы
мер, в Германии: технические правила
тяжки Вы можете получить в той органи
по установке газовых приборов TRGI)
зации, где Вы приобрели вытяжку, или в
местных административных органах
Во всех случаях следует соблюдать
соответствующие правила и указания по
Вытяжка предназначена для исполь
установке, которые даются изготовите
зования в режиме отвода воздуха или в
лем газовой варочной панели/плиты
режиме циркуляции воздуха
Вытяжку разрешается устанавли
Ширина вытяжки должна соответст
вать таким образом, чтобы только с од
вовать ширине плиты или варочной па
ной ее стороны располагались высокий
нели
шкаф или высокая стена При этом рас
Всегда устанавливайте вытяжку над
стояние до этого шкафа или до этой сте
центральной частью варочной панели
ны должно быть не менее 50 мм
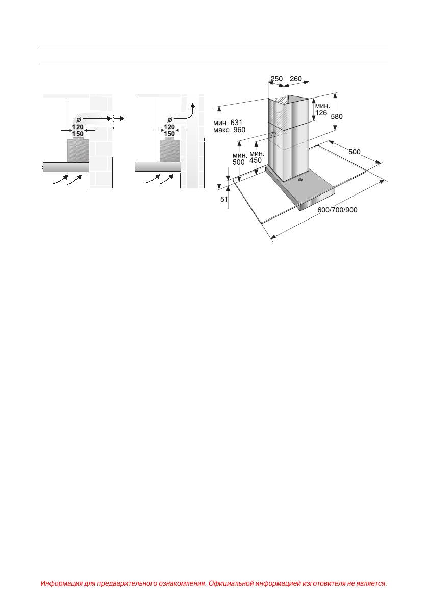
Минимальное расстояние между
Минимальное расстояние между
электрической варочной панелью и ниж
верхним краем решетки для посуды га
ним краем вытяжки: 550 мм, рис 1
зовой варочной панели/плиты и нижним
краем вытяжки: 650 мм, рис 1
10

Информация для предварительного ознакомления. Официальной информацией изготовителя не является.
Перед монтажом
Режим отвода воздуха
Отводимый воздух подается вверх через
По соображениям безопасности требу
вентиляционную шахту или непосредст
ется, чтобы в помещении, где установ
венно через наружную стену за пределы
лено отопительное или нагревательное
помещения
оборудование с открытым огнем, давле
ние воздуха по сравнению с атмосфер
Отводимый воздух нельзя выводить че
ным было понижено не более чем на 4 Па
рез дымоход, который используется для
(0,04 мбар)
других целей, или через шахту, исполь
зуемую для вентиляции помещений, в
Это можно обеспечить, если воздух при
которых также установлены печи или ка
сгорании топлива будет выводиться из
мины
помещения через незакрытые отвер
стия, например, через двери, окна, на
При отводе воздуха следует соблю-
стенные вентиляционные шкафы или с
дать предписания административ-
помощью технических мер, обеспечива
ных органов власти (например, при-
ющих блокировку других устройств при
нятые в данной стране строительные
работе одного устройства и тд
нормы и правила).
При подаче воздуха в недостаточном
Следует получить разрешение соответст
объеме возникает опасность отрав-
вующих административных органов при
ления газообразными продуктами
отводе воздуха через дымоход, который
сгорания, которые всасываются об-
не эксплуатируется
ратно в комнату.
Если вытяжка в режиме отвода воз-
Применение только настенного венти
духа работает одновременно с ото-
ляционного шкафа не гарантирует, что
пительным оборудованием, которое
предельное значение пониженного дав
пользуется вытяжными трубами (на
ления воздуха не будет превышено
пример, отопительные системы, проточ
ные водонагреватели или котлы, которые
Примечание При оценке давления воз
работают на газе, жидком или твердом
духа следует учитывать всю систему
топливе), необходимо обеспечить по-
вентиляции, которая имеется в здании
дачу воздуха в объеме, достаточном
Однако это правило не применяется при
для сгорания топлива
использовании оборудования для при
готовления пищи, например, варочных
панелей и газовых плит
11

Информация для предварительного ознакомления. Официальной информацией изготовителя не является.
Перед монтажом
Если вытяжка используется в режиме
qЕсли трубы имеют различные диа-
циркуляции воздуха (с угольным филь
метры: используйте герметизирую
тром), эксплуатация возможна без ка
щую ленту
кихлибо ограничений
qВ случае эксплуатации вытяжки в ре-
Если отводимый воздух удаляется
жиме отвода воздуха обеспечивай
через наружную стену, следует уста
те достаточное поступление свежего
новить вентиляционный телескопичес
воздуха
кий блок в наружной стене
Подсоединение вытяжной
Оптимальная эффективность вытяж-
трубы Ж 150 мм:
ки обеспечивается при выполнении
q
Подсоедините
следующих условий:
вытяжную трубу
q Использование коротких и гладких
непосредственно к
вытяжных труб без изгибов
воздушному пат
q Использование минимального коли
рубку вытяжки При
чества колен
использовании алю
миниевой трубы зону
q Использование труб с насколько воз
подсоединения пред
можно большими внутренними диа
варительно следует
метрами, а также использование ко
зачистить
лен труб с большим радиусом
Использование длинных, неров
-
Подсоединение вытяжной
ных вытяжных труб, большого ко-
трубы Ж 120 мм:
личества колен или труб с малым
внутренним диаметром ведет к
q Вставьте переход
снижению эффективности работы
ник для сужения
вытяжки и, одновременно, к повы-
канала в воздушный
шению уровня шумов.
патрубок
q Вытяжную трубу
Под действие гарантии изгото-
присоедините к пе
вителя вытяжки не попадают пре-
реходнику
тензии, связанные с планировани-
ем и прокладкой воздуховода.
q Круглые трубы:
Мы рекомендуем внутренний диа
метр 150 мм (минимальный внутрен
ний диаметр 120 мм)
q Трубы прямоугольного сечения
должны иметь площадь внутренне-
го сечения, равную площади внут
реннего сечения соответствующих
круглых труб
Они не должны иметь резких изги
-
бов.
В случае труб с внутренним диамет
ром 120 мм площадь внутреннего се
2
чения составляет примерно 11 см
В случае труб с внутренним диамет
ром 150 мм площадь внутреннего се
2
чения составляет примерно 1 см
12

Информация для предварительного ознакомления. Официальной информацией изготовителя не является.
Перед монтажом
Режим циркуляции воздуха
q Применяется, если нет возможнос
ти использовать режим отвода воз
духа При этом используется уголь
ный фильтр
Полный комплект для монтажа мож
но приобрести в специализированном
магазине Соответствующие номера
принадлежностей можно найти в конце
инструкции
Подготовка стены
Вес в кг:
q Стена должна быть ровной и верти
Режим
Режим
кальной
отвода
циркуляции
q
Стена должна обладать достаточной
воздуха
воздуха
несущей способностью
q
Прилагаемые к вытяжке винты и дюбе
60 см 16,5 1,0
ля подходят для капитальной каменной
0 см 1,2 1,
стены Для стен другой конструкции
(например, гипсокартон, пористый бе
90 см 1, 20,2
тон и др) используйте соответствую
щие крепежные средства
Мы сохраняем за собой право на изменение
q Для надежного крепления используй
конструкции в связи с техническими усовер
те дюбели
шенствованиями
1

Информация для предварительного ознакомления. Официальной информацией изготовителя не является.
Электрическое подключение
Вытяжку следует подключать только к
Электрические характеристики:
заземленной розетке, установленной в
Их можно найти на типовой табличке с
соответствии с действующими прави
техническими характеристиками внутри
лами
вытяжки, после снятия рамки фильтра
По возможности розетку с контактом
В случае ремонта всегда отсоеди
заземления следует располагать непо
няйте вытяжку от электрической сети
средственно за обшивкой вытяжной
трубы
Длина соединительного кабеля 1,30 м.
q
Розетку с контактом заземления сле
Данная вытяжка соответствует требова
дует подключать через отдельную
ниям правил Европейского союза по по
электрическую цепь
давлению радиопомех
q
Если после монтажа вытяжки розетка
с контактом заземления недоступна,
следует установить размыкающее
устройство, как при фиксированном
подключении вытяжки к сети
В случае необходимости
фиксированного подключения
вытяжки к сети:
Вытяжка должна подключаться к сети
электропитания только квалифициро
ванным электриком
Со стороны сети электропитания долж
но быть установлено размыкающее ус
тройство В качестве размыкающего
устройства следует использовать пере
ключатель с минимальным расстоянием
между контактами мм К числу таких
переключателей относятся автомати
ческие выключатели и контакторы
Если соединительный кабель вы
тяжки поврежден, для предотвращения
серьезных травм пользователя его за
мену должны осуществлять производи
тель вытяжки, служба сервиса или ква
лифицированный специалист
14

Информация для предварительного ознакомления. Официальной информацией изготовителя не является.
Подготовка к монтажу
Данная вытяжка предназначена для
5. Привинтите скобу крепления обшив
монтажа на стене кухни
ки вытяжной трубы
1. Снимите металлические жироулав
6. Завинтите 2 средних винта так, чтобы
ливающие фильтры (см инструкцию
они выступали из стены примерно на
по эксплуатации)
5 мм
2. Начертите линию на стене от потол
ка до нижнего края вытяжки в центре
того места, в котором предполагает
ся установить вытяжку
3. Используйте шаблон для маркиров
ки на стене точек, в которых будут ус
тановлены шурупы
Обеспечьте минимальное расстоя
ние между варочной панелью и вытяж
кой: 550 мм – для электрической ва
рочной панели и 650 мм – для газовой
варочной панели Нижний край шаблона
располагается на уровне нижнего края
вытяжки
4. Просверлите отверстия Ж мм для
крепления вытяжки и 2 отверстия
Ж мм для скобы крепления обшивки
вытяжной трубы Вставьте дюбели в
отверстия таким образом, чтобы они
были заподлицо со стеной
15

Информация для предварительного ознакомления. Официальной информацией изготовителя не является.
Монтаж
7. Снимите с вытяжки защитную пленку
10. Подложите прилагаемый к вытяжке
Подвесьте вытяжку, выровняйте и
защитный картон для стеклянного
привинтите ее
экрана
11. Положите стеклянный экран и уда
лите защитный картон
12. Привинтите стеклянный экран
8. Установите соединение труб
9. Подсоедините вытяжку к электросети
16

Информация для предварительного ознакомления. Официальной информацией изготовителя не является.
Монтаж обшивки вытяжной трубы
1. Разделите секции обшивки вытяжной
4. Установите секции обшивки вытяж
трубы, для этого снимите клейкую
ной трубы на вытяжку, сдвиньте внут
ленту
реннюю секцию обшивки вверх и на
деньте с левой и правой стороны на
2. Снимите защитную пленку с обеих
крепежную скобу
секций обшивки вытяжной трубы
Старайтесь избежать повреж-
дения чувствительных поверхнос-
тей.
Предостережение. Внутренние сто
роны обшивки вытяжной трубы могут
иметь острые края – опасность получе
ния травмы
Мы рекомендуем при монтаже надевать
защитные перчатки
3. Вставьте одну секцию обшивки вы
тяжной трубы в другую
При этом старайтесь их не поца
рапать, для чего, например, в качест
ве защиты установите монтажные
шаблоны на края наружной секции
обшивки
Режим отвода воздуха:
прорези
внутренней секции обшивки должны
5. Двумя винтами привинтите внутрен
быть внизу
нюю секцию обшивки вытяжной тру
Режим циркуляции воздуха: проре
бы с боковых сторон к крепежной ско
зи внутренней секции обшивки долж
бе
ны быть вверху
6. Снова установите жироулавливаю
щий фильтр (см инструкцию по экс
плуатации)
1

Информация для предварительного ознакомления. Официальной информацией изготовителя не является.
1

Информация для предварительного ознакомления. Официальной информацией изготовителя не является.
19







