Bosch DKE 665M: инструкция
Характеристики, спецификации
Инструкция к Кухонной Вытяжке Bosch DKE 665M

B
RUS
Инструкция по эксплуатации
RUS
Инструкция по эксплуатации
Напечатано в России / октябрь 2005 / 500 / GA2065
DKE 66..
DKE 76..
DKE 96..
b
901535

Инструкция по эксплуатации
Описание вытяжки Режимы работы
Это можно обеспечить, если воздух при сго
Обшивка
рании топлива будет выводиться из помеще
вытяжной трубы
ния через незакрытые отверстия, например,
через двери, окна, настенные вентиляцион
ные шкафы или с помощью технических мер,
обеспечивающих блокировку других уст
ройств при работе одного устройства и т.д.
При подаче воздуха в недостаточном
объеме возникает опасность отравления
газообразными продуктами сгорания,
которые всасываются обратно в комнату.
Применение только настенного вентиляци
онного шкафа не гарантирует, что предель
ное значение пониженного давления возду
Решетка
ха не будет превышено.
фильтра
Примечание. При оценке давления воздуха
следует учитывать всю систему вентиляции,
Освещение
которая имеется в здании. Однако это пра
вило не применяется при использовании
оборудования для приготовления пищи, на
Режимы работы
пример, варочных панелей и газовых плит.
Если вытяжка используется в режиме цир
куляции воздуха с угольным фильтром, экс
Режим отвода воздуха:
плуатация возможна без какихлибо ограни
Вентилятор вытяжки всасывает кухонные
чений.
испарения и удаляет их за пределы по
мещения через жиропоглощающий
Режим циркуляции воздуха:
фильтр.
Этот режим требует установки угольного
Жиропоглощающий фильтр поглощает
фильтра (см. раздел «Фильтры и их тех
частицы жира, которые могут содержать
ническое обслуживание»).
ся в кухонных испарениях.
Кухня в значительной степени освобож
Полный комплект для установки и
дается от жиров и запахов.
фильтры для замены можно приобрести
в специализированных торговых точ
Если вытяжка в режиме отвода воздуха
ках. Соответствующие номера принад
работает одновременно с отопительным
лежностей можно найти в конце настоя
оборудованием, которое пользуется вы
щей инструкции по эксплуатации.
тяжными трубами (например, отопитель
Вентилятор вытяжки всасывает кухонные
ные системы, проточные водонагреватели
испарения, которые очищаются в жиро
или котлы, которые работают на газе, жид
поглощающем фильтре и угольном филь
ком или твердом топливе), необходимо
тре. После этого очищенный воздух воз
обеспечить подачу воздуха в объеме, до
вращается на кухню.
статочном для сгорания топлива.
Жиропоглощающий фильтр поглощает
По соображениям безопасности требуется,
частицы жира, которые могут содержать
чтобы в помещении, где установлено ото
ся в кухонных испарениях.
пительное или нагревательное оборудова
ние с открытым огнем, давление воздуха по
Угольный фильтр удаляет имеющиеся
сравнению с атмосферным было понижено
запахи.
не более чем на 4 Па (0,04 мбар).
Без установленного угольного фильтра
пахучие вещества кухонных испарений не
связываются.
Информация для предварительного ознакомления. Официальной информацией изготовителя не является.
1

Перед первым использованием вытяжки
Важные указания:
Перегретые жир и масло легко воспла
Эта инструкция по эксплуатации относит
меняются. Поэтому всегда следите за при
ся к нескольким моделям вытяжки. Воз
готовлением пищи с жиром или маслом, на
можно, что описанные в ней отдельные
пример, в случае приготовления картофеля
детали оснащения отсутствуют в Вашей
фри.
вытяжке.
Эта вытяжка соответствует действующим
Не стерилизуйте продукты питания пла
правилам техники безопасности.
менем непосредственно под вытяжкой.
Ремонт вытяжки должен выполняться
Опасность воспламенения жиропогло
!
только квалифицированным персоналом.
щающего фильтра.
Неправильно выполненный ремонт
Эксплуатация вытяжки над очагом, в ко
вытяжки может привести к возникно
тором сгорает твердое топливо (уголь, дере
вению серьезной опасности для
во и т.д.), разрешается только в ограничен
пользователя.
ных случаях (см. инструкцию по монтажу).
Перед первым использованием новой
вытяжки внимательно прочтите инструк
Газовые варочные панели/
цию по эксплуатации. Она содержит важ
газовые плиты
ную информацию по Вашей безопаснос
Всегда правильно эксплуатируйте газо
ти, а также по эксплуатации вытяжки и
вые конфорки.
уходу за ней.
Важное замечание!
Сохраните инструкцию по эксплуатации
Пламя газовых конфорок всегда должно
и монтажу для возможной передачи пос
быть закрыто посудой.
ледующему владельцу.
Сильный нагрев пламенем газовых кон
!
форок может повредить вытяжку.
Если вытяжка повреждена, ее не следу
ет вводить в эксплуатацию.
Подключение и ввод в эксплуатацию вы
Неисправности
тяжки должен выполнять только квалифици
рованный специалист.
Если у Вас имеются какиелибо вопросы,
Из соображений безопасности замена
или если появилась неисправность, обра
поврежденных соединительных проводов
щайтесь в Сервисную службу (cм. перечень
вытяжки должна осуществляться изготови
мастерских Сервисной службы).
телем, или его Сервисной службой, или дру
При телефонном звонке, пожалуйста, сооб
гими квалифицированными специалистами.
щите следующие сведения:
Утилизацию упаковочного материала
ENr. FD
следует проводить должным образом (см.
инструкцию по монтажу).
Впишите эти номера в вышеуказанных мес
тах. Номера ENr. (номер изделия) и FD (за
Эксплуатируйте вытяжку только с уста
водской номер) Вы найдете на табличке с
новленными лампами.
техническими характеристиками внутри Ва
шей вытяжки после того, как снимете решет
Неисправные лампы следует сразу же
ку фильтра.
заменять, чтобы предотвратить перегрузку
оставшихся ламп.
Никогда не эксплуатируйте вытяжку без
установленного жиропоглощающего филь
тра.
2
Информация для предварительного ознакомления. Официальной информацией изготовителя не является.

Управление вытяжкой
Освещение:
Самым эффективным способом удале
ния кухонных испарений, образующихся при
Для включения или выключения освеще
приготовлении пищи, является следующий
ния нажмите клавишу <.
способ:
Освещением можно пользоваться в лю
Включите вытяжку сразу же, как только
бое время, даже когда вентилятор выклю
Вы начинаете готовить.
чен.
Выключите вытяжку через несколько
минут после того, как Вы закончите гото
вить.
Фильтры и их техническое
Выключение
Включение/выключение
обслуживание
вентилятора
освещения
Жиропоглощающий фильтр:
Для поглощения частиц жира в кухонных
испарениях, образующихся при приго
товлении пищи, используется металли
ческий жиропоглощающий фильтр.
Фильтрующие прокладки сделаны из невос
пламеняющегося металла.
Внимание!
Уменьшение
Включение и
По мере насыщения фильтра остатками жи
скорости
увеличение скорости
ров не только увеличивается риск воспламе
вентилятора
вентилятора
нения, но это может также оказать отрица
тельное воздействие на работу вытяжки.
Индикатор
Важное замечание.
для настройки вентилятора
Регулярная чистка металлического жиропог
лощающего фильтра снижает вероятность
Включение вентилятора:
воспламенения, которое возможно изза
Нажмите клавишу +.
нагрева при жарении в большом количестве
жира.
Установка требуемой скорости
вентилятора:
Чистка металлического
Нажмите клавишу +.
жиропоглощающего фильтра:
Скорость вентилятора увеличивается на
При обычном режиме работы (12 часа в
одну ступень.
день) металлический жиропоглощающий
Нажмите клавишу –.
фильтр следует чистить через 810 не
Скорость вентилятора уменьшается на
дель.
одну ступень.
Фильтр можно мыть в посудомоечной
Выключение вентилятора:
машине. Однако это может привести к не
значительному изменению окраски
Нажмите клавишу 0.
фильтра.
или:
Фильтр должен свободно лежать в посу
Нажимайте клавишу – до тех пор, пока
домоечной машине, он не должен быть
вентилятор не выключится.
зажат.
Интенсивная ступень:
Важное замечание.
Сильно загрязненный металлический жи
Максимальная производительность обеспе
ропоглощающий фильтр не следует мыть
чивается на интенсивной ступени. Такая про
в посудомоечной машине вместе с посу
изводительность обычно требуется только
дой.
на короткое время.
Нажимайте клавишу + до тех пор, пока на
При ручной мойке фильтра сначала замо
индикаторе не появится индикация P.
чите его в горячей мыльной воде. Затем
очистите фильтр щеткой, тщательно про
Если интенсивная ступень не отключает
полощите его и дайте воде стечь.
ся вручную, вентилятор через 10 минут ав
томатически переключится на уровень 2.
Информация для предварительного ознакомления. Официальной информацией изготовителя не является.
3

Фильтры и их техническое обслуживание
Снятие и установка металлического
3. Защелкните спереди фиксатор.
жиропоглощающего фильтра:
4. Установите металлический жиропогло
Предупреждение. Галогенные лампы дол
щающий фильтр (см. раздел «Снятие и
жны быть выключены и должны остыть.
установка металлического жиропоглоща
ющего фильтра»).
1. Поверните оба фиксатора на жиропогло
щающем фильтре и выньте фильтр.
Снятие фильтра:
Предупреждение. Галогенные лампы дол
жны быть выключены и должны остыть.
1. Снимите жиропоглощающий фильтр.
2. Нажмите на фиксатор спереди и сними
те угольный фильтр, сдвинув его вниз.
2. Проведите чистку фильтра.
3. Снова установите очищенный фильтр на
место в вытяжку.
Угольный фильтр:
3. Установите жиропоглощающий фильтр.
Предназначен для устранения запахов в
режиме циркуляции воздуха.
Замена угольного фильтра:
При обычном режиме работы (12 часа в
Установка фильтра:
день) угольный фильтр следует менять
Предупреждение. Галогенные лампы дол
примерно 1 раз в год.
жны быть выключены и должны остыть.
Угольный фильтр можно приобрести в
1. Снимите жиропоглощающий фильтр (см.
специализированном магазине (см. спе
раздел «Снятие и установка металличес
циальные принадлежности).
кого жиропоглощающего фильтра»).
Используйте только фильтры нашей
2. Вставьте угольный фильтр.
фирмы. Тем самым будет обеспечена
оптимальная работа вытяжки.
Утилизация старого угольного фильтра:
Угольный фильтр не содержит вредных
веществ. Его можно утилизировать как
обычный домашний мусор.
4
Информация для предварительного ознакомления. Официальной информацией изготовителя не является.

Чистка и уход
Замена ламп
Выключите электропитание вытяжки,
1. Выключите вытяжку и отключите ее от
для чего выньте вилку из сетевой розет
сети путем отсоединения вилки от сете
ки или выключите предохранитель.
вой розетки или выключения предохра
нителя.
При чистке жиропоглощающего фильтра
проводите чистку всех доступных дета
Включенные галогенные лампочки очень
лей корпуса от имеющихся отложений
горячие. Даже через некоторое время пос
жира. Это значительно снижает опас
ле их выключения еще имеется риск ожога.
ность воспламенения и гарантирует наи
более эффективное функционирование
2. Снимите ламповое кольцо с помощью
вытяжки.
отвертки или подобного инструмента.
Для чистки обшивки вытяжки пользуйтесь
горячей мыльной водой или мягким сред
ством для чистки оконных стекол.
Не соскребайте присохшую грязь, а раз
мягчайте ее влажной тряпкой.
Никогда не пользуйтесь абразивными
чистящими средствами или губками, ко
торые могут поцарапать поверхность.
Примечание. Никогда не протирайте
спиртом пластмассовые поверхности,
3. Замените галогенную лампу (имеющая
так как на них могут появиться матовые
ся в продаже галогенная лампа, 12 В, мак
пятна.
симум 20 Вт, цоколь G4).
Предостережение. Достаточно часто
Внимание! См. рис., на котором показан
проветривайте кухню. Никогда не остав
патрон лампы.
ляйте открытое пламя!
Берите лампы только чистой тряпкой.
Чистите клавиши управления только сла
бым мыльным раствором и мягкой влажной
тряпкой. Не используйте для чистки клавиш
управления средство для чистки нержавею
щей стали.
Поверхности из нержавеющей стали:
Используйте мягкое, неабразивное сред
ство для чистки нержавеющей стали.
Чистите только в направлении шлифовки.
Не используйте для чистки поверхнос
4. Вставьте на место ламповое кольцо.
тей из нержавеющей стали средства, содер
5. Подключите опять вилку к сетевой розет
жащие песок, соду, кислоты, хлориды и губ
ке или включите предохранитель.
ки, которые могут поцарапать эти поверхно
сти!
Примечание. Если освещение не работает,
проверьте правильность установки ламп.
Алюминиевые, лакированные и
пластмассовые поверхности:
Используйте мягкую неворсистую ткань
для протирки стекол или микроволокни
стую ткань.
Не пользуйтесь сухими тряпками.
Используйте мягкое средство для чист
ки оконных стекол.
Не используйте агрессивные, кислотные
или щелочные чистящие средства.
Не используйте абразивные средства для
чистки.
Информация для предварительного ознакомления. Официальной информацией изготовителя не является.
5

Инструкция по монтажу
Важные указания
Старая вытяжка не является совершен
Установка вытяжки над газовой вароч
но ненужным мусором. Она содержит цен
ной панелью или плитой на минимальном
ные материалы, которые могут быть вторич
расстоянии 650 мм – рис. 1 – разрешается
но использованы при утилизации с учетом
только тогда, когда не превышаются следу
требований по охране окружающей среды.
ющие значения номинальной тепловой на
Перед тем, как отправлять на утилизацию
грузки (Hs):
старую вытяжку, приведите ее в неработос
Газовые плиты
пособное состояние.
Тепловая нагрузка:
одной конфорки макс. 3,0 кВт
Ваша новая вытяжка защищена соответ
всех конфорок макс. 8,3 кВт
ствующей упаковкой на время транспорти
духовки макс. 3,9 кВт
ровки. Все материалы, которые использова
ны для этой цели, не наносят вреда окружа
Панели газовых конфорок
ющей среде и могут быть переработаны для
Тепловая нагрузка:
вторичного использования. Пожалуйста,
одной конфорки макс. 3,9 кВт
сделайте свой вклад в охрану окружающей
всех конфорок макс. 11,3 кВт
среды, отправив этот материал для упаков
Газовые стеклокерамические
ки на переработку с учетом требований по
варочные панели
охране окружающей среды.
Информация по номинальной тепловой
Самые последние сведения относительно
нагрузке не относится к закрытым газо
возможностей по утилизации Вашей старой
вым стеклокерамическим варочным па
вытяжки и упаковки новой вытяжки Вы мо
нелям. Соблюдайте указания, которые
жете получить в той организации, где Вы
дает изготовитель варочных панелей.
приобрели вытяжку, или в местных админи
Плиты на твердом топливе
стративных органах.
Максимальная номинальная тепловая
нагрузка и максимальное расстояние до
Вытяжка предназначена для использо
плиты имеют такое же значение, как и в
вания в режиме отвода воздуха или в режи
случае газовых плит.
ме циркуляции воздуха.
Над очагом, в котором сгорает твердое
Всегда устанавливайте вытяжку над цен
топливо, вследствие потенциальной пожар
тральной частью варочной панели.
ной опасности (например, изза разлетаю
щихся искр) устанавливать вытяжку разре
Минимальное расстояние между элект
шается только в том случае, если очаг име
рической варочной панелью и нижним кра
ет закрытое несъемное покрытие, и со
ем вытяжки: 550 мм, рис. 1.
блюдаются все правила, которые действу
Дополнительные указания в случае
ют в каждой конкретной стране. Это ограни
использования газовых плит:
чение не относится к газовым плитам и па
нелям газовых конфорок.
При монтаже газовых плит соблюдайте
действующие в данной стране соответству
Чем меньше расстояние между вытяж
ющие положения (например, в Германии:
кой и варочной панелью, тем выше вероят
технические правила по установке газовых
ность конденсации поднимающихся паров
приборов TRGI).
на вытяжке.
Во всех случаях следует соблюдать со
ответствующие правила и указания по уста
новке, которые даются изготовителем газо
вой плиты.
Вытяжку разрешается устанавливать та
ким образом, чтобы только с одной ее сто
роны располагались высокий шкаф или вы
сокая стена. При этом расстояние до этого
шкафа или до этой стены должно быть не
менее 50 мм.
6
Информация для предварительного ознакомления. Официальной информацией изготовителя не является.

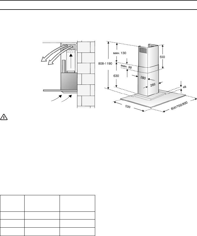
Перед монтажом
Режим отвода воздуха
Отводимый воздух подается вверх через
Это можно обеспечить, если воздух при сго
вентиляционную шахту или непосредствен
рании топлива будет выводиться из помеще
но через наружную стену за пределы поме
ния через незакрытые отверстия, например,
щения.
через двери, окна, настенные вентиляцион
ные шкафы или с помощью технических мер,
Отводимый воздух нельзя выводить через
обеспечивающих блокировку других уст
дымоход, который используется для других
ройств при работе одного устройства и т.д.
целей, или через шахту, используемую для
вентиляции помещений, в которых также
При подаче воздуха в недостаточном
установлены печи или камины.
объеме возникает опасность отравления
газообразными продуктами сгорания,
При отводе воздуха следует соблюдать
которые всасываются обратно в комнату.
предписания административных орга
нов власти (например, принятые в дан
Применение только настенного вентиляци
ной стране строительные нормы и пра
онного шкафа не гарантирует, что предель
вила).
ное значение пониженного давления возду
ха не будет превышено.
Следует получить разрешение соответству
ющих административных органов при отво
Примечание. При оценке давления воздуха
де воздуха через дымоход, который не экс
следует учитывать всю систему вентиляции,
плуатируется.
которая имеется в здании. Однако это пра
вило не применяется при использовании
Если вытяжка в режиме отвода воздуха
оборудования для приготовления пищи, на
работает одновременно с отопительным
пример, варочных панелей и газовых плит.
оборудованием, которое пользуется вы
тяжными трубами (например, отопитель
Если вытяжка используется в режиме цир
ные системы, проточные водонагреватели
куляции воздуха с угольным фильтром, экс
или котлы, которые работают на газе, жид
плуатация возможна без какихлибо ограни
ком или твердом топливе), необходимо
чений.
обеспечить подачу воздуха в объеме,
Если отводимый воздух удаляется через
достаточном для сгорания топлива.
наружную стену, следует установить вен
По соображениям безопасности требуется,
тиляционный телескопический блок в наруж
чтобы в помещении, где установлено отопи
ной стене.
тельное или нагревательное оборудование
с открытым огнем, давление воздуха по
сравнению с атмосферным было понижено
не более чем на 4 Па (0,04 мбар).
Информация для предварительного ознакомления. Официальной информацией изготовителя не является.
7

Перед монтажом
Оптимальная эффективность вытяжки
Подсоединение к вытяжной трубе
обеспечивается при выполнении
диаметром 150 мм:
следующих условий:
Установите вытяжную трубу непосред
Использование коротких и гладких вы
ственно в выходном отверстии вытяжки.
тяжных труб без изгибов.
Использование минимального количе
Подсоединение к вытяжной трубе
ства колен.
диаметром 120 мм:
Использование труб с насколько возмож
Вставьте переходник для сужения кана
но большими внутренними диаметрами,
ла в выходное отверстие вытяжки и при
а также использование колен труб с боль
соедините к нему вытяжную трубу.
шим радиусом.
Использование длинных, неровных
вытяжных труб, большого количества
колен или труб с малым внутренним
диаметром ведет к снижению эффек
тивности работы вытяжки и, одновре
менно, к повышению уровня шумов.
Круглые трубы:
Мы рекомендуем внутренний диаметр
150 мм (минимальный внутренний диа
метр 120 мм).
Трубы прямоугольного сечения долж
ны иметь площадь внутреннего сече
ния, равную площади внутреннего сече
ния соответствующих круглых труб.
Они не должны иметь резких изгибов.
В случае труб с внутренним диаметром
120 мм площадь внутреннего сечения со
ставляет примерно 113 см
2
.
В случае труб с внутренним диаметром
150 мм площадь внутреннего сечения со
ставляет примерно 177 см
2
.
Если трубы имеют различные диа
метры: используйте герметизирующую
ленту.
В случае эксплуатации вытяжки в режи
ме отвода воздуха обеспечивайте дос
таточное поступление свежего воздуха.
8
Информация для предварительного ознакомления. Официальной информацией изготовителя не является.

Перед монтажом
Режим циркуляции воздуха
Применяется, если нет возможности ис
пользовать режим отвода воздуха. При
этом используется угольный фильтр.
Полный комплект для монтажа можно
приобрести в специализированном мага
зине. Соответствующие номера принад
лежностей можно найти в инструкции по эк
сплуатации.
Подготовка стены
Стена должна быть ровной и вертикаль
ной.
Для прочного крепления используйте дю
бели.
Вес в кг:
Режим Режим
отвода циркуляции
воздуха воздуха
60 см 22,0 27,4
70 см 23,0 28,4
90 см 25,1 30,5
Мы сохраняем за собой право на изменение кон
струкции в связи с техническими усовершенство
ваниями.
Информация для предварительного ознакомления. Официальной информацией изготовителя не является.
9

Электрическое подключение
Вытяжку следует подключать только к за
земленной розетке, установленной в соот
ветствии с действующими правилами.
По возможности розетку с контактом зазем
ления следует располагать непосредствен
но за обшивкой вытяжной трубы.
Электрические характеристики:
Их можно найти на табличке с техническими
характеристиками внутри вытяжки, после
снятия рамки фильтра.
В случае ремонта всегда отсоединяй
те вытяжку от электрической сети.
Длина соединительного кабеля: 1,30 м.
В случае необходимости фиксирован
ного подключения вытяжки к сети:
Вытяжка должна подключаться к сети элек
тропитания только квалифицированным
электриком.
Со стороны сети электропитания должно
быть установлено размыкающее устрой
ство. В качестве размыкающего устройства
следует использовать переключатель с ми
нимальным расстоянием между контактами
3 мм. К числу таких переключателей относят
ся автоматические выключатели или контак
торы.
Данная вытяжка соответствует требованиям
правил Европейского Сообщества по подав
лению радиопомех.
10
Информация для предварительного ознакомления. Официальной информацией изготовителя не является.

Монтаж
Данная вытяжка предназначена для монта
Примечание. Если предполагается уста
жа на стене кухни.
навливать какиелибо специальные принад
лежности, это следует учесть.
1. Снимите жиропоглощающий фильтр (см.
инструкцию по эксплуатации).
5. Привинтите один уголок вверху и два
внизу.
2. Начертите линию на стене от потолка до
нижнего края вытяжки в центре того мес
та, в котором предполагается установить
вытяжку.
3. Используйте шаблон для маркировки на
стене точек, в которых будут установле
ны шурупы. Чтобы облегчить подвешива
ние вытяжки, начертите контур той зоны,
где будет крепиться вытяжка.
Обеспечьте минимальное расстояние
между варочной панелью и вытяжкой
550 мм – для электрической варочной па
нели и 650 мм – для газовой варочной па
нели. Нижний край шаблона располага
ется на уровне нижнего края вытяжки.
4. Просверлите 4 отверстия ∅ 8 мм для вы
тяжки и 2 отверстия ∅ 8 мм для обшивки.
Вставьте дюбели в отверстия таким об
разом, чтобы они были заподлицо со сте
ной.
6. Подвесьте вытяжку. Выровняйте ее по
высоте и по горизонтали с помощью ре
гулировочных винтов.
мин. 550 до электроплиты
мин. 650 до газовой плиты
Стеклянный экран не должен касаться
стены.
Информация для предварительного ознакомления. Официальной информацией изготовителя не является.
11

Монтаж
7. Ввинтите нижний шуруп (с шестигран
13. Вставьте полную вытяжную трубу под уг
ной головкой).
лом в стеклянный экран и поверните ее
назад.
Если при завинчивании шурупа ока
Внимание! Отверстия на вытяжной тру
зывать давление на стеклянный экран,
бе должны находиться точно над выклю
стекло может разбиться.
чателем.
8. Наклейте защитную пленку на отверстия
для двух нижних крепежных шурупов в
защитной решетке.
14. Осторожно выдвиньте верхнюю секцию
обшивки вытяжной трубы вверх и с бо
ков привинтите двумя винтами к уголку.
9. Подсоедините трубу для вывода воздуха.
10.Подключите вытяжку к электропитанию.
11.Снимите защитную пленку с обеих сек
ций обшивки вытяжной трубы.
Старайтесь избежать повреждений
чувствительных поверхностей.
12. Задвиньте верхнюю секцию обшивки вы
тяжной трубы (пазы внизу) в нижнюю
секцию.
При вставлении секций одну в дру
гую старайтесь их не поцарапать, для
чего, например, установите в качестве
защиты монтажные шаблоны по кра
ям нижней секции обшивки вытяжной
трубы.
15. Установите на место жиропоглощающий
фильтр (см. инструкцию по эксплуата
ции).
12
Информация для предварительного ознакомления. Официальной информацией изготовителя не является.

Рис. 1
ГАЗОВАЯ
ЭЛЕКТРО
ПЛИТА
ПЛИТА
не менее 650 мм
не менее 550 мм
Информация для предварительного ознакомления. Официальной информацией изготовителя не является.
13

DHZ 5185
360732
Изготовитель не исключает возможности распространения данной инструкции также на новые модели
продукции, которые будут выведены на рынок после изготовления тиража этой инструкции по эксплу!
атации при условии, что новые модели продукции будут идентичны актуальным с точки зрения особен!
ностей их эксплуатации.
Право на внесение изменений изготовитель оставляет за собой.
14
Информация для предварительного ознакомления. Официальной информацией изготовителя не является.









