Siemens LC 89950: инструкция
Характеристики, спецификации
Инструкция к Вытяжке Siemens LC 89950
Оглавление
- Описание вытяжки Режимы работы
- Перед первым использованием вытяжки
- Управление вытяжкой
- Фильтры и их техническое обслуживание
- Фильтры и их техническое обслуживание
- Чистка и уход Замена ламп
- Настройка индикатора Неисправности насыщения
- Важные указания
- Перед монтажом
- Перед монтажом
- Перед монтажом
- Переход от Электрическое подключение режима отвода воздуха к режиму циркуляции воздуха
- Монтаж
- Монтаж

Инструкция по эксплуатации
Вытяжка
Напечатано в России / июнь 2006 / 100 / GA2341
LC 89950
901782

Инструкция по эксплуатации
Описание вытяжки Режимы работы
Это можно обеспечить, если воздух при сго
Обшивка
рании топлива будет выводиться из помеще
вытяжной трубы
ния через незакрытые отверстия, например,
через двери, окна, настенные вентиляцион
ные шкафы или с помощью технических мер,
Выключатель
Выключатель
обеспечивающих блокировку других уст
освещения
вентилятора
ройств при работе одного устройства и т.д.
При подаче воздуха в недостаточном
объеме возникает опасность отравления
газообразными продуктами сгорания,
которые всасываются обратно в комнату.
Применение только настенного вентиляци
онного шкафа не гарантирует, что предель
Освещение Решетка фильтра
ное значение пониженного давления возду
ха не будет превышено.
Примечание. При оценке давления воздуха
следует учитывать всю систему вентиляции,
которая имеется в здании. Однако это пра
Режимы работы
вило не применяется при использовании
оборудования для приготовления пищи, на
пример, варочных панелей и газовых плит.
Режим отвода воздуха:
Если вытяжка используется в режиме цир
Вентилятор вытяжки всасывает кухонные
куляции воздуха с угольным фильтром, экс
испарения и удаляет их за пределы по
плуатация возможна без какихлибо ограни
мещения через жиропоглощающий
чений.
фильтр.
Жиропоглощающий фильтр поглощает
Режим циркуляции воздуха:
частицы жира, которые могут содержать
Этот режим требует установки угольного
ся в кухонных испарениях.
фильтра (см. раздел «Фильтры и их тех
Кухня в значительной степени освобож
ническое обслуживание»).
дается от жиров и запахов.
Полный комплект для установки и
Если вытяжка в режиме отвода воздуха
фильтры для замены можно приобрести
работает одновременно с отопительным
в специализированных торговых точ
оборудованием, которое пользуется вы
ках. Соответствующие номера принад
тяжными трубами (например, отопитель
лежностей можно найти в конце настоя
ные системы, проточные водонагреватели
щей инструкции по эксплуатации.
или котлы, которые работают на газе, жид
Вентилятор вытяжки всасывает кухонные
ком или твердом топливе), необходимо
испарения, которые очищаются в жиро
обеспечить подачу воздуха в объеме,
поглощающем фильтре и угольном филь
достаточном для сгорания топлива.
тре. После этого очищенный воздух воз
По соображениям безопасности требуется,
вращается на кухню.
чтобы в помещении, где установлено отопи
Жиропоглощающий фильтр поглощает
тельное или нагревательное оборудование
частицы жира, которые могут содержать
с открытым огнем, давление воздуха по
ся в кухонных испарениях.
сравнению с атмосферным было понижено
не более чем на 4 Па (0,04 мбар).
Угольный фильтр удаляет имеющиеся
запахи.
Без установленного угольного фильтра
пахучие вещества кухонных испарений не
связываются.
Информация для предварительного ознакомления. Официальной информацией изготовителя не является.
1

Перед первым использованием вытяжки
Важные указания:
Перед первым использованием новой
вытяжки внимательно прочтите инструк
Эта инструкция по эксплуатации относит
цию по эксплуатации. Она содержит важ
ся к нескольким моделям вытяжки. Воз
ную информацию по Вашей безопаснос
можно, что описанные в ней отдельные
ти, а также по эксплуатации вытяжки и
детали оснащения отсутствуют в Вашей
уходу за ней.
вытяжке.
Сохраните инструкцию по эксплуатации
Эта вытяжка соответствует действующим
и монтажу для возможной передачи пос
правилам техники безопасности.
ледующему владельцу.
Ремонт вытяжки должен выполняться
только квалифицированным персоналом.
Неправильно выполненный ремонт
вытяжки может привести к возникно
вению серьезной опасности для
пользователя.
Если вытяжка повреждена, ее не следу
Не стерилизуйте продукты питания пла
ет вводить в эксплуатацию.
менем непосредственно под вытяжкой.
Опасность воспламенения жиропогло
Подключение и ввод в эксплуатацию вы
!
щающего фильтра.
тяжки должен выполнять только квалифици
рованный специалист.
Эксплуатация вытяжки над очагом, в ко
тором сгорает твердое топливо (уголь, дере
Из соображений безопасности замена
во и т.д.), разрешается только в ограничен
поврежденных соединительных проводов
ных случаях (см. инструкцию по монтажу).
вытяжки должна осуществляться изготови
Газовые варочные панели/
телем, или его Сервисной службой, или дру
газовые плиты
гими квалифицированными специалистами.
Всегда правильно эксплуатируйте газо
Утилизацию упаковочного материала
вые конфорки.
следует проводить должным образом (см.
инструкцию по монтажу).
Важно!
Пламя газовых конфорок всегда должно
Эксплуатируйте вытяжку только с уста
быть закрыто посудой.
новленными лампами.
Сильный нагрев пламенем газовых кон
!
форок может повредить вытяжку.
Неисправные лампы следует сразу же
Во время эксплуатации тепловая нагруз
заменять, чтобы предотвратить перегрузку
ка всех конфорок не должна превышать
оставшихся ламп.
8,0 кВт, независимо от номинальной
мощности.
Никогда не эксплуатируйте вытяжку без
Исключение:
установленного жиропоглощающего филь
В течение короткого времени (не более
тра.
15 минут) можно эксплуатировать кон
форки с тепловой нагрузкой до 11,3 кВт,
Перегретые жир и масло легко воспла
но только если вентилятор включен по
меняются. Поэтому всегда следите за при
стоянно на 2 ступени. (В противном слу
готовлением пищи с жиром или маслом, на
чае возникает опасность ожога при при
пример, в случае приготовления картофеля
косновении к поверхности корпуса.)
фри.
2
Информация для предварительного ознакомления. Официальной информацией изготовителя не является.

Управление вытяжкой
Самым эффективным способом удале
Выключение вентилятора:
ния кухонных испарений, образующихся при
Нажимайте клавишу
–
до тех пор, пока
приготовлении пищи, является следующий
вентилятор не выключится.
способ:
Через короткое время 0 на индикаторе
перестает светиться.
Включите вытяжку сразу же, как только
Вы начинаете готовить.
Интенсивная ступень:
Выключите вытяжку через несколько
Максимальная производительность обеспе
минут после того, как Вы закончите гото
чивается на интенсивной ступени. Такая про
вить.
изводительность обычно требуется только
на короткое время.
Индикатор
Нажимайте клавишу
+
до тех пор, пока
ступени мощности вентилятора
на индикаторе не появится индикация P.
Если интенсивная ступень не отключает
ся вручную, вентилятор через 10 минут ав
томатически переключится на уровень 2.
Освещение:
Для включения освещения нажмите кла
вишу <
+
, для выключения <
–
.
Освещением можно пользоваться в лю
бое время, даже когда вентилятор выклю
чен.
Регулировка яркости:
Удерживайте нажатой клавишу <
+
или
<
–
до получения требуемой яркости.
Освещение Выключение и уменьшение
Автоматическое включение освещения,
скорости вентилятора
например, с помощью таймера:
Вентилятор и освещение должны быть
Включение и увеличение
выключены.
скорости вентилятора
Включение:
Звуковой сигнал:
Одновременно нажмите клавиши <
–
и <
+
.
Нажатие клавиши подтверждается звуко
Примерно через 3 секунды свет включа
вым сигналом.
ется для подтверждения настройки.
Выключение звукового сигнала:
Выключение:
Одновременно нажмите клавиши <
–
и
Повторите операцию при включенном осве
–
и удерживайте их в нажатом положе
щении.
нии, пока примерно через 3 секунды не
Примерно через 3 секунды свет выклю
прозвучит звуковой сигнал.
чается для подтверждения настройки.
Включение звукового сигнала:
Повторите вышеописанную операцию.
Включение вентилятора:
Нажмите клавишу
+
.
Установка требуемой скорости
вентилятора:
Нажмите клавишу
+
.
Скорость вентилятора увеличивается на
одну ступень.
Нажмите клавишу
–
.
Скорость вентилятора уменьшается на
одну ступень.
Информация для предварительного ознакомления. Официальной информацией изготовителя не является.
3

Фильтры и их техническое обслуживание
Жиропоглощающий фильтр:
Снятие и установка металлического
жиропоглощающего фильтра:
Для поглощения частиц жира в кухонных
испарениях, образующихся при приго
Предупреждение. Галогенные лампы дол
товлении пищи, используется металли
жны быть выключены и должны остыть.
ческий жиропоглощающий фильтр.
1. Поверните оба фиксатора на жиропогло
Фильтрующие прокладки сделаны из невос
щающем фильтре и выньте жиропогло
пламеняющегося металла.
щающий фильтр.
Внимание!
По мере насыщения фильтра остатками жи
ров не только увеличивается риск воспламе
нения, но это может также оказать отрица
тельное воздействие на работу вытяжки.
Важное замечание.
Регулярная чистка металлического жиропог
лощающего фильтра снижает вероятность
воспламенения, которое возможно изза
нагрева при жарении в большом количестве
жира.
Индикатор насыщения:
Когда жиропоглощающий фильтр доходит
до точки насыщения, в течение 10 секунд
после выключения вентилятора слышен зву
ковой сигнал, а на индикаторе появляется .
Следует сразу же произвести чистку жиро
поглощающего фильтра.
Чистка металлического
жиропоглощающего фильтра:
2. Проведите чистку фильтра.
Фильтр можно мыть в посудомоечной
3. Снова установите очищенный фильтр на
машине. Однако это может привести к не
место в вытяжку.
значительному изменению окраски
фильтра.
4. Удалите с индикатора.
Важное замечание:
Нажмите клавишу
–
.
Сильно загрязненный металлический жи
ропоглощающий фильтр не следует мыть
в посудомоечной машине вместе с посу
дой.
При ручной мойке фильтра сначала замо
чите его в горячей мыльной воде. Затем
очистите фильтр щеткой, тщательно про
полощите его и дайте воде стечь.
4
Информация для предварительного ознакомления. Официальной информацией изготовителя не является.

Фильтры и их техническое обслуживание
Угольный фильтр:
Индикатор насыщения: C
Когда угольный фильтр доходит до точки на
Предназначен для устранения запахов в
сыщения, в течение 10 секунд после вык
режиме циркуляции воздуха.
лючения вентилятора слышен звуковой сиг
нал, а на индикаторе появляется C. Следу
ет сразу же произвести замену угольного
фильтра.
Установка фильтра:
Снятие фильтра:
Предупреждение. Галогенные лампы дол
Предупреждение. Галогенные лампы дол
жны быть выключены и должны остыть.
жны быть выключены и должны остыть.
1. Снимите жиропоглощающий фильтр (см.
1. Снимите жиропоглощающий фильтр.
раздел «Снятие и установка металличес
2. Нажмите на фиксатор спереди и сними
кого жиропоглощающего фильтра»).
те угольный фильтр, сдвинув его вниз.
2. Вставьте угольный фильтр.
3. Защелкните спереди фиксатор.
3. Установите жиропоглощающий фильтр.
4. Установите металлический жиропогло
4. Удалите C с индикатора.
щающий фильтр (см. раздел «Снятие и
Нажмите клавишу
–
.
установка металлического жиропоглоща
ющего фильтра»).
Замена угольного фильтра:
Угольный фильтр можно приобрести в
специализированном магазине (см. спе
циальные принадлежности).
Используйте только фильтры нашей
фирмы. Тем самым будет обеспечена
оптимальная работа вытяжки.
Утилизация старого угольного фильтра:
Угольный фильтр не содержит вредных
веществ. Его можно утилизировать как
обычный домашний мусор.
Информация для предварительного ознакомления. Официальной информацией изготовителя не является.
5

Чистка и уход
Замена ламп
Выключите электропитание вытяжки,
1. Выключите вытяжку и отключите ее от
для чего выньте вилку из сетевой розет
сети путем отсоединения вилки от сете
ки или выключите предохранитель.
вой розетки или выключения предохра
нителя.
При чистке жиропоглощающего фильтра
проводите чистку всех доступных дета
Включенные галогенные лампочки
лей корпуса от имеющихся отложений
очень горячие. Даже через некоторое вре
жира. Это значительно снижает опас
мя после их выключения еще имеется риск
ность воспламенения и гарантирует наи
ожога.
более эффективное функционирование
вытяжки.
2. Снимите ламповое кольцо с помощью
отвертки или подобного инструмента.
Для чистки обшивки вытяжки пользуйтесь
горячей мыльной водой или мягким сред
ством для чистки оконных стекол.
Не соскребайте присохшую грязь, а раз
мягчайте ее влажной тряпкой.
Никогда не пользуйтесь абразивными
чистящими средствами или губками, ко
торые могут поцарапать поверхность.
Примечание. Никогда не протирайте
спиртом пластмассовые поверхности,
так как на них могут появиться матовые
пятна.
3. Замените галогенную лампу (имеющая
Предостережение. Достаточно часто
ся в продаже галогенная лампа, 12 В, мак
проветривайте кухню. Никогда не остав
симум 20 Вт, цоколь G4).
ляйте открытое пламя!
Внимание! См. рисунок, на котором по
казан патрон лампы.
Чистите клавиши управления только
Берите лампы только чистой тряпкой.
слабым мыльным раствором и мягкой
влажной тряпкой. Не используйте для чис
тки клавиш управления средство для чист
ки нержавеющей стали.
Поверхности из нержавеющей стали:
Используйте мягкое, неабразивное сред
ство для чистки нержавеющей стали.
Чистите только в направлении шлифовки.
Не используйте для чистки поверхнос
тей из нержавеющей стали средства, содер
жащие песок, соду, кислоты, хлориды и губ
4. Вставьте на место ламповое кольцо.
ки, которые могут поцарапать эти поверхно
сти!
5. Подключите опять вилку к сетевой розет
ке или включите предохранитель.
Алюминиевые, лакированные и пласт
Примечание. Если освещение не работает,
массовые поверхности:
проверьте правильность установки ламп.
Используйте мягкую неворсистую ткань
для протирки стекол или микроволокни
стую ткань.
Не пользуйтесь сухими тряпками.
Используйте мягкое средство для чист
ки оконных стекол.
Не используйте агрессивные, кислотные
или щелочные чистящие средства.
Не используйте абразивные средства для
чистки.
6
Информация для предварительного ознакомления. Официальной информацией изготовителя не является.

Настройка индикатора
Неисправности
насыщения
Если на индикаторе появилось или C:
При изменении режима работы вытяжки (ре
См. раздел «Фильтры и их техническое
жим отвода воздуха/режим циркуляции воз
обслуживание».
духа) следует также изменить настройку ин
дикатора насыщения фильтра (см. «Инструк
Если вытяжка не работает:
цию по монтажу).
Отсоедините вытяжку от сети, вынув вил
ку из розетки или выключив предохрани
тель. Подождите примерно 1 минуту и
затем опять включите вытяжку в сеть.
Если у Вас имеются какиелибо вопросы,
или если появилась неисправность, обра
щайтесь в Сервисную службу (cм. перечень
мастерских Сервисной службы).
При телефонном звонке, пожалуйста, сооб
щите следующие сведения:
ENr. FD
Впишите эти номера в вышеуказанных мес
тах. Номера ENr. (номер изделия) и FD (за
водской номер) Вы найдете на табличке с
техническими характеристиками внутри Ва
шей вытяжки после того, как снимете решет
ку фильтра.
Информация для предварительного ознакомления. Официальной информацией изготовителя не является.
7

Инструкция по монтажу
Важные указания
Старая вытяжка не является совершен
Минимальное расстояние между газо
но ненужным мусором. Она содержит цен
вой варочной панелью и нижним краем вы
ные материалы, которые могут быть вторич
тяжки: 650 мм, рис. 1.
но использованы при утилизации с учетом
требований по охране окружающей среды.
Пламя газовых конфорок всегда должно
Перед тем, как отправлять на утилизацию
быть закрыто посудой.
старую вытяжку, приведите ее в неработос
пособное состояние.
Газовые варочные панели/
газовые плиты:
Ваша новая вытяжка защищена соответ
Во время эксплуатации тепловая нагруз
ствующей упаковкой на время транспорти
ка всех конфорок не должна превы
ровки. Все материалы, которые использова
шать 8,0 кВт, независимо от номиналь
ны для этой цели, не наносят вреда окружа
ной мощности.
ющей среде и могут быть переработаны для
вторичного использования. Пожалуйста,
Исключение:
сделайте свой вклад в охрану окружающей
В течение короткого времени (не более
среды, отправив этот материал для упаков
15 минут) можно эксплуатировать кон
ки на переработку с учетом требований по
форки с тепловой нагрузкой до 11,3 кВт,
охране окружающей среды.
но только если вентилятор включен по
стоянно на 2 ступени. (В противном слу
Самые последние сведения относительно
чае возникает опасность ожога при при
возможностей по утилизации Вашей старой
косновении к поверхности корпуса.)
вытяжки и упаковки новой вытяжки Вы мо
жете получить в той организации, где Вы
Плиты на твердом топливе:
приобрели вытяжку, или в местных админи
Максимальная номинальная тепловая на
стративных органах.
грузка и минимальное расстояние до
плиты имеют такое же значение, как и в
Вытяжка предназначена для использо
случае газовых плит.
вания в режиме отвода воздуха или в режи
ме циркуляции воздуха.
Над очагом, в котором сгорает твердое
топливо, вследствие потенциальной пожар
Всегда устанавливайте вытяжку над цен
ной опасности (например, изза разлетаю
тральной частью варочной панели.
щихся искр) устанавливать вытяжку разре
шается только в том случае, если очаг име
Минимальное расстояние между элект
ет закрытое несъемное покрытие, и со
рической варочной панелью и нижним кра
блюдаются все правила, которые действу
ем вытяжки: 550 мм, рис. 1.
ют в каждой конкретной стране. Это ограни
Дополнительные указания в случае
чение не относится к газовым плитам и па
использования газовых плит:
нелям газовых конфорок.
При монтаже газовых плит соблюдайте
Чем меньше расстояние между вытяж
действующие в данной стране соответству
кой и варочной панелью, тем выше вероят
ющие положения (например, в Германии:
ность конденсации поднимающихся паров
технические правила по установке газовых
на вытяжке.
приборов TRGI).
Во всех случаях следует соблюдать со
ответствующие правила и указания по уста
новке, которые даются изготовителем газо
вой плиты.
Вытяжку разрешается устанавливать та
ким образом, чтобы только с одной ее сто
роны располагались высокий шкаф или вы
сокая стена. При этом расстояние до этого
шкафа или до этой стены должно быть не
менее 50 мм.
8
Информация для предварительного ознакомления. Официальной информацией изготовителя не является.

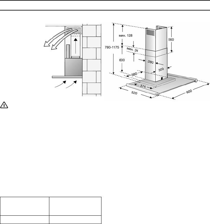
Перед монтажом
Режим отвода воздуха
Отводимый воздух подается вверх через
Это можно обеспечить, если воздух при сго
вентиляционную шахту или непосредствен
рании топлива будет выводиться из помеще
но через наружную стену за пределы поме
ния через незакрытые отверстия, например,
щения.
через двери, окна, настенные вентиляцион
ные шкафы или с помощью технических мер,
Отводимый воздух нельзя выводить через
обеспечивающих блокировку других уст
дымоход, который используется для других
ройств при работе одного устройства и т.д.
целей, или через шахту, используемую для
вентиляции помещений, в которых также ус
При подаче воздуха в недостаточном
тановлены печи или камины.
объеме возникает опасность отравления
газообразными продуктами сгорания,
При отводе воздуха следует соблюдать
которые всасываются обратно в комнату.
предписания административных орга
нов власти (например, принятые в дан
Применение только настенного вентиляци
ной стране строительные нормы и пра
онного шкафа не гарантирует, что предель
вила).
ное значение пониженного давления возду
ха не будет превышено.
Следует получить разрешение соответству
ющих административных органов при отво
Примечание. При оценке давления воздуха
де воздуха через дымоход, который не экс
следует учитывать всю систему вентиляции,
плуатируется.
которая имеется в здании. Однако это пра
вило не применяется при использовании
Если вытяжка в режиме отвода воздуха
оборудования для приготовления пищи, на
работает одновременно с отопительным
пример, варочных панелей и газовых плит.
оборудованием, которое пользуется вы
тяжными трубами (например, отопитель
Если вытяжка используется в режиме цир
ные системы, проточные водонагреватели
куляции воздуха с угольным фильтром, экс
или котлы, которые работают на газе, жид
плуатация возможна без какихлибо ограни
ком или твердом топливе), необходимо
чений.
обеспечить подачу воздуха в объеме,
Если отводимый воздух удаляется через
достаточном для сгорания топлива.
наружную стену, следует установить вен
По соображениям безопасности требуется,
тиляционный телескопический блок в наруж
чтобы в помещении, где установлено отопи
ной стене.
тельное или нагревательное оборудование
с открытым огнем, давление воздуха по
сравнению с атмосферным было понижено
не более чем на 4 Па (0,04 мбар).
Информация для предварительного ознакомления. Официальной информацией изготовителя не является.
9

Перед монтажом
Оптимальная эффективность вытяжки
Подсоединение к вытяжной трубе
обеспечивается при выполнении
диаметром 150 мм:
следующих условий:
Установите вытяжную трубу непосред
Использование коротких и гладких вы
ственно в выходном отверстии вытяжки.
тяжных труб без изгибов.
Использование минимального количе
Подсоединение к вытяжной трубе
ства колен.
диаметром 120 мм:
Использование труб с насколько возмож
Вставьте переходник для сужения кана
но большими внутренними диаметрами,
ла в выходное отверстие вытяжки и при
а также использование колен труб с боль
соедините к нему вытяжную трубу.
шим радиусом.
Использование длинных, неровных
вытяжных труб, большого количества
колен или труб с малым внутренним
диаметром ведет к снижению эффек
тивности работы вытяжки и, одновре
менно, к повышению уровня шумов.
Круглые трубы:
Мы рекомендуем внутренний диаметр
150 мм (минимальный внутренний диа
метр 120 мм).
Трубы прямоугольного сечения долж
ны иметь площадь внутреннего сече
ния, равную площади внутреннего сече
ния соответствующих круглых труб.
Они не должны иметь резких изгибов.
В случае труб с внутренним диаметром
120 мм площадь внутреннего сечения со
ставляет примерно 113 см
2
.
В случае труб с внутренним диаметром
150 мм площадь внутреннего сечения со
ставляет примерно 177 см
2
.
Если трубы имеют различные диа
метры: используйте герметизирующую
ленту.
В случае эксплуатации вытяжки в режи
ме отвода воздуха обеспечивайте дос
таточное поступление свежего воздуха.
10
Информация для предварительного ознакомления. Официальной информацией изготовителя не является.

Перед монтажом
Режим циркуляции воздуха
Применяется,
если нет воз
можности ис
пользовать
режим отвода
воздуха. При
этом исполь
зуется уголь
ный фильтр.
Полный комплект для монтажа можно
приобрести в специализированном мага
зине. Соответствующие номера принад
лежностей можно найти в инструкции по эк
сплуатации.
Подготовка стены
Стена должна быть ровной и вертикаль
ной.
Для прочного крепления используйте дю
бели.
Вес в кг:
Режим Режим
отвода циркуляции
воздуха воздуха
24,0 25,5
Мы сохраняем за собой право на изменение кон
струкции в связи с техническими усовершенство
ваниями.
Информация для предварительного ознакомления. Официальной информацией изготовителя не является.
11

Переход от
Электрическое подключение
режима отвода воздуха к
режиму циркуляции воздуха
Вытяжку следует подключать только к за
земленной розетке, установленной в соот
ветствии с действующими правилами.
Переключение системы электронного
По возможности розетку с контактом зазем
управления на режим циркуляции
ления следует располагать непосредствен
воздуха:
но за обшивкой вытяжной трубы.
На заводеизготовителе вытяжка настро
ена на режим отвода воздуха.
Электрические характеристики:
Для изменения режима вытяжка должна
Их можно найти на табличке с техническими
быть подключена к сети и выключена.
характеристиками внутри вытяжки, после
снятия рамки фильтра.
В случае ремонта всегда отсоединяй
те вытяжку от электрической сети.
Длина соединительного кабеля: 1,30 м.
В случае необходимости фиксирован
ного подключения вытяжки к сети:
Вытяжка должна подключаться к сети элек
тропитания только квалифицированным
электриком.
Со стороны сети электропитания должно
быть установлено размыкающее устрой
1. Одновременно нажмите и удерживайте
ство. В качестве размыкающего устройства
в нажатом положении клавиши
–
и
+
.
следует использовать переключатель с ми
нимальным расстоянием между контактами
2. Пока на индикаторе светится 0, дополни
3 мм. К числу таких переключателей относят
тельно нажмите клавишу <
–
, пока на ин
ся автоматические выключатели или контак
дикаторе не появится C. Когда эта инди
торы.
кация появится, отпустите клавиши.
Индикация C исчезнет через короткое
Данная вытяжка соответствует требованиям
время. Теперь система электронного уп
правил Европейского Сообщества по подав
равления настроена на режим циркуля
лению радиопомех.
ции воздуха.
Повторив шаги 1 и 2, Вы можете переве
сти систему электронного управления на
зад в режим отвода воздуха (на индика
торе отображается ).
12
Информация для предварительного ознакомления. Официальной информацией изготовителя не является.

Монтаж
Данная вытяжка предназначена для монта
Примечание. Если предполагается уста
жа на стене кухни.
навливать какиелибо специальные принад
лежности, это следует учесть.
1. Снимите жиропоглощающий фильтр (см.
инструкцию по эксплуатации).
5. Привинтите один уголок вверху и два
внизу.
2. Начертите линию на стене от потолка до
нижнего края вытяжки в центре того мес
та, в котором предполагается установить
вытяжку.
3. Используйте шаблон для маркировки на
стене точек, в которых будут установле
ны шурупы. Чтобы облегчить подвешива
ние вытяжки, начертите контур той зоны,
где будет крепиться вытяжка.
Обеспечьте минимальное расстояние
между варочной панелью и вытяжкой
550 мм – для электрической варочной па
нели и 650 мм – для газовой варочной па
нели. Нижний край шаблона располагается
на уровне нижнего края вытяжки.
4. Просверлите 4 отверстия ∅ 8 мм для вы
тяжки и 2 отверстия ∅ 8 мм для обшивки.
Вставьте дюбели в отверстия таким об
разом, чтобы они были заподлицо со сте
ной.
6. Подвесьте вытяжку. Выровняйте ее по
высоте и по горизонтали с помощью ре
гулировочных винтов.
мин. 550 до электроплиты
мин. 650 до газовой плиты
Стеклянный экран не должен касать
ся стены.
Информация для предварительного ознакомления. Официальной информацией изготовителя не является.
13

Монтаж
7. Ввинтите два нижних винта с шестигран
13. Вставьте полную вытяжную трубу под уг
ной головкой.
лом в стеклянный экран и поверните ее
назад.
Если при завинчивании шурупа ока
Внимание! отверстия на вытяжной тру
зывать давление на стеклянный экран,
бе должны находиться точно над выклю
стекло может разбиться.
чателем.
8. Наклейте защитную пленку на отверстия
для двух нижних крепежных шурупов в за
щитной решетке.
14. Осторожно выдвиньте верхнюю секцию
обшивки вытяжной трубы вверх и с бо
ков привинтите двумя винтами к уголку.
9. Подсоедините трубу для вывода воздуха.
10.Подключите вытяжку к электропитанию.
11.Снимите защитную пленку с обеих сек
ций обшивки вытяжной трубы.
Старайтесь избежать повреждений
чувствительных поверхностей из нержа
веющей стали.
12. Задвиньте верхнюю секцию обшивки вы
тяжной трубы (пазы внизу) в нижнюю
секцию.
При вставлении секций одну в дру
гую старайтесь их не поцарапать, для
чего, например, установите в качестве
защиты монтажные шаблоны по кра
15. Установите на место жиропоглощающий
ям нижней секции обшивки вытяжной
фильтр (см. инструкцию по эксплуата
трубы.
ции).
14
Информация для предварительного ознакомления. Официальной информацией изготовителя не является.

Рис. 1
ГАЗОВАЯ
ЭЛЕКТРО
ПЛИТА
ПЛИТА
не менее 650 мм
не менее 550 мм
Информация для предварительного ознакомления. Официальной информацией изготовителя не является.
15

LZ51550
360732
Изготовитель не исключает возможности распространения данной инструкции также на новые модели
продукции, которые будут выведены на рынок после изготовления тиража этой инструкции по эксплу!
атации при условии, что новые модели продукции будут идентичны актуальным с точки зрения особен!
ностей их эксплуатации.
Право на внесение изменений изготовитель оставляет за собой.
16
Информация для предварительного ознакомления. Официальной информацией изготовителя не является.










