Siemens DH 12102: инструкция
Характеристики, спецификации
Инструкция к Водонагревателю Siemens DH 12102
Оглавление
- Инструкция по эксплуатации

Инструкция по эксплуатации
Проточный
водонагреватель
Напечатано в России / май 2005 / 1000 / GA1935
DH 12102
900352

Пожалуйста, перед использованием водонагревателя внимательно про
читайте данную инструкцию по эксплуатации.
Указания по безопасности
Установку и ввод в эксплуатацию водонагревателя должен выполнять только
квалифицированный специалист в соответствии с указаниями, приведенны
ми в прилагаемой инструкции по монтажу.
Проточный водонагреватель допускается устанавливать в таком помещении,
в котором поддерживается температура выше точки замерзания воды.
Смеситель и соединительная труба с горячей водой могут очень сильно на
греваться. Не подпускайте детей близко к работающему прибору!
Ваш новый водонагреватель
Вода нагревается непрерывно, пока она протекает через проточный водонагре
ватель. Электроэнергия расходуется только тогда, когда вода протекает через
водонагреватель.
Водонагреватель может снабжать горячей водой несколько водопроводных кра
нов, расположенных в разных местах. При этом водонагреватель следует уста
навливать как можно ближе к тому крану, который используется чаще всего. Это
позволит сократить расход электроэнергии.
Как эксплуатировать водонагреватель:
Включите кран горячей воды.
Проточный водонагреватель автоматически включается и нагревает воду, когда
она протекает через водонагреватель. Когда Вы закрываете кран, водонагрева
тель опять выключается.
Указания по экономии электроэнергии: чаще используйте положение >e<.
Повышение температуры воды:
Когда кран открыт полностью, может оказаться, что мощность водонагревателя
недостаточна для того, чтобы нагревать воду до требуемой температуры.
Слегка закройте кран. Вода будет протекать по водонагревателю медленнее и в
результате этого достигнет требуемой температуры.
Понижение температуры воды:
Смешивайте с холодной водой.
Экономия электроэнергии
Чтобы минимизировать расход электроэнергии при выключении горячей воды:
Закрывайте кран горячей воды медленно, чтобы использовать остаточное тепло
проточного водонагревателя.
Это также предотвращает кратковременное повышение температуры выше тре
буемого значения в том случае, когда кран горячей воды открывается опять в те
чение ближайших нескольких минут после закрывания.
Чтобы обеспечить равномерную температуру воды, рекомендуется использовать
смесители с управлением от термореле.
Смесители с управлением от термореле должны быть пригодны для проточных
водонагревателей с гидравлическим управлением.
Информация для предварительного ознакомления. Официальной информацией изготовителя не является.
1

Как чистить водонагреватель:
Достаточно протирать водонагреватель влажной тряпкой.
Не используйте острых предметов или абразивных чистящих средств.
Что делать, если возникает неисправность
Если возникает неисправность, то зачастую ее причина очень проста. Пожалуй
ста, попытайтесь самостоятельно устранить неисправность с помощью нижепри
веденных указаний. Таким образом Вы сможете избежать ненужных расходов на
вызов специалиста по обслуживанию водонагревателей.
Вода не нагревается, или из крана течет недостаточно воды:
Проверьте предохранитель в домашней сети электропитания.
Снижение давления в водопроводной сети.
Если давление слишком низкое, водонагреватель не включается.
Засорилась сетка в кране или в разбрызгивающей головке душа. Отвинтите
сетку и очистите ее, либо удалите накипь.
Засорился угловой регулирующий вентиль. Полностью откройте кран горя
чей воды и несколько раз откройте и закройте регулирующий вентиль. После
того, как это будет сделано, очистите сетку в кране.
Из водонагревателя требуется удалить накипь. Вызовите для этого специа
листа по обслуживанию водонагревателей.
Водонагреватель выключается, хотя по нему протекает вода,
и после этого температура воды падает:
Кольцевая прокладка внутри крана горячей воды должна быть ненабухающе
го типа.
Если Вы не можете устранить эту неисправность самостоятельно, выключите во
донагреватель, используя предохранитель в домашней сети электропитания.
Вызовите специалиста по обслуживанию водонагревателей.
Внимание!
Ремонт водонагревателя должен выполняться только квалифицирован
ным специалистом. Если ремонт водонагревателя не будет выполнен
надлежащим образом, это может привести к возникновению серьезной
опасности.
Сервисная служба
Если Вам потребуется обратиться в сервисную службу, пожалуйста, назовите но
мер модели Е и заводской номер FD Вашего водонагревателя. Эти номера мож
но найти с нижней стороны проточного водонагревателя.
2
Информация для предварительного ознакомления. Официальной информацией изготовителя не является.

ИНСТРУКЦИЯ ПО МОНТАЖУ ДЛЯ СПЕЦИАЛИСТА
Пожалуйста, соблюдайте следующие указания:
Следует соблюдать все установленные законом требования, действующие в
той стране, в которой должен эксплуатироваться водонагреватель, а также все
правила, предписанные компаниями по электроснабжению и водоснабжению.
Водонагреватель всегда следует подключать к системе водоснабжения перед
его подключением к электрической сети.
Водонагреватель допускается устанавливать в таком помещении, в котором
поддерживается температура выше точки замерзания воды. Его следует ус
танавливать как можно ближе к тому крану, который используется чаще всего.
Водонагреватель должен подключаться к холодному водоснабжению. Не раз
решается устанавливать обратный вентиль.
Не используйте трубы, изготовленные из пластмассы. Для подачи холодной
воды пригодны трубы, изготовленные из стали или меди. Для горячей воды
пригодны теплоизолированные трубы, изготовленные из меди.
Внимание!
После завершения монтажа прикосновение к находящимся под напряжением
деталям должно стать невозможным.
Когда монтаж будет завершен:
Выполните проверку функций прибора и установите, включается ли водонаг
реватель при низком давлении в водопроводной трубе.
Объясните пользователю, как работает водонагреватель, и передайте ему или
ей инструкцию по эксплуатации.
Информация для предварительного ознакомления. Официальной информацией изготовителя не является.
3

Перечень поставляемых устройств и элементов:
1 Проточный водонагреватель
2 Монтажный шаблон
3 Соединительная деталь для горячей воды
4 Кольцевая прокладка красного цвета, диаметр 15 мм
5 Соединительная деталь для холодной воды
6 Кольцевая прокладка, диаметр 24 мм
7 Монтажный болт
8 Дюбель для крепления на стене
9 Зажимная гайка
10 Резьбовая втулка
11 Проходная изолирующая втулка для кабеля
Настенный монтаж
Для монтажа проточного водонагревателя на стене имеются два способа:
1. С помощью монтажного болта
При этом можно компенсировать неровности стены глубиной до 25 мм.
2. Использование отверстий, которые были просверлены
для старого водонагревателя
С помощью монтажного шаблона проверьте, подходят ли существующие отвер
стия.
Ниже описана процедура монтажа с использованием монтажного болта.
4
Информация для предварительного ознакомления. Официальной информацией изготовителя не является.

1. Маркировка точки для монтажа водонагревателя
и выбор отверстия для соединительного кабеля
Внимание!
Убедитесь, что соединительный кабель изолирован от сети электроснаб
жения.
Подвод
холодной
воды
1. Расположите отверстие (3) в монтажном шаблоне над вводом холодной воды.
2. Выберите самое подходящее отверстие, через которое должен вводиться со
единительный кабель. Соединительный кабель должен проходить через одно
из шести отверстий с маркировкой 14 или 14а. Если соединительный кабель
вводится в водонагреватель через одно из нижних отверстий с маркировкой
14а, можно использовать промежуточный блок контактных зажимов BZ 45Z20.
3. Отметьте точку (12), в которой должен быть установлен монтажный болт.
Информация для предварительного ознакомления. Официальной информацией изготовителя не является.
5

2. Установка монтажного болта и присоединение
соединительных деталей для труб
Теплая вода
Холодная вода
3. Откройте водонагреватель
4. Пробивка отверстий с задней стороны водонагревателя
для монтажного болта и соединительного кабеля
Внимание!
При монтаже водонагревателя следует пробивать только те отверстия,
которые действительно необходимы.
Все другие отверстия, которые не будут использоваться, следует герме
тично закрыть.
6
Информация для предварительного ознакомления. Официальной информацией изготовителя не является.

5. Установка соединительного кабеля
1. Насадите проходную изолирующую втулку (11) на конец соединительного ка
беля.
Примечание
2
Если сетевой кабель имеет площадь поперечного сечения 16 мм
, не устанав
ливайте проходную изолирующую втулку для кабеля. В этом случае водонаг
реватель следует устанавливать вплотную к стене.
Внимание! Без проходной изолирующей втулки для кабеля водонагреватель
DH 12102 классифицируется только как устройство в брызгозащищенном ис
полнении (IP 24).
2. Поместите водонагреватель над соединительным кабелем.
3. Нажмите на проходную изолирующую втулку так, чтобы она вошла в отвер
стие в задней стенке водонагревателя, через которое должен проходить ка
бель. Края проходной изолирующей втулки должны быть заподлицо с отвер
стием по всей окружности.
4. Установите водонагреватель на резьбовую втулку (8) и закрепите на месте
гайкой (9).
Информация для предварительного ознакомления. Официальной информацией изготовителя не является.
7

6. Компенсация неровностей стены
Регулируемое
расстояние до стены
7. Подключение воды
Холодная вода
Теплая вода
Подключение воды можно регулировать по вертикали, ослабив стопорный
винт 15.
Подгоните сгиб «горячей» трубы так, чтобы она совместилась с выходом го
рячей воды. Выполнив эту операцию, убедитесь, что «холодная» соеди
нительная труба не согнута.
Внимание!
Проследите за тем, чтобы минимальное расстояние до деталей, находящихся под
напряжением, составляло не менее 6 мм.
Подключите вход и выход воды и затяните зажимную гайку на монтажном болте.
8
Информация для предварительного ознакомления. Официальной информацией изготовителя не является.

8. Проверка на утечку и промывка водонагревателя
Включите кран горячей воды.
Убедитесь, что все стыки труб хорошо герметизированы.
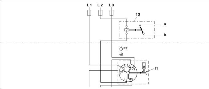
9. Электрическое подключение
Подключение воды должно быть обязательно выполнено до подключения к
водонагревателю электропитания. Электрический монтаж водонагревателя
осуществляется в соответствии с принципиальной схемой, приведенной на
обложке.
С завода водонагреватель поставляется со схемой электропитания следую
щего вида: 12 кВт, соединение треугольником, 230 В, трехфазное перемен
ное напряжение.
Возможные варианты подключения:
– 12 кВт, соединение звездой, 400 В, трехфазное переменное напряжение;
– 8 кВт, 400 В, двухфазное переменное напряжение с нейтралью;
– 8 кВт, 230 В, переменное напряжение;
– 6 кВт, 230 В, переменное напряжение.
Внимание!
Чтобы обеспечить выполнение всех действующих правил безопасности, в до
машней электрической сети следует установить разъединитель, который бу
дет отключать все контакты. Зазор между контактами в отключенном состоя
нии должен быть не менее 3 мм.
Если соединительный кабель вводится в водонагреватель через одно из ниж
них отверстий с маркировкой 14а, может использоваться промежуточный блок
контактных зажимов BZ 45Z20.
Провода не должны мешать срабатыванию кнопки отключения А на защитном
ограничителе температуры.
Информация для предварительного ознакомления. Официальной информацией изготовителя не является.
9

Варианты подключения
12 кВт
12 кВт
8 кВт
соединение треугольником,
соединение звездой,
400 В, двухфазное
230 В, трехфазное
400 В, трехфазное
переменное напряжение
переменное напряжение
переменное напряжение
с нейтралью
8 кВт
6 кВт
230 В
230 В
переменное напряжение
переменное напряжение
Окончательная принципиальная схема находится в водонагревателе
f1 Защитный ограничитель температуры с сетевыми выводами 135
l2 Планка с контактными зажимами, на которой осуществляются переключения
10
Информация для предварительного ознакомления. Официальной информацией изготовителя не является.

10. Монтаж крышки на водонагреватель
Информация для предварительного ознакомления. Официальной информацией изготовителя не является.
11

11. Первоначальный пуск
1. Включите водонагреватель через его предохранители в домашнюю электри
ческую сеть.
2. Откройте кран горячей воды и проверьте температуру воды.
При комбинировании с накопительным электрическим
водонагревателем следует использовать приоритетный
выключатель.
Если водонагреватель предполагается использовать вышеуказанным образом, в
линии, которая соединяет фазу L2 с водонагревателем, следует установить при
оритетный выключатель. Он должен располагаться на панели измерительных
приборов или на распределительном щите.
а, b Контрольная линия для компании по электроснабжению, которая подклю
чена ко входу обмотки на зарядном контакторе.
f1 Защитный ограничитель температуры с сетевыми выводами.
f3 Приоритетный выключатель (реле тока)
РЕ Защитное заземление
12
Информация для предварительного ознакомления. Официальной информацией изготовителя не является.

Технические характеристики
Номинальная мощность (кВт) 12
Точка включения (л/мин) 3,6
Смешанная вода (л/мин) при номинальной мощности
при температуре примерно 38° С 6,5
при температуре примерно 50° С 4,4
(Температура воды на входе 12° С)
Минимальное давление потока на водонагревателе* (бар) 0,2
*К этому следует добавить падение давления на смесителе.
Специальные принадлежности:
Комплект трубных переходников BZ 45U20:
Обеспечивает возможность установки проточного водонагревателя под раковиной.
Промежуточный блок контактных зажимов BZ 45Z20:
Необходим, когда кабель для подключения к сети вводится в водонагреватель
через одно из нижних отверстий с маркировкой 14а.
Усеченная соединительная деталь, герметично устанавливаемая с задней сто
роны для подключения воды снизу (например, подключение холодной воды че
рез фитинг, установленный под водонагревателем):
Соединительная деталь, «холодная» (правая) № для заказа 056169
Соединительная деталь, «горячая» (левая) № для заказа 255568
Информация для предварительного ознакомления. Официальной информацией изготовителя не является.
13








