Siemens LC 48650: инструкция
Характеристики, спецификации
Инструкция к Вытяжке 60 См Siemens LC 48650
Оглавление
- Описание вытяжки Режимы работы Режимы работы
- Перед первым использованием вытяжки Неисправности
- Управление вытяжкой Фильтры и их техническое обслуживание
- Фильтры и их техническое обслуживание
- Чистка и уход Замена ламп
- Важные указания
- Перед монтажом
- Перед монтажом
- Перед монтажом Электрическое подключение
- Монтаж
- Монтаж
- Рис. 1

Инструкция по эксплуатации
Вытяжка
Напечатано в России / январь 2007 / 3000 / GM2599
LC 48.50
901784

Инструкция по эксплуатации
Описание вытяжки Режимы работы
Обшивка
Это можно обеспечить, если воздух при сго
вытяжной
рании топлива будет выводиться из помеще
трубы
ния через незакрытые отверстия, например,
через двери, окна, настенные вентиляцион
ные шкафы или с помощью технических мер,
Переключатель
обеспечивающих блокировку других уст
освещения/
ройств при работе одного устройства и т.д.
вентилятора
При подаче воздуха в недостаточном
объеме возникает опасность отравления
газообразными продуктами сгорания,
которые всасываются обратно в комнату.
Применение только настенного вентиляци
онного шкафа не гарантирует, что предель
ное значение пониженного давления возду
ха не будет превышено.
Примечание. При оценке давления воздуха
Освещение
Решетка фильтра
следует учитывать всю систему вентиляции,
которая имеется в здании. Однако это пра
вило не применяется при использовании
оборудования для приготовления пищи, на
пример, варочных панелей и газовых плит.
Режимы работы
Если вытяжка используется в режиме цир
куляции воздуха с угольным фильтром, экс
Режим отвода воздуха:
плуатация возможна без какихлибо ограни
чений.
Вентилятор вытяжки всасывает кухонные
испарения и удаляет их за пределы по
мещения через жиропоглощающий
Режим циркуляции воздуха:
фильтр.
Этот режим требует установки угольного
Жиропоглощающий фильтр поглощает
фильтра (см. раздел «Фильтры и их тех
частицы жира, которые могут содержать
ническое обслуживание»).
ся в кухонных испарениях.
Полный комплект для установки и
Кухня в значительной степени освобож
фильтры для замены можно приобрести
дается от жиров и запахов.
в специализированных торговых точ
ках. Соответствующие номера принад
Если вытяжка в режиме отвода воздуха
лежностей можно найти в конце настоя
работает одновременно с отопительным
щей инструкции по эксплуатации.
оборудованием, которое пользуется вы
тяжными трубами (например, отопитель
Вентилятор вытяжки всасывает кухонные
ные системы, проточные водонагреватели
испарения, которые очищаются в жиро
или котлы, которые работают на газе, жид
поглощающем фильтре и угольном филь
ком или твердом топливе), необходимо
тре. После этого очищенный воздух воз
обеспечить подачу воздуха в объеме,
вращается на кухню.
достаточном для сгорания топлива.
Жиропоглощающий фильтр поглощает
По соображениям безопасности требуется,
частицы жира, которые могут содержать
чтобы в помещении, где установлено отопи
ся в кухонных испарениях.
тельное или нагревательное оборудование
Угольный фильтр удаляет имеющиеся
с открытым огнем, давление воздуха по
запахи.
сравнению с атмосферным было понижено
не более чем на 4 Па (0,04 мбар).
Без установленного угольного фильтра
пахучие вещества кухонных испарений не
связываются.
Информация для предварительного ознакомления. Официальной информацией изготовителя не является.
1

Перед первым использованием вытяжки
Важные указания:
Перед первым использованием новой
вытяжки внимательно прочтите инструк
Эта инструкция по эксплуатации относит
цию по эксплуатации. Она содержит важ
ся к нескольким моделям вытяжки. Воз
ную информацию по Вашей безопаснос
можно, что описанные в ней отдельные
ти, а также по эксплуатации вытяжки и
детали оснащения отсутствуют в Вашей
уходу за ней.
вытяжке.
Сохраните инструкцию по эксплуатации
Эта вытяжка соответствует действующим
и монтажу для возможной передачи пос
правилам техники безопасности.
ледующему владельцу.
Ремонт вытяжки должен выполняться
только квалифицированным персоналом.
Если вытяжка повреждена, ее не следу
Неправильно выполненный ремонт вы
ет вводить в эксплуатацию.
тяжки может привести к возникнове
нию серьезной опасности для пользо
Эксплуатация вытяжки над очагом, в ко
вателя.
тором сгорает твердое топливо (уголь, дере
во и т.д.), разрешается только в ограничен
Подключение и ввод в эксплуатацию вы
ных случаях (см. инструкцию по монтажу).
тяжки должен выполнять только квалифици
рованный специалист.
Газовые варочные панели/
газовые плиты
Из соображений безопасности замена
поврежденных соединительных проводов
Не эксплуатируйте все газовые конфор
вытяжки должна осуществляться изготови
ки одновременно в течение длительного ин
телем, или его Сервисной службой, или дру
тервала времени (макс. 15 минут) при мак
гими квалифицированными специалистами.
симальной тепловой нагрузке. В противном
случае возникает опасность ожога при при
Утилизацию упаковочного материала
косновении к поверхности корпуса вытяжки
следует проводить должным образом (см.
или опасность повреждения вытяжки. При
инструкцию по монтажу).
эксплуатации вытяжки над газовой варочной
Эта вытяжка предназначена только для
панелью с одновременно включенными тре
использования в домашнем хозяйстве.
мя или более газовыми конфорками вклю
чайте вытяжку на максимальную мощность.
Эксплуатируйте вытяжку только с уста
новленными лампами.
Неисправные лампы следует сразу же
Неисправности
заменять, чтобы предотвратить перегрузку
оставшихся ламп.
Если у Вас имеются какиелибо вопросы,
или если появилась неисправность, обра
Никогда не эксплуатируйте вытяжку без
щайтесь в Сервисную службу (cм. перечень
установленного жиропоглощающего филь
мастерских Сервисной службы).
тра.
При телефонном звонке, пожалуйста, сооб
Перегретые жир и масло легко воспла
щите следующие сведения:
меняются. Поэтому всегда следите за при
готовлением пищи с жиром или маслом, на
ENr. FD
пример, в случае приготовления картофеля
фри.
Впишите эти номера в вышеуказанных мес
тах. Номера ENr. (номер изделия) и FD (за
Не стерилизуйте продукты питания пла
водской номер) Вы найдете на табличке с
менем непосредственно под вытяжкой.
техническими характеристиками внутри Ва
Опасность воспламенения жиропогло
шей вытяжки после того, как снимете решет
!
щающего фильтра.
ку фильтра.
Пламя газовых конфорок всегда должно
быть закрыто посудой.
2
Информация для предварительного ознакомления. Официальной информацией изготовителя не является.

Управление вытяжкой
Освещение:
Самым эффективным способом удале
ния кухонных испарений, образующихся при
Для включения или выключения освеще
приготовлении пищи, является следующий
ния нажмите клавишу <.
способ:
Освещением можно пользоваться в лю
бое время, даже когда вентилятор выклю
Включите вытяжку сразу же, как только
чен.
Вы начинаете готовить.
Выключите вытяжку через несколько
минут после того, как Вы закончите гото
вить.
Фильтры и их техническое
обслуживание
Включение/выключение
Выключение
освещения
вентилятора
Жиропоглощающий фильтр:
Для поглощения частиц жира в кухонных
испарениях, образующихся при приго
товлении пищи, используется металли
ческий жиропоглощающий фильтр.
Фильтрующие прокладки сделаны из невос
пламеняющегося металла.
Внимание!
Уменьшение
Включение и
По мере насыщения фильтра остатками жи
скорости вентилятора
увеличение скорости
ров не только увеличивается риск воспламе
вентилятора
нения, но это может также оказать отрица
тельное воздействие на работу вытяжки.
Индикатор для настройки
вентилятора
Важное замечание.
Регулярная чистка металлического жиропог
Включение вентилятора:
лощающего фильтра снижает вероятность
воспламенения, которое возможно изза
Нажмите клавишу +.
нагрева при жарении в большом количестве
Установка требуемой скорости
жира.
вентилятора:
Чистка металлического
Нажмите клавишу +.
жиропоглощающего фильтра:
Скорость вентилятора увеличивается на
одну ступень.
При обычном режиме работы (12 часа в
день) металлический жиропоглощающий
Нажмите клавишу –.
фильтр следует чистить через 810 не
Скорость вентилятора уменьшается на
дель.
одну ступень.
Фильтр можно мыть в посудомоечной
Выключение вентилятора:
машине. Однако это может привести к не
Нажмите клавишу 0.
значительному изменению окраски
или:
фильтра.
Нажимайте клавишу – до тех пор, пока
Фильтр должен свободно лежать в посу
вентилятор не выключится.
домоечной машине, он не должен быть
зажат.
Интенсивная ступень:
Важное замечание.
Максимальная производительность обеспе
Сильно загрязненный металлический жи
чивается на интенсивной ступени. Такая про
ропоглощающий фильтр не следует мыть
изводительность обычно требуется только
в посудомоечной машине вместе с посу
на короткое время.
дой.
Нажимайте клавишу + до тех пор, пока на
При ручной мойке фильтра сначала замо
индикаторе не появится индикация P.
чите его в горячей мыльной воде. Затем
Если интенсивная ступень не отключает
очистите фильтр щеткой, тщательно про
ся вручную, вентилятор через 10 минут ав
полощите его и дайте воде стечь.
томатически переключится на уровень 2.
Информация для предварительного ознакомления. Официальной информацией изготовителя не является.
3

Фильтры и их техническое обслуживание
Снятие и установка металлического
2. Вставьте угольный фильтр.
жиропоглощающего фильтра:
Предупреждение! Галогенные лампы дол
жны быть выключены и должны остыть.
1. Нажмите на фиксатор на жиропоглоща
ющем фильтре в направлении стрелки и
выньте жиропоглощающий фильтр.
3. Защелкните спереди фиксатор.
Снятие фильтра:
Предупреждение. Галогенные лампы дол
жны быть выключены и должны остыть.
1. Снимите жиропоглощающий фильтр.
2. Нажмите на фиксатор спереди и сними
те угольный фильтр, сдвинув его вниз.
2. Проведите чистку фильтра.
3. Снова установите очищенный фильтр на
место в вытяжку.
Угольный фильтр:
Предназначен для устранения запахов в
режиме циркуляции воздуха.
Внимание!
По мере насыщения фильтра остатками жи
3. Установите жиропоглощающий фильтр.
ров не только увеличивается риск воспламе
нения, но это может также оказать отрица
Замена угольного фильтра:
тельное воздействие на работу вытяжки.
При обычном режиме работы (12 часа в
Важное замечание.
день) угольный фильтр следует менять
Регулярная замена угольного фильтра сни
примерно 1 раз в год.
жает вероятность воспламенения, которое
Угольный фильтр можно приобрести в
возможно изза нагрева при жарении в боль
специализированном магазине (см. спе
шом количестве жира.
циальные принадлежности).
Используйте только фильтры нашей
Установка фильтра:
фирмы. Тем самым будет обеспечена
Предупреждение. Галогенные лампы дол
оптимальная работа вытяжки.
жны быть выключены и должны остыть.
Утилизация старого угольного фильтра:
1. Снимите жиропоглощающий фильтр (см.
раздел «Снятие и установка металличес
Угольный фильтр не содержит вредных
кого жиропоглощающего фильтра»).
веществ. Его можно утилизировать как
обычный домашний мусор.
4
Информация для предварительного ознакомления. Официальной информацией изготовителя не является.

Чистка и уход
Замена ламп
Выключите электропитание вытяжки,
1. Выключите вытяжку и отключите ее от
для чего выньте вилку из сетевой розет
сети путем отсоединения вилки от сете
ки или выключите предохранитель.
вой розетки или выключения предохра
нителя.
При чистке жиропоглощающего фильтра
проводите чистку всех доступных дета
лей корпуса от имеющихся отложений
Включенные галогенные лампочки очень
жира. Это значительно снижает опас
горячие. Даже через некоторое время пос
ность воспламенения и гарантирует наи
ле их выключения еще имеется риск ожога.
более эффективное функционирование
2. Снимите ламповое кольцо с помощью
вытяжки.
отвертки или подобного инструмента.
Для чистки обшивки вытяжки пользуйтесь
горячей мыльной водой или мягким сред
ством для чистки оконных стекол.
Не соскребайте присохшую грязь, а раз
мягчайте ее влажной тряпкой.
Никогда не пользуйтесь абразивными
чистящими средствами или губками, ко
торые могут поцарапать поверхность.
Примечание. Никогда не протирайте
спиртом пластмассовые поверхности,
так как на них могут появиться матовые
3. Замените галогенную лампу (имеющая
пятна.
ся в продаже галогенная лампа, 12 В, мак
Предостережение. Достаточно часто
симум 20 Вт, цоколь G4).
проветривайте кухню. Никогда не остав
Внимание! См. рисунок, на котором по
ляйте открытое пламя!
казан патрон лампы.
Берите лампы только чистой тряпкой.
Чистите клавиши управления только сла
бым мыльным раствором и мягкой влажной
тряпкой. Не используйте для чистки клавиш
управления средство для чистки нержавею
щей стали.
Поверхности из нержавеющей стали:
Используйте мягкое, неабразивное сред
ство для чистки нержавеющей стали.
Чистите только в направлении шлифовки.
Не используйте для чистки поверхнос
тей из нержавеющей стали средства, содер
4. Вставьте на место ламповое кольцо.
жащие песок, соду, кислоты, хлориды и губ
ки, которые могут поцарапать эти поверхно
5. Подключите опять вилку к сетевой розет
сти!
ке или включите предохранитель.
Алюминиевые, лакированные и
Примечание. Если освещение не работает,
пластмассовые поверхности:
проверьте правильность установки ламп.
Используйте мягкую неворсистую ткань
для протирки стекол или микроволокни
стую ткань.
Не пользуйтесь сухими тряпками.
Используйте мягкое средство для чист
ки оконных стекол.
Не используйте агрессивные, кислотные
или щелочные чистящие средства.
Не используйте абразивные средства для
чистки.
Информация для предварительного ознакомления. Официальной информацией изготовителя не является.
5

Инструкция по монтажу
Важные указания
Старая вытяжка не является совершен
Дополнительные указания в случае
но ненужным мусором. Она содержит цен
использования газовых плит:
ные материалы, которые могут быть вторич
но использованы при утилизации с учетом
При монтаже газовых плит соблюдайте
требований по охране окружающей среды.
действующие в данной стране соответству
Перед тем, как отправлять на утилизацию
ющие положения (например, в Германии:
старую вытяжку, приведите ее в неработос
технические правила по установке газовых
пособное состояние.
приборов TRGI).
Ваша новая вытяжка защищена соответ
Во всех случаях следует соблюдать со
ствующей упаковкой на время транспорти
ответствующие правила и указания по уста
ровки. Все материалы, которые использова
новке, которые даются изготовителем газо
ны для этой цели, не наносят вреда окружа
вой плиты.
ющей среде и могут быть переработаны для
вторичного использования. Пожалуйста,
Вытяжку разрешается устанавливать та
сделайте свой вклад в охрану окружающей
ким образом, чтобы только с одной ее сто
среды, отправив этот материал для упаков
роны располагались высокий шкаф или вы
ки на переработку с учетом требований по
сокая стена. При этом расстояние до этого
охране окружающей среды.
шкафа или до этой стены должно быть не
менее 50 мм.
Самые последние сведения относительно
возможностей по утилизации Вашей старой
Минимальное расстояние между ниж
вытяжки и упаковки новой вытяжки Вы мо
ним краем вытяжки и верхним краем под
жете получить в той организации, где Вы
ставки для посуды на газовых варочных па
приобрели вытяжку, или в местных админи
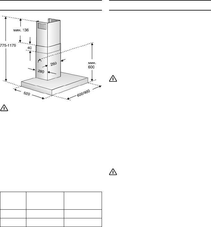
нелях: 650 мм, рис. 1.
стративных органах.
Вытяжка предназначена для использо
вания в режиме отвода воздуха или в режи
ме циркуляции воздуха.
Всегда устанавливайте вытяжку над цен
тральной частью варочной панели.
Минимальное расстояние между элект
рической варочной панелью и нижним кра
ем вытяжки: 550 мм, рис. 1.
Над очагом, в котором сгорает твердое
топливо, вследствие потенциальной пожар
ной опасности (например, изза разлетаю
щихся искр) устанавливать вытяжку разре
шается только в том случае, если очаг име
ет закрытое несъемное покрытие, и со
блюдаются все правила, которые действу
ют в каждой конкретной стране. Это ограни
чение не относится к газовым плитам и па
нелям газовых конфорок.
Чем меньше расстояние между вытяж
кой и варочной панелью, тем выше вероят
ность конденсации поднимающихся паров
на вытяжке.
6
Информация для предварительного ознакомления. Официальной информацией изготовителя не является.

Перед монтажом
Режим отвода воздуха
Отводимый воздух подается вверх через
Это можно обеспечить, если воздух при сго
вентиляционную шахту или непосредствен
рании топлива будет выводиться из помеще
но через наружную стену за пределы поме
ния через незакрытые отверстия, например,
щения.
через двери, окна, настенные вентиляцион
ные шкафы или с помощью технических мер,
Отводимый воздух нельзя выводить через
обеспечивающих блокировку других уст
дымоход, который используется для других
ройств при работе одного устройства и т.д.
целей, или через шахту, используемую для
вентиляции помещений, в которых также
При подаче воздуха в недостаточном
установлены печи или камины.
объеме возникает опасность отравления
газообразными продуктами сгорания,
При отводе воздуха следует соблюдать
которые всасываются обратно в комнату.
предписания административных органов
власти (например, принятые в данной
Применение только настенного вентиляци
стране строительные нормы и правила).
онного шкафа не гарантирует, что предель
ное значение пониженного давления возду
Следует получить разрешение соответству
ха не будет превышено.
ющих административных органов при отво
де воздуха через дымоход, который не экс
Примечание: При оценке давления воздуха
плуатируется.
следует учитывать всю систему вентиляции,
которая имеется в здании. Однако это пра
Если вытяжка в режиме отвода воздуха
вило не применяется при использовании
работает одновременно с отопительным
оборудования для приготовления пищи, на
оборудованием, которое пользуется вы
пример, варочных панелей и газовых плит.
тяжными трубами (например, отопитель
ные системы, проточные водонагреватели
Если вытяжка используется в режиме цир
или котлы, которые работают на газе, жид
куляции воздуха с угольным фильтром, экс
ком или твердом топливе), необходимо
плуатация возможна без какихлибо ограни
обеспечить подачу воздуха в объеме,
чений.
достаточном для сгорания топлива.
По соображениям безопасности требуется,
чтобы в помещении, где установлено отопи
тельное или нагревательное оборудование
с открытым огнем, давление воздуха по
сравнению с атмосферным было понижено
не более чем на 4 Па (0,04 мбар).
Информация для предварительного ознакомления. Официальной информацией изготовителя не является.
7

Перед монтажом
Оптимальная эффективность вытяжки
Подсоединение к вытяжной трубе
обеспечивается при выполнении
диаметром 150 мм:
следующих условий:
Установите вытяжную трубу непосред
Использование коротких и гладких вы
ственно в выходном отверстии вытяжки.
тяжных труб без изгибов.
Использование минимального количе
Подсоединение к вытяжной трубе
ства колен.
диаметром 120 мм:
Использование труб с насколько возмож
Вставьте переходник для сужения кана
но большими внутренними диаметрами,
ла в выходное отверстие вытяжки и при
а также использование колен труб с боль
соедините к нему вытяжную трубу.
шим радиусом.
Использование длинных, неровных
вытяжных труб, большого количества
колен или труб с малым внутренним
диаметром ведет к снижению эффек
тивности работы вытяжки и, одновре
менно, к повышению уровня шумов.
Круглые трубы:
Мы рекомендуем внутренний диаметр:
150 мм (минимальный внутренний диа
метр 120 мм).
Трубы прямоугольного сечения долж
ны иметь площадь внутреннего сече
ния, равную площади внутреннего сече
ния соответствующих круглых труб.
Они не должны иметь резких изгибов.
В случае труб с внутренним диаметром
120 мм площадь внутреннего сечения со
2
ставляет примерно 113 см
.
Режим циркуляции воздуха
В случае труб с внутренним диаметром
Применяется,
150 мм площадь внутреннего сечения со
если нет воз
ставляет примерно 177 см
2
.
можности ис
Если трубы имеют различные диа
пользовать
метры: используйте герметизирующую
режим отвода
ленту.
воздуха. При
В случае эксплуатации вытяжки в режи
этом исполь
ме отвода воздуха обеспечивайте дос
зуется уголь
таточное поступление свежего воздуха.
ный фильтр.
8
Информация для предварительного ознакомления. Официальной информацией изготовителя не является.

Перед монтажом
Электрическое подключение
Вытяжку следует подключать только к за
земленной розетке, установленной в соот
ветствии с действующими правилами.
По возможности розетку с контактом зазем
ления следует располагать непосредствен
но за обшивкой вытяжной трубы.
Электрические характеристики:
Их можно найти на табличке с техническими
характеристиками внутри вытяжки, после
снятия рамки фильтра.
В случае ремонта всегда отсоединяй
те вытяжку от электрической сети.
Длина соединительного кабеля: 1,30 м.
В случае необходимости фиксирован
ного подключения вытяжки к сети:
Полный комплект для монтажа можно
Вытяжка должна подключаться к сети элек
приобрести в специализированном мага
тропитания только квалифицированным
зине. Соответствующие номера принад
электриком.
лежностей можно найти в инструкции по эк
сплуатации.
Со стороны сети электропитания должно
быть установлено размыкающее устрой
ство. В качестве размыкающего устройства
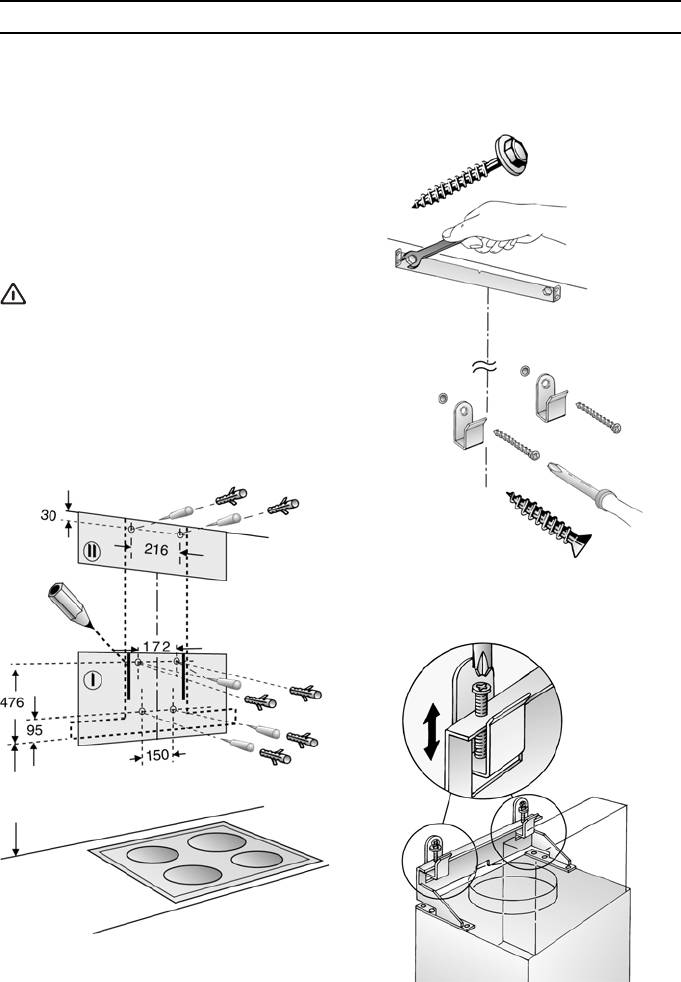
Подготовка стены
следует использовать переключатель с ми
Стена должна быть ровной и вертикаль
нимальным расстоянием между контактами
ной.
3 мм. К числу таких переключателей относят
ся автоматические выключатели или контак
Для прочного крепления используйте
торы.
дюбели.
Если соединительный кабель вытяжки
поврежден, для предотвращения серьезных
травм пользователя его замену должны осу
Вес в кг:
ществлять изготовитель, служба сервиса
или квалифицированный специалист.
Режим Режим
отвода циркуляции
Данная вытяжка соответствует требованиям
воздуха воздуха
правил Европейского Сообщества по подав
лению радиопомех.
60 см 19,5 20,0
90 см 22,0 22,5
Мы сохраняем за собой право на изменение кон
струкции в связи с техническими усовершенство
ваниями.
Информация для предварительного ознакомления. Официальной информацией изготовителя не является.
9

Монтаж
Данная вытяжка предназначена для монта
Примечание. Если предполагается уста
жа на стене кухни.
навливать какиелибо специальные принад
лежности, это следует учесть.
1. Снимите жиропоглощающий фильтр (см.
инструкцию по эксплуатации).
5. Привинтите один уголок вверху и два
внизу.
2. Начертите линию на стене от потолка до
нижнего края вытяжки в центре того мес
та, в котором предполагается установить
вытяжку.
3. Используйте шаблон для маркировки на
стене точек, в которых будут установле
ны шурупы. Чтобы облегчить подвешива
ние вытяжки, начертите контур той зоны,
где будет крепиться вытяжка.
Обеспечьте минимальное расстояние
между варочной панелью и вытяжкой
550 мм – для электрической варочной па
нели и 650 мм – для газовой варочной па
нели. Нижний край шаблона располагается
на уровне нижнего края вытяжки.
4. Просверлите 4 отверстия ∅ 8 мм для вы
тяжки и 2 отверстия ∅ 8 мм для обшивки.
Вставьте дюбели в отверстия таким об
разом, чтобы они были заподлицо со сте
ной.
6. Подвесьте вытяжку. Выровняйте ее по
высоте и по горизонтали с помощью ре
гулировочных винтов.
мин. 550 до электроплиты
мин. 650 до газовой плиты
10
Информация для предварительного ознакомления. Официальной информацией изготовителя не является.

Монтаж
7. Ввинтите два нижних винта с шестигран
11.Снимите защитную пленку с обеих сек
ной головкой.
ций обшивки вытяжной трубы.
8. Наклейте защитную пленку на отверстия
для двух нижних крепежных шурупов в за
Старайтесь избежать повреждений
щитной решетке.
чувствительных поверхностей.
12. Соедините обе секции обшивки вытяж
ной трубы (разрезы в верхней секции
должны быть направлены вниз) и вставь
те их в отверстие в вытяжке.
При вставлении секций одну в дру
гую старайтесь их не поцарапать, для
чего, например, установите в качестве
защиты монтажные шаблоны по кра
ям нижней секции обшивки вытяжной
трубы.
9. Подсоедините трубу для вывода воздуха.
10.Подключите вытяжку к электропитанию.
13. Выдвиньте верхнюю секцию обшивки и
прикрепите ее с боковых сторон двумя
винтами к монтажным скобам.
14. Установите на место жиропоглощающий
фильтр (см. инструкцию по эксплуата
ции).
Информация для предварительного ознакомления. Официальной информацией изготовителя не является.
11

Рис. 1
ГАЗОВАЯ
ЭЛЕКТРО
ПЛИТА
ПЛИТА
не менее 650 мм
не менее 550 мм
12
Информация для предварительного ознакомления. Официальной информацией изготовителя не является.

LZ 51850
360732
Изготовитель не исключает возможности распространения данной инструкции также на новые модели
продукции, которые будут выведены на рынок после изготовления тиража этой инструкции по эксплу!
атации при условии, что новые модели продукции будут идентичны актуальным с точки зрения особен!
ностей их эксплуатации.
Право на внесение изменений изготовитель оставляет за собой.
Информация для предварительного ознакомления. Официальной информацией изготовителя не является.
13






