Karcher WPC 5000 BW: инструкция
Характеристики, спецификации
Инструкция к Водяному Насосу Karcher WPC 5000 BW

WPC 2500 BW-AM
WPC 5000 BW-AM
WPC 10000 BW-AM
Deutsch 3
English 13
Français 23
Italiano 34
Nederlands 45
Español 55
Ελληνικά 65
Türkçe 77
Руccкий 87
5.961-930 05/07

Lesen Sie vor der ersten Be-
Bedienelemente Sicherheitshinweise
nutzung Ihres Gerätes diese
Betriebsanleitung und handeln Sie da-
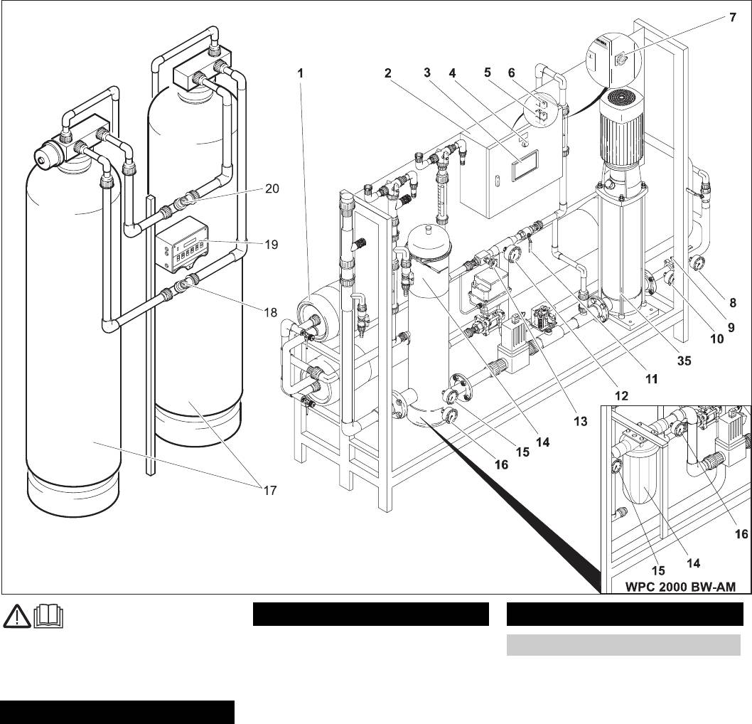
1 RO-Filtereinheit
Allgemein
nach. Bewahren Sie diese Betriebsanlei-
2 Schaltschrank
tung für späteren Gebrauch oder für
3 Bedienfeld
Trinkwasser
Nachbesitzer auf.
4 Betriebsartschalter
– Trinkwasserqualität ist nur bei fristge-
5 Steckdosen für Dosierstationen (4x)
rechter Überwachung der Anlage ge-
Inhaltsverzeichnis
6 Steckdosen Media- und Aktivkohlefil-
währleistet. Bitte die in dieser
Bedienelemente 3
ter
Betriebsanleitung angegebenen Kon-
Sicherheitshinweise 3
trollen termingerecht ausführen.
7 Hauptschalter
– Trinkwasserqualität in regelmäßigen
Bestimmungsgemäße Verwendung 4
8 Manometer Eingangsdruck RO-Filter-
Abständen prüfen lassen.
Umweltschutz 4
einheit
– Trinkwasserverordnung beachten.
9 Pumpenregelventil
Inbetriebnahme 4
10 Manometer Pumpendruck
Chemikalien
Betrieb 4
11 Druckregelventil
– Beim Umgang mit Chemikalien säure-
Wartung und Pflege 4
12 Manometer Konzentratdruck
beständige Schutzhandschuhe und
Verbrauchsmaterial 7
Schutzbrille tragen.
13 Konzentratregelventil
Störungen 8
– Chemikalien kühl, trocken und bei
14 Feinfilter
Technische Daten 9
Temperaturen über 5°C lagern.
15 Manometer Eingangsdruck Feinfilter
CE-Erklärung 9
– Chemikalien für Kinder unzugänglich
16 Manometer Ausgangsdruck Feinfilter
aufbewahren.
Garantie 9
17 Mediafilter/Aktivkohlefilter
– Beim Umgang mit Chemikalien für
Ersatzteile 9
18 Manometer Eingangsdruck
gute Durchlüftung des Raumes sor-
19 Steuerung Mediafilter/Aktivkohlefilter
gen.
20 Manometer Ausgangsdruck
– In der Nähe muss sich eine Waschge-
legenheit befinden.
– Augenwaschflasche bereithalten.
Deutsch 3

– Sicherheitshinweise auf dem EG-Da-
eine Konservierung durch den Kärcher
Inbetriebnahme
tenblatt sowie Unfallmerkblatt der be-
Kundendienst durchgeführt werden.
treffenden Chemikalien beachten.
Gefahr
Î Hauptschalter auf „0“ drehen, die An-
lage stoppt die Trinkwasserprodukti-
Elektrische Anlage
Verletzungsgefahr durch unsachgemäß
on.
– Der elektrische Anschluss muss von
installierte Anlage. Gesundheitsgefahr
einem Elektroinstallateur ausgeführt
durch schlecht aufbereitetes Trinkwasser.
Hinweis
werden und IEC 60364-1 entspre-
Die Anlage darf nur in Betrieb genommen
Anlage nicht über Nacht abschalten!
chen.
werden, wenn sie durch geschultes, auto-
Nachts wird die automatische Reinigung
– Beschädigte oder durchtrennte Netz-
risiertes Personal aufgebaut, installiert
des Mediafilters durchgeführt. Beim Un-
kabel niemals berühren. Gegebenen-
und für den Betrieb vorbereitet wurde.
terbleiben dieser Reinigung besteht die
falls sofort den Netzstecker ziehen.
Gefahr von Schäden an der Anlage.
Vor Inbetriebnahme
– Anlage niemals mit beschädigtem
Wartung und Pflege
Î Verbindung der Anlage mit der Roh-
Netzkabel betreiben.
wasserquelle prüfen.
Gefahr
Symbole
Î Ungehinderten Ablauf des erzeugten
Gesundheitsgefahr durch schlechte Trink-
In dieser Betriebsanleitung werden fol-
Trinkwasser in einen Tank oder eine
wasserqualität. Zur Sicherstellung der
gende Symbole verwendet:
geeignete nutzerseitige Einrichtung si-
Trinkwasserqualität müssen die Kontrol-
cherstellen.
Gefahr
len im folgenden Wartungsplan fristge-
Hinweis
Kennzeichnet eine unmittelbar drohende
recht ausgeführt werden. Lassen sich
Gefahr. Bei Nichtbeachten des Hinweises
Das Trinkwasser muss ohne Gegendruck
Abweichungen vom Sollzustand nicht
drohen Tod oder schwerste Verletzungen.
abließen können. Die Höhendifferenz darf
durch die angegebenen Maßnahmen be-
3 m nicht übersteigen.
heben, muss die Trinkwasserproduktion
몇 Warnung
gestoppt und der Kärcher Kundendienst
Kennzeichnet eine möglicherweise ge-
Dosierstation befüllen
verständigt werden.
fährliche Situation. Bei Nichtbeachten des
Hinweis
Hinweises können leichte Verletzungen
Ist die Anlage mit einer oder mehreren
oder Sachschäden eintreten.
Dosierstationen ausgestattet, muss si-
Hinweis
chergestellt sein, dass diese korrekt an-
Kennzeichnet Anwendungstipps und
geschlossen und befüllt sind.
wichtige Informationen zum Produkt.
Î Dosierstation befüllen (siehe Kapitel
„Wartung und Pflege/Wartungsarbei-
Bestimmungsgemäße Ver-
ten“)
wendung
Betrieb
Die Anlage wird zur Aufbereitung von
Oberflächenwasser, Brunnenwasser und
Anlage einschalten
Flusswasser eingesetzt.
Durch den modularen Aufbau können in
Î Prüfen, ob die Netztecker der Dosier-
Abhängigkeit von der Rohwasserqualität
pumpen der Dosierstationen mit den
Trübstoffe, Härtebildner, Salze, Bakterien
Steckdosen an der Anlage verbunden
und Viren abgetrennt werden.
sind.
Î Stellung des Betriebsartschalters kon-
Umweltschutz
trollieren:
Stellung „Automatik“: die Anlage
Die Verpackungsmaterialien
wird von einem externen Schwimmer-
sind recyclebar. Bitte werfen
schalter im Trinkwassertank gesteu-
Sie die Verpackungen nicht in
ert.
den Hausmüll, sondern führen
Stellung „Hand“: die Anlage wird
Sie diese einer Wiederverwer-
manuell über den Hauptschalter
tung zu.
ein- und ausgeschaltet.
Î Hauptschalter in Stellung „1“ drehen,
Altgeräte enthalten wertvolle re-
die Trinkwasserproduktion startet.
cyclingfähige Materialien, die
einer Verwertung zugeführt
Überwachungselemente
werden sollten. Batterien, Öl
und ähnliche Stoffe dürfen nicht
Display Media- und Aktivkohlefilter
in die Umwelt gelangen. Bitte
– Anzeige der Uhrzeit
entsorgen Sie Altgeräte des-
Display des Bedienfeldes
halb über geeignete Sammel-
Abwechselnde Anzeige von:
systeme.
– Anlagen-/Versionsnummer und Be-
triebszustand.
– Trinkwassertemperatur und Leitwert.
– Betriebsstunden (_ _ _ _ _h_ _min).
Anlage ausschalten
몇 Warnung
Beschädigungsgefahr. Wird die Anlage
länger als 14 Tage ausgeschaltet, muss
4 Deutsch

Wartungsplan
Zeit-
Kontrolle/Tätigkeit Soll Bei Abweichung
punkt
täglich Füllstand Dosierbehälter ausreichende Befüllung auffüllen
Luftblasen in den Dosierleitungen keine Luftblasen Dosierpumpe entlüften
Trinkwasserfluss ausgehend vom Inbetrieb-
Absinken innerhalb 10% Feinregulierung
nahmewert
Trinkwasserleitwert ausgehend vom Inbe-
Anstieg innerhalb 10% Feinregulierung
triebnahmewert
Druckdifferenz Pumpen- und Konzentrat-
maximal 15% über Inbetriebnahmedifferenz Kärcher Kundendienst
druck
Betriebszähler Media- und Aktivkohlefilter Rückspülung hat innerhalb der letzten 24
Kärcher Kundendienst
Stunden stattgefunden
Druckunterschied Feinfilter maximal 0,08 MPa (0,8 bar) Feinfilter wechseln
Sichtkontrolle der Anlage keine Undichtigkeiten Kärcher Kundendienst
wöchent-
Betriebsprotokoll ausfüllen
lich
monatlich Dosierbehälter reinigen und spülen
Rohwasserpumpe sichtprüfen keine Beschädigungen/Undichtigkeiten er-
Kärcher Kundendienst
kennbar
Schwimmerschalter im Trinkwassertank keine Funktionsstörung erkennbar Kärcher Kundendienst
Wird die Taste ADVANCE einige Zeit
Î Dosierfrequenz durch wiederholtes
Wartungsarbeiten
nicht mehr betätigt, springt das Display
Drücken des Tasters Dosierfrequenz
Media- und Aktivkohlefilter ablesen
auf die Anzeige der Uhrzeit zurück.
auf 100% einstellen und warten bis
keine Blasen mehr in der Saugleitung
Dosierpumpe entlüften
sind (ca. 1 Minute). Austretende Do-
sierflüssigkeit mit einem Lappen auf-
Die Dosierpumpe muss entlüftet werden,
nehmen.
falls die Pumpe Luft angesaugt hat (z.B.
weil der Dosierbehälter vollständig ent-
Î Verschraubung festziehen.
leert ist).
Î Dosierpumpe wieder auf ursprüngli-
– Die Anlage stoppt, im Display wird die
che Dosierfrequenz einstellen.
Störung „Motorschutz“ angezeigt.
Hinweis
Diese Fehlermeldung wird angezeigt, un-
1Display
abhängig davon welcher Dosierbehälter
2 Taste ADVANCE
leer ist.
Während des Betriebes wird die aktuelle
Uhrzeit im Display angezeigt.
Î Taste ADVANCE 5 bis 6 Sekunden
lang drücken. Im Display erscheint die
Anzeige erste Zustandsanzeige aus
1 Taste Return
der unten stehenden Liste.
Î Zum Weiterschalten auf die nächste
Î Störungsmeldung am Bedienfeld mit
Anzeige, Taste ADVANCE jeweils
der Taste Return quittieren, die Anla-
kurz drücken.
ge startet.
1 Taster Dosierfrequenz
Display Bedeutung
Feinfilter wechseln
2 Verschraubung
Î Druckdifferenz der beiden Manometer
2000 ohne Bedeutung
3 Dosierpumpe
prüfen. Bei mehr als 0,08 MPa
0000 ohne Bedeutung
(0,8 bar) Filtereinsatz wechseln:
Î Dosierstation befüllen (siehe Kapitel
Î Hauptschalter in Stellung „0“ drehen.
D–07 Verbleibende Tage bis zur
Inbetriebnahme).
Î Rohwasserzufuhr unterbrechen.
nächsten Rückspülung
Î Verschraubung an der Dosierpumpe
Î Rohwasser-Probenhahn öffnen um
lockern.
–001 Anzahl der ausgeführten
den Filter drucklos zu machen.
Î Eingestellte Dosierfrequenz an den
Rückspülungen
LEDs auf der Dosierpumpe ablesen
0–01 Tage–Stunden seit der
und merken.
letzten Rückspülung
Deutsch 5

WPC 2500 BW-AM:
Î Neue Filterkerzen einsetzen.
Î Konzentratregelventil langsam im Uhr-
Î Federkappen auf Filterkerzen setzen.
zeigersinn schließen, bis an den bei-
Î Schraubplatte aufschrauben.
den Durchflussmessern für
Konzentrat und Trinkwasser der jewei-
Î Deckel aufsetzen und Klemmring be-
lige Sollwert erreicht ist.
festigen.
Î Gegebenenfalls an beiden Ventilen
Î Rohwasser-Probenhahn schließen.
eine Nachjustierung durchführen.
Î Rohwasserzufuhr wiederherstellen.
Hinweis
Î Hauptschalter auf „1“ drehen.
Führt die Feinregulierung zu keiner Erhö-
Feinregulierung der Betriebsdrücke
hung des Trinkwasserflusses, ist der
몇 Warnung
Kärcher Kundendienst zu verständigen.
Beschädigungsgefahr für die Anlage. Bei
Veränderungen der Anlageneinstellungen
(2) Leitfähigkeit des Trinkwassers von
dürfen folgende Werte nicht überschritten
_____µS/cm auf _____µS/cm gestiegen
werden:
Hinweis
1 Filterschlüssel
– Pumpendruck maximal 2,1 MPa
Kleine Erhöhungen der Trinkwasserleitfä-
(21 bar)
2 Filtergehäuse
higkeit beeinträchtigen die Trinkwasser-
– Trinkwassermenge maximal:
3 Filtertasse
qualität nicht.
4Filtereinsatz
WPC 2500 BW-AM 2500 l/h
WPC 5000 BW-AM 5000 l/h
Î Filtertasse mit dem Filterschlüssel lö-
sen und abschrauben.
WPC 10000 BW-AM 10000 l/h
Î Filtereinsatz herausnehmen.
– Konzentratmenge darf den Wert der
Î Filtergehäuse und Filtertasse reinigen.
Inbetriebnahme nicht unterschreiten
Î Neuen Filtereinsatz in Filtertasse ein-
– Einstellung des Pumpenregelventils
setzen.
nicht verändern.
Î Filtertasse montieren und festziehen.
Hinweis
Î Rohwasser-Probenhahn schließen.
Die Anlage reagiert zeitverzögert auf Än-
Î Rohwasserzufuhr wiederherstellen.
derungen an den Regelventilen. Deshalb
1 Durchflussmesser Trinkwasser
Î Hauptschalter auf „1“ drehen.
die Einstellung am Druckregelventil und
2 Konzentratregelventil
am Konzentratregelventil nur in kleinen
3 Druckregelventil
WPC 5000/10000 BW-AM:
Schritten durchführen und die jeweilige
4 Display
Auswirkung abwarten.
5 Manometer Membraneingangsdruck
Î Aktuellen Leitwert im Display des Be-
(1) Trinkwasserfluss von _____ l/h auf
dienfeldes ablesen und mit dem Wert
_____ l/h gesunken
bei Inbetriebnahme vergleichen (siehe
Inbetriebnahmeprotokoll. Ist der Trink-
wasserleitwert auf _____µS/cm ge-
stiegen, muss die Membrane der RO-
Filtereinheit gespült werden:
Î Konzentratregelventil in kleinen
Schritten gegen den Uhrzeigersinn
öffnen, bis die Leitfähigkeit den Soll-
wert erreicht hat.
Î Druckregelventil in kleinen Schritten
1 Manometer
im Uhrzeigersinn schließen, bis der
2 Manometer
Durchflussmesser Trinkwasser den
1 Durchflussmesser Trinkwasser
Sollwert erreicht.
3 Rohwasser-Probenhahn
2 Durchflussmesser Konzentrat
4 Deckel
몇 Warnung
3 Konzentratregelventil
5 Klemmring
Beschädigungsgefahr für die RO-Memb-
4 Druckregelventil
6 Schraubplatte
rane. Beim Schließen des Druckregelven-
5 Durchflussmesser Konzentratrückfüh-
tils darauf achten, dass der
7 Federkappe
rung
Membraneingangsdruck 2,1 MPa (21 bar)
8Filterkerze
nicht überschreitet.
9 Filtergehäuse
Î Trinkwassermenge am Durchfluss-
Hinweis
messer Trinkwasser ablesen und mit
A WPC 5000 BW-AM
Die Erhöhung der Konzentratmenge bei
dem Wert bei Inbetriebnahme verglei-
dieserm Einstellvorgang ist beabsichtigt.
B WPC 10000 BW-AM
chen (siehe Inbetriebnahmeprotokoll).
Î Einstellschritte gegebenenfalls wie-
Ist der Trinkwasserfluss auf _____l/h
derholen. Eventuell wird die ursprüng-
Î Klemmring lösen.
gesunken, nachstehende Feinregulie-
liche Trinkwassermenge nicht mehr
Î Deckel abnehmen.
rung durchführen:
ganz erreicht.
Î Schraubplatte abschrauben.
Î Druckregelventil langsam im Uhrzei-
Î Federkappen abnehmen.
gersinn schließen, bis am Durchfluss-
messer Konzentratrücklauf die
Î Filterkerzen entnehmen.
Sollmenge fast erreicht ist.
Î Filtergehäuse reinigen.
6 Deutsch
Оглавление
- Bedienelemente Sicherheitshinweise
- Inbetriebnahme
- Verbrauchsmaterial
- Störungen
- Technische Daten
- Rückseite. Bleibt leer, damit das Blatt herausgetrennt werden kann
- Control elements Safety instructions
- Maintenance and care
- Consumables
- Faults
- Technical specifications
- Rear side. Is kept blank so that the sheet can be separated
- Eléments de commande
- Consignes de sécurité Utilisation conforme Fonctionnement
- Matériel de consommation
- Caractéristiques techniques
- Déclaration CE Garantie
- Verso. Reste vide, afin que la feuille peut être retirer.
- Dispositivi di comando Norme di sicurezza
- Messa in funzione
- Materiale di consumo
- Dati tecnici
- Dichiarazione CE Garanzia
- Tergo. Resta vuoto in modo da poter separare il foglio
- Bedieningselementen Veiligheidsinstructies
- Inbedrijfstelling
- Verbruiksmateriaal
- Storingen
- Technische gegevens
- Achterkant. Blijft leeg zodat de pagina eruit gehaald kan worden
- Elementos de mando Indicaciones de seguridad
- Puesta en marcha
- Material de uso
- Averías
- Datos técnicos
- Parte posterior. En blanco para separar la hoja
- Στοιχεία χειρισμού Υποδείξεις ασφαλείας
- Έναρξη λειτουργίας
- Αναλώσιμα υλικά
- Βλάβες
- Τεχνικά χαρακτηριστικά
- Δήλωση συμμόρφωσης CE Εγγύηση
- Οπισθόφυλλο Παραμένει κενό για να αποκοπεί το φύλλο
- Kumanda elemanları Güvenlik uyarıları
- İşletime alma
- Tüketim malzemesi
- Arızalar
- Teknik Bilgiler
- Arka sayfa. Sayfanın ayrılabilmesi için boş kalır
- Элементы управления
- Защита окружающей
- Расходный материал
- Неполадки
- Технические данные
- Заявление о соответствии
- Оборотная сторона.ь Остается пустой, чтобы можно было отделить лист





