Karcher WPC 10000 BW: инструкция

Раздел: Оборудование для загородных домов и сада

Тип: Водяной Насос

Характеристики, спецификации

2:
-
3800:
x

Инструкция к Водяному Насосу Karcher WPC 10000 BW

WPC 2500 BW-AM

WPC 5000 BW-AM

WPC 10000 BW-AM

Deutsch 3

English 13

Français 23

Italiano 34

Nederlands 45

Español 55

Ελληνικά 65

Türkçe 77

Руccкий 87

5.961-930 05/07

Lesen Sie vor der ersten Be-

Bedienelemente Sicherheitshinweise

nutzung Ihres Gerätes diese

Betriebsanleitung und handeln Sie da-

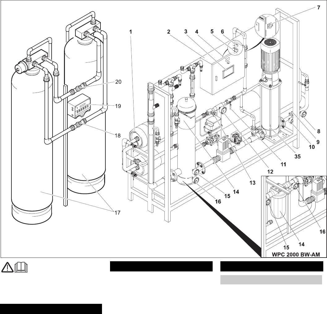
1 RO-Filtereinheit

Allgemein

nach. Bewahren Sie diese Betriebsanlei-

2 Schaltschrank

tung für späteren Gebrauch oder für

3 Bedienfeld

Trinkwasser

Nachbesitzer auf.

4 Betriebsartschalter

Trinkwasserqualität ist nur bei fristge-

5 Steckdosen für Dosierstationen (4x)

rechter Überwachung der Anlage ge-

Inhaltsverzeichnis

6 Steckdosen Media- und Aktivkohlefil-

währleistet. Bitte die in dieser

Bedienelemente 3

ter

Betriebsanleitung angegebenen Kon-

Sicherheitshinweise 3

trollen termingerecht ausführen.

7 Hauptschalter

Trinkwasserqualität in regelmäßigen

Bestimmungsgemäße Verwendung 4

8 Manometer Eingangsdruck RO-Filter-

Abständen prüfen lassen.

Umweltschutz 4

einheit

Trinkwasserverordnung beachten.

9 Pumpenregelventil

Inbetriebnahme 4

10 Manometer Pumpendruck

Chemikalien

Betrieb 4

11 Druckregelventil

Beim Umgang mit Chemikalien säure-

Wartung und Pflege 4

12 Manometer Konzentratdruck

beständige Schutzhandschuhe und

Verbrauchsmaterial 7

Schutzbrille tragen.

13 Konzentratregelventil

Störungen 8

Chemikalien kühl, trocken und bei

14 Feinfilter

Technische Daten 9

Temperaturen über 5°C lagern.

15 Manometer Eingangsdruck Feinfilter

CE-Erklärung 9

Chemikalien für Kinder unzugänglich

16 Manometer Ausgangsdruck Feinfilter

aufbewahren.

Garantie 9

17 Mediafilter/Aktivkohlefilter

Beim Umgang mit Chemikalien für

Ersatzteile 9

18 Manometer Eingangsdruck

gute Durchlüftung des Raumes sor-

19 Steuerung Mediafilter/Aktivkohlefilter

gen.

20 Manometer Ausgangsdruck

In der Nähe muss sich eine Waschge-

legenheit befinden.

Augenwaschflasche bereithalten.

Deutsch 3

Sicherheitshinweise auf dem EG-Da-

eine Konservierung durch den Kärcher

Inbetriebnahme

tenblatt sowie Unfallmerkblatt der be-

Kundendienst durchgeführt werden.

treffenden Chemikalien beachten.

Gefahr

Î Hauptschalter auf „0“ drehen, die An-

lage stoppt die Trinkwasserprodukti-

Elektrische Anlage

Verletzungsgefahr durch unsachgemäß

on.

Der elektrische Anschluss muss von

installierte Anlage. Gesundheitsgefahr

einem Elektroinstallateur ausgeführt

durch schlecht aufbereitetes Trinkwasser.

Hinweis

werden und IEC 60364-1 entspre-

Die Anlage darf nur in Betrieb genommen

Anlage nicht über Nacht abschalten!

chen.

werden, wenn sie durch geschultes, auto-

Nachts wird die automatische Reinigung

Beschädigte oder durchtrennte Netz-

risiertes Personal aufgebaut, installiert

des Mediafilters durchgeführt. Beim Un-

kabel niemals berühren. Gegebenen-

und für den Betrieb vorbereitet wurde.

terbleiben dieser Reinigung besteht die

falls sofort den Netzstecker ziehen.

Gefahr von Schäden an der Anlage.

Vor Inbetriebnahme

Anlage niemals mit beschädigtem

Wartung und Pflege

Î Verbindung der Anlage mit der Roh-

Netzkabel betreiben.

wasserquelle prüfen.

Gefahr

Symbole

Î Ungehinderten Ablauf des erzeugten

Gesundheitsgefahr durch schlechte Trink-

In dieser Betriebsanleitung werden fol-

Trinkwasser in einen Tank oder eine

wasserqualität. Zur Sicherstellung der

gende Symbole verwendet:

geeignete nutzerseitige Einrichtung si-

Trinkwasserqualität müssen die Kontrol-

cherstellen.

Gefahr

len im folgenden Wartungsplan fristge-

Hinweis

Kennzeichnet eine unmittelbar drohende

recht ausgeführt werden. Lassen sich

Gefahr. Bei Nichtbeachten des Hinweises

Das Trinkwasser muss ohne Gegendruck

Abweichungen vom Sollzustand nicht

drohen Tod oder schwerste Verletzungen.

abließen können. Die Höhendifferenz darf

durch die angegebenen Maßnahmen be-

3 m nicht übersteigen.

heben, muss die Trinkwasserproduktion

Warnung

gestoppt und der Kärcher Kundendienst

Kennzeichnet eine möglicherweise ge-

Dosierstation befüllen

verständigt werden.

fährliche Situation. Bei Nichtbeachten des

Hinweis

Hinweises können leichte Verletzungen

Ist die Anlage mit einer oder mehreren

oder Sachschäden eintreten.

Dosierstationen ausgestattet, muss si-

Hinweis

chergestellt sein, dass diese korrekt an-

Kennzeichnet Anwendungstipps und

geschlossen und befüllt sind.

wichtige Informationen zum Produkt.

Î Dosierstation befüllen (siehe Kapitel

„Wartung und Pflege/Wartungsarbei-

Bestimmungsgemäße Ver-

ten“)

wendung

Betrieb

Die Anlage wird zur Aufbereitung von

Oberflächenwasser, Brunnenwasser und

Anlage einschalten

Flusswasser eingesetzt.

Durch den modularen Aufbau können in

Î Prüfen, ob die Netztecker der Dosier-

Abhängigkeit von der Rohwasserqualität

pumpen der Dosierstationen mit den

Trübstoffe, Härtebildner, Salze, Bakterien

Steckdosen an der Anlage verbunden

und Viren abgetrennt werden.

sind.

Î Stellung des Betriebsartschalters kon-

Umweltschutz

trollieren:

Stellung „Automatik“: die Anlage

Die Verpackungsmaterialien

wird von einem externen Schwimmer-

sind recyclebar. Bitte werfen

schalter im Trinkwassertank gesteu-

Sie die Verpackungen nicht in

ert.

den Hausmüll, sondern führen

Stellung „Hand“: die Anlage wird

Sie diese einer Wiederverwer-

manuell über den Hauptschalter

tung zu.

ein- und ausgeschaltet.

Î Hauptschalter in Stellung „1“ drehen,

Altgeräte enthalten wertvolle re-

die Trinkwasserproduktion startet.

cyclingfähige Materialien, die

einer Verwertung zugeführt

Überwachungselemente

werden sollten. Batterien, Öl

und ähnliche Stoffe dürfen nicht

Display Media- und Aktivkohlefilter

in die Umwelt gelangen. Bitte

Anzeige der Uhrzeit

entsorgen Sie Altgeräte des-

Display des Bedienfeldes

halb über geeignete Sammel-

Abwechselnde Anzeige von:

systeme.

Anlagen-/Versionsnummer und Be-

triebszustand.

Trinkwassertemperatur und Leitwert.

Betriebsstunden (_ _ _ _ _h_ _min).

Anlage ausschalten

Warnung

Beschädigungsgefahr. Wird die Anlage

länger als 14 Tage ausgeschaltet, muss

4 Deutsch

Wartungsplan

Zeit-

Kontrolle/Tätigkeit Soll Bei Abweichung

punkt

täglich Füllstand Dosierbehälter ausreichende Befüllung auffüllen

Luftblasen in den Dosierleitungen keine Luftblasen Dosierpumpe entlüften

Trinkwasserfluss ausgehend vom Inbetrieb-

Absinken innerhalb 10% Feinregulierung

nahmewert

Trinkwasserleitwert ausgehend vom Inbe-

Anstieg innerhalb 10% Feinregulierung

triebnahmewert

Druckdifferenz Pumpen- und Konzentrat-

maximal 15% über Inbetriebnahmedifferenz Kärcher Kundendienst

druck

Betriebszähler Media- und Aktivkohlefilter Rückspülung hat innerhalb der letzten 24

Kärcher Kundendienst

Stunden stattgefunden

Druckunterschied Feinfilter maximal 0,08 MPa (0,8 bar) Feinfilter wechseln

Sichtkontrolle der Anlage keine Undichtigkeiten Kärcher Kundendienst

wöchent-

Betriebsprotokoll ausfüllen

lich

monatlich Dosierbehälter reinigen und spülen

Rohwasserpumpe sichtprüfen keine Beschädigungen/Undichtigkeiten er-

Kärcher Kundendienst

kennbar

Schwimmerschalter im Trinkwassertank keine Funktionsstörung erkennbar Kärcher Kundendienst

Wird die Taste ADVANCE einige Zeit

Î Dosierfrequenz durch wiederholtes

Wartungsarbeiten

nicht mehr betätigt, springt das Display

Drücken des Tasters Dosierfrequenz

Media- und Aktivkohlefilter ablesen

auf die Anzeige der Uhrzeit zurück.

auf 100% einstellen und warten bis

keine Blasen mehr in der Saugleitung

Dosierpumpe entlüften

sind (ca. 1 Minute). Austretende Do-

sierflüssigkeit mit einem Lappen auf-

Die Dosierpumpe muss entlüftet werden,

nehmen.

falls die Pumpe Luft angesaugt hat (z.B.

weil der Dosierbehälter vollständig ent-

Î Verschraubung festziehen.

leert ist).

Î Dosierpumpe wieder auf ursprüngli-

Die Anlage stoppt, im Display wird die

che Dosierfrequenz einstellen.

Störung „Motorschutz“ angezeigt.

Hinweis

Diese Fehlermeldung wird angezeigt, un-

1Display

abhängig davon welcher Dosierbehälter

2 Taste ADVANCE

leer ist.

Während des Betriebes wird die aktuelle

Uhrzeit im Display angezeigt.

Î Taste ADVANCE 5 bis 6 Sekunden

lang drücken. Im Display erscheint die

Anzeige erste Zustandsanzeige aus

1 Taste Return

der unten stehenden Liste.

Î Zum Weiterschalten auf die nächste

Î Störungsmeldung am Bedienfeld mit

Anzeige, Taste ADVANCE jeweils

der Taste Return quittieren, die Anla-

kurz drücken.

ge startet.

1 Taster Dosierfrequenz

Display Bedeutung

Feinfilter wechseln

2 Verschraubung

Î Druckdifferenz der beiden Manometer

2000 ohne Bedeutung

3 Dosierpumpe

prüfen. Bei mehr als 0,08 MPa

0000 ohne Bedeutung

(0,8 bar) Filtereinsatz wechseln:

Î Dosierstation befüllen (siehe Kapitel

Î Hauptschalter in Stellung „0“ drehen.

D–07 Verbleibende Tage bis zur

Inbetriebnahme).

Î Rohwasserzufuhr unterbrechen.

nächsten Rückspülung

Î Verschraubung an der Dosierpumpe

Î Rohwasser-Probenhahn öffnen um

lockern.

–001 Anzahl der ausgeführten

den Filter drucklos zu machen.

Î Eingestellte Dosierfrequenz an den

Rückspülungen

LEDs auf der Dosierpumpe ablesen

0–01 Tage–Stunden seit der

und merken.

letzten Rückspülung

Deutsch 5

WPC 2500 BW-AM:

Î Neue Filterkerzen einsetzen.

Î Konzentratregelventil langsam im Uhr-

Î Federkappen auf Filterkerzen setzen.

zeigersinn schließen, bis an den bei-

Î Schraubplatte aufschrauben.

den Durchflussmessern für

Konzentrat und Trinkwasser der jewei-

Î Deckel aufsetzen und Klemmring be-

lige Sollwert erreicht ist.

festigen.

Î Gegebenenfalls an beiden Ventilen

Î Rohwasser-Probenhahn schließen.

eine Nachjustierung durchführen.

Î Rohwasserzufuhr wiederherstellen.

Hinweis

Î Hauptschalter auf „1“ drehen.

Führt die Feinregulierung zu keiner Erhö-

Feinregulierung der Betriebsdrücke

hung des Trinkwasserflusses, ist der

Warnung

Kärcher Kundendienst zu verständigen.

Beschädigungsgefahr für die Anlage. Bei

Veränderungen der Anlageneinstellungen

(2) Leitfähigkeit des Trinkwassers von

dürfen folgende Werte nicht überschritten

_____µS/cm auf _____µS/cm gestiegen

werden:

Hinweis

1 Filterschlüssel

Pumpendruck maximal 2,1 MPa

Kleine Erhöhungen der Trinkwasserleitfä-

(21 bar)

2 Filtergehäuse

higkeit beeinträchtigen die Trinkwasser-

Trinkwassermenge maximal:

3 Filtertasse

qualität nicht.

4Filtereinsatz

WPC 2500 BW-AM 2500 l/h

WPC 5000 BW-AM 5000 l/h

Î Filtertasse mit dem Filterschlüssel lö-

sen und abschrauben.

WPC 10000 BW-AM 10000 l/h

Î Filtereinsatz herausnehmen.

Konzentratmenge darf den Wert der

Î Filtergehäuse und Filtertasse reinigen.

Inbetriebnahme nicht unterschreiten

Î Neuen Filtereinsatz in Filtertasse ein-

Einstellung des Pumpenregelventils

setzen.

nicht verändern.

Î Filtertasse montieren und festziehen.

Hinweis

Î Rohwasser-Probenhahn schließen.

Die Anlage reagiert zeitverzögert auf Än-

Î Rohwasserzufuhr wiederherstellen.

derungen an den Regelventilen. Deshalb

1 Durchflussmesser Trinkwasser

Î Hauptschalter auf „1“ drehen.

die Einstellung am Druckregelventil und

2 Konzentratregelventil

am Konzentratregelventil nur in kleinen

3 Druckregelventil

WPC 5000/10000 BW-AM:

Schritten durchführen und die jeweilige

4 Display

Auswirkung abwarten.

5 Manometer Membraneingangsdruck

Î Aktuellen Leitwert im Display des Be-

(1) Trinkwasserfluss von _____ l/h auf

dienfeldes ablesen und mit dem Wert

_____ l/h gesunken

bei Inbetriebnahme vergleichen (siehe

Inbetriebnahmeprotokoll. Ist der Trink-

wasserleitwert auf _____µS/cm ge-

stiegen, muss die Membrane der RO-

Filtereinheit gespült werden:

Î Konzentratregelventil in kleinen

Schritten gegen den Uhrzeigersinn

öffnen, bis die Leitfähigkeit den Soll-

wert erreicht hat.

Î Druckregelventil in kleinen Schritten

1 Manometer

im Uhrzeigersinn schließen, bis der

2 Manometer

Durchflussmesser Trinkwasser den

1 Durchflussmesser Trinkwasser

Sollwert erreicht.

3 Rohwasser-Probenhahn

2 Durchflussmesser Konzentrat

4 Deckel

Warnung

3 Konzentratregelventil

5 Klemmring

Beschädigungsgefahr für die RO-Memb-

4 Druckregelventil

6 Schraubplatte

rane. Beim Schließen des Druckregelven-

5 Durchflussmesser Konzentratrückfüh-

tils darauf achten, dass der

7 Federkappe

rung

Membraneingangsdruck 2,1 MPa (21 bar)

8Filterkerze

nicht überschreitet.

9 Filtergehäuse

Î Trinkwassermenge am Durchfluss-

Hinweis

messer Trinkwasser ablesen und mit

A WPC 5000 BW-AM

Die Erhöhung der Konzentratmenge bei

dem Wert bei Inbetriebnahme verglei-

dieserm Einstellvorgang ist beabsichtigt.

B WPC 10000 BW-AM

chen (siehe Inbetriebnahmeprotokoll).

Î Einstellschritte gegebenenfalls wie-

Ist der Trinkwasserfluss auf _____l/h

derholen. Eventuell wird die ursprüng-

Î Klemmring lösen.

gesunken, nachstehende Feinregulie-

liche Trinkwassermenge nicht mehr

Î Deckel abnehmen.

rung durchführen:

ganz erreicht.

Î Schraubplatte abschrauben.

Î Druckregelventil langsam im Uhrzei-

Î Federkappen abnehmen.

gersinn schließen, bis am Durchfluss-

messer Konzentratrücklauf die

Î Filterkerzen entnehmen.

Sollmenge fast erreicht ist.

Î Filtergehäuse reinigen.

6 Deutsch

Оглавление

Аннотации для Водяного Насоса Karcher WPC 10000 BW в формате PDF