Hotpoint-Ariston kio 633 t z: instruction
Manual for Hotpoint-Ariston kio 633 t z

KIO 633 T Z
Deutsch
DE
Bedienungsanleitung
KOCHFELD
Inhaltsverzeichnis
Bedienungsanleitung,1
ZUR BEACHTUNG,2
Beschreibung des Gerätes- Bedienfeld,7
Installation, 44
Inbetriebsetzung und Gebrauch,45
English
Vorsichtsmaßregeln und Hinweise, 50
GB
Reinigung und Pflege, 50
Operating Instructions
Technische Beschreibung der Modelle, 51
HOB
Italiano
Contents
IT
Operating Instructions,1
WARNING,2
Istruzioni per l’uso
Description of the appliance-Control Panel,7
PIANO COTTURA
Installation,12
Sommario
Start-up and use,14
Istruzioni per l’uso,1
Precautions and tips,18
ATTENZIONE,2
Care and maintenance,19
Descrizione dell’apparecchio- Pannello di controllo,7
Technical description of the models,19
Installazione, 52
Avvio e utilizzo,54
Français
Precauzioni e consigli,58
FR
Manutenzione e cura,59
Mode d’emploi Manutenção e cuidados
Descrizione tecnica dei modelli,59
Nederland
TABLE DE CUISSON
NL
Sommaire
Mode d’emploi,1
Gebruiksaanwijzing
ATTENTION,2
KOOKPLAAT
Description de l’appareil-Tableau de bord, 7
Inhoud
Installation,20
Gebruiksaanwijzing,1
Mise en marche et utilisation,22
PAS OP,2
Précautions et conseils, 26
Beschrijving van het apparaat-Bedieningspaneel,7
Nettoyage et entretien,27
Installatie, 60
Description technique des modèles,27
Starten en gebruik, 62
Voorzorgsmaatregelen en advies,66
Onderhoud en verzorging,67
Español
ES
Technische beschrijving van de modellen,67
Manual de instrucciones
Polski
PL
ENCIMERA
Sumario
Instrukcja obsługi
Manual de instrucciones,1
PŁYTA GRZEJNA
ATENCIÓN,2
Spis treści
Descripción del aparato-Panel de control,7
Instrukcja obsługi,1
Instalación,28
UWAGA,2
Puesta en funcionamiento y uso,30
Opis urządzenia-Panel sterowania,7
Precauciones y consejos,34
Instalacja,68
Mantenimiento y cuidados,35
Uruchomienie i użytkowanie,70
Descripción técnica de los modelos,35
Zalecenia i środki ostrożności,74
Konserwacja i utrzymanie,75
PT
Português
Opis Techniczny,75
Instruções para a utilização
RS
Русский
PLANO
Índice
Руководство по эксплуатации
Instruções para a utilização,1
ВАРОЧНАЯ ПАНЕЛЬ
ATENÇÃO,2
Содержание
Descrição do aparelho-Painel de comandos,7
Руководство по эксплуатации,1
ВНИМАНИЕ
Instalação, 36
,2
Описание изделия-Панель управления,7
Início e utilização, 38
Монтаж,76
Precauções e conselhos,42
Bарочная панель,78
Manutenção e cuidados,43
Предосторожности и рекомендации,82
Descrição técnica dos modelos,43
Техническое обслуживание и уход,83
Техническое обслуживание,84

English
Français
GB
FR
WARNING!
ATTENTION !
• ATTENTION : cet appareil ainsi que
ses parties accessibles deviennent très
chauds pendant leur fonctionnement.
• WARNING: The appliance and
• Il faut faire attention de ne pas toucher
its accessible parts become hot
les éléments chauffants.
during use.
•Ne laisser s’approcher les enfants de
• Care should be taken to avoid
moins de 8 ans à moins qu’ils ne soient
touching heating elements.
sous surveillance constante.
• Children less than 8 years of
• Le présent appareil peut être utilisé par
age shall be kept away unless
des enfants de plus de 8 ans et par des
continuously supervised.
personnes présentant des capacités
• This appliance can be used by
physiques, sensorielles ou mentales
children aged from 8 years and
réduites ou n’ayant pas l’expérience
above and persons with reduced
ou les connaissances nécessaires,
physical, sensory or mental
à condition qu’ils soient sous bonne
capabilities or lack of experience
surveillance ou qu’ils aient reçu les
and knowledge if they have been
instructions nécessaires pour une
given supervision or instruction
utilisation de l’appareil en toute sécurité
concerning use of the appliance
et à condition qu’ils se rendent compte
in a safe way and understand the
des dangers encourus. Les enfants ne
hazards involved. Children shall not
doivent pas jouer avec l’appareil. Les
play with the appliance. Cleaning
opérations de nettoyage et d’entretien
and user maintenance shall not
ne doivent pas être effectuées par des
be made by children without
enfants non surveillés.
supervision.
• ATTENTION : laisser un récipient de
• WARNING: Unattended cooking
cuisson contenant de l’huile ou de la
on a hob with fat or oil can be
graisse sur le foyer est dangereux et
dangerous and may result in fire.
risque d’entraîner un incendie
• NEVER try to extinguish a fire with
• Il ne faut JAMAIS essayer d’éteindre
water, but switch off the appliance
une flamme ou un incendie avec de
and then cover flame e.g. with a lid
l’eau ! Il faut éteindre l’appareil et
or a fire blanket.
couvrir la flamme avec un couvercle,
• WARNING: Danger of fire: do
par exemple, ou avec une couverture
not store items on the cooking
anti-feu.
surfaces.
• ATTENTION : risque d’incendie : ne
• WARNING: If the surface in glass-
pas laisser d’objets sur les surfaces de
ceramic is cracked, switch off the
cuisson.
appliance to avoid the possibility of
• ATTENTION : si la surface
electric shock.
vitrocéramique est fêlée, éteindre
•Never use steam cleaners
l’appareil afin d’éviter tout risque
or pressure cleaners on the
d’électrocution.
appliance.
• Ne jamais nettoyer l’appareil avec des
•The appliance is not intended to be
nettoyeurs vapeur ou haute pression.
operated by means of an external
•Cet appareil ne peut pas être allumé au
timer or separate remote control
moyen d’un temporisateur extérieur ou
system.
d’un système de commande à distance
•Do not place metal objects (knives,
séparé.
spoons, pan lids, etc.) on the hob as
•Ne pas poser d’objets métalliques
they may become hot.
(couteaux, cuillères, couvercles, etc.)
•After use, switch off the hob element
sur la table car ils risquent de devenir
by its control and do not rely on the
brûlants.
pan detector.
•Après utilisation, éteindre la table de
cuisson à l’aide de son dispositif de
commande et ne pas se fier uniquement
à son détecteur de casserole.
2

Español
Português
ES
PT
ATENCIÓN !
ATENÇÃO !
• ATENCIÓN: Este aparato y sus
• ATENÇÃO: Este aparelho e as
partes accesibles se calientan
suas partes acessíveis aquecem
mucho durante el uso.
GB
muito durante a utilização.
• Por lo tanto, es importante evitar
• É preciso ter atenção e evitar tocar
tocar los elementos calentadores.
os elementos que aquecem.
• Mantenga alejados a los niños
• Manter afastadas as crianças
menores de 8 años si no son
com menos de 8 anos, caso não
continuamente vigilados.
estejam a ser vigiadas.
• El presente aparato puede ser
• O presente aparelho pode ser
utilizado por niños mayores
utilizado por crianças com mais
de 8 años y por personas con
de 8 anos e por pessoas com
capacidades físicas, sensoriales
capacidades físicas, sensoriais ou
o mentales disminuidas o sin
mentais reduzidas ou com pouca
experiencia ni conocimientos, si
experiência e conhecimentos,
se encuentran bajo una adecuada
caso sejam adequadamente
vigilancia o si han sido instruidos
vigiadas ou caso tenham recebido
sobre el uso del aparato de modo
instruções em relação ao uso
seguro y comprenden los peligros
do aparelho de forma segura e
relacionados con el mismo.
tenham conhecimento dos perigos
Los niños no deben jugar con
associados. As crianças não
el aparato. Las operaciones de
devem brincar com o aparelho.
limpieza y de mantenimiento no
As operações de limpeza e
deben ser realizadas por niños sin
manutenção não devem ser
vigilancia.
efectuadas por crianças sem
• ATENCIÓN: Dejar un quemador
vigilância.
con grasas o aceites sin vigilancia
• ATENÇÃO: Deixar um fogão com
puede ser peligroso y provocar un
gordura e óleo sem vigilância
incendio.
pode ser perigoso e provocar um
• NUNCA intente apagar una llama/
incêndio.
incendio con agua, se debe apagar
• NUNCA tente apagar as chamas
el aparato y cubrir la llama, por
com água. É necessário desligar o
ejemplo, con una tapa o con una
aparelho e cobrir as chamas com
manta ignífuga.
uma tampa ou com uma manta
• ATENCIÓN: Riesgo de incendio: no
ignífuga.
deje objetos sobre las superficies
• ATENÇÃO: Risco de incêndio: não
de cocción.
deixe objectos sobre as superfícies
• ATENCIÓN: Si la superficie de
de cozedura.
vitrocerámica está agrietada,
• ATENÇÃO: Se a superfície
apague el aparato para evitar
vitrocerâmica estiver rachada,
sacudidas eléctricas.
desligue o aparelho para evitar
• No utilice nunca limpiadores a
a possibilidade de choques
vapor o de alta presión para la
eléctricos.
limpieza del aparato.
• Nunca utilize equipamento de
• El aparato no se debe poner en
limpeza a vapor ou de alta pressão
funcionamiento a través de un
para limpar o aparelho.
temporizador externo o de un
• O aparelho não é destinado a ser
sistema de mando a distancia.
colocado em funcionamento por
•No coloque objetos metálicos
meio de um temporizador externo
(cuchillos, cucharas, cubiertos, etc.)
ou por um sistema de comando à
sobre la placa de cocción porque
distância separado.
pueden calentarse.
•Não apoie objectos metálicos
•Después del uso apague la placa
(facas, colheres, tampas, etc.) sobre
de cocción utilizando su mando y no
o plano porque podem ficar quentes.
tenga en cuenta el detector de ollas.
•Depois do uso, desligue o plano de
cozedura através do seu dispositivo
de comando e não confie no
detector de panelas.
3

Italiano
Deutsch
IT
DE
ZUR BEACHTUNG !
ATTENZIONE!
• ATTENZIONE: Questo apparecchio
• ZUR BEACHTUNG: Bei Gebrauch wird
e le sue parti accessibili diventano
dieses Gerät und alle zugänglichen
molto caldi durante l’uso.
Teile sehr heiß.
• Bisogna fare attenzione ed evitare
• Es ist darauf zu achten, dass die
di toccare gli elementi riscaldanti.
Heizelemente nicht berührt werden.
• Tenere lontani i bambini inferiori
• Kinder unter 8 Jahren, die nicht ständig
agli 8 anni se non continuamente
beaufsichtigt sind, von dem Gerät
sorvegliati.
fernhalten.
• Il presente apparecchio puo’
• Das Gerät darf von Kindern
essere utilizzato dai bambini a
ab 8 Jahren und Personen
partire dagli 8 anni e da persone
mit eingeschränkten
con ridotte capacita’ fisiche,
körperlichen, geistigen oder
sensoriali o mentali oppure con
Wahrnehmungsfähigkeiten oder
mancanza di esperienza e di
aber ohne ausreichende Erfahrung
conoscenza se si trovano sotto
und Kenntnis verwendet werden,
adeguata sorveglianza oppure
vorausgesetzt sie werden ausreichend
se sono stati istruiti circa l’uso
überwacht oder sie wurden in den
dell’apparecchio in modo sicuro
sicheren Gebrauch des Geräts
e se si rendono conto dei pericoli
eingewiesen und haben eine
correlati. I bambini non devono
ausreichende Wahrnehmung der
giocare con l’apparecchio.
mit dem Gebrauch des Geräts
Le operazioni di pulizia e di
verbundenen Gefahren. Erlauben
manutenzione non devono essere
Sie Kindern nicht, mit dem Gerät
effettuate dai bambini senza
zu spielen. Reinigungs- und
sorveglianza.
Wartungsarbeiten dürfen nicht von
• ATTENZIONE: Lasciare un fornello
unbewachten Kindern ausgeführt
incustodito con grassi e olii puo’
werden.
essere pericoloso e puo’ provocare
• ZUR BEACHTUNG: Lassen Sie keine
un incendio.
Fette oder Öle unbewacht auf dem
• Non bisogna MAI tentare di
Herd stehen. Das ist gefährlich und
spegnere una fiamma/incendio con
kann einen Brand verursachen.
acqua, bense bisogna spegnere
• NIEMALS eine Flamme/Brandherd
l’apparecchio e coprire la fiamma
mit Wasser löschen. Schalten Sie
per esempio con un coperchio o
das Gerät aus und ersticken Sie die
con una coperta ignifuga
Flamme mit einem Deckel oder einer
•ATTENZIONE: Rischio di incendio:
feuerfesten Decke.
non lasciare oggetti sulle superfici
• ZUR BEACHTUNG: Brandgefahr: Keine
di cottura.
Gegenstände auf den Kochstellen
•ATTENZIONE: Se la superficie
liegen lassen.
vetroceramica e’ incrinata,
• ZUR BEACHTUNG: Sollte die
spegnere l’apparecchio per evitare
Glaskeramitoberfläche gesprungen
la possibilit? di scossa elettrica.
sein, schalten Sie das Gerät aus,
•Non utilizzare mai pulitori a vapore
um so mögliche Stromschläge zu
o ad alta pressione per la pulizia
vermeiden.
dell’apparecchio.
• Verwenden Sie zur Reinigung des
•L’apparecchio non e’ destinato
Kochfeldes keine Dampf- oder
a essere messo in funzione per
Hochdruckreinigungsgeräte.
mezzo di un temporizzatore esterno
• Dieses Gerät kann nicht mit einem
oppure di un sistema di comando a
externen Timer oder einem getrennten
distanza separato.
Fernsteuerungssystem betrieben
•Non posare oggetti metallici (coltelli,
werden.
cucchiai, coperchi, ecc.) sul piano
• Legen Sie bitte keine
perchè possono diventare caldi.
Metallgegenstände (Messer, Löffel,
•Dopo l’uso, spegnere il piano
Deckel usw.) auf das Kochfeld; sie
cottura per mezzo del suo
könnten sehr heiß werden.
dispositivo di comando
•Nach dem Gebrauch schalten
e non fare affidamento sul rivelatore
Sie bitte das Kochfeld über seine
di pentole.
Bedienungsvorrichtung aus, und
verlassen Sie sich nicht auf den
Topferfassungsfühler.
4

Nederland
Polski
NL
PL
PAS OP !
UWAGA !
• UWAGA: To urządzenie oraz jego
• PAS OP: Dit apparaat en zijn
dostępne części silnie się rozgrzewają
bereikbare onderdelen worden
podczas użytkowania.
tijdens gebruik zeer heet.
GB
• Należy uważać, aby nie dotknąć
• Zorg ervoor de verwarmende
elementów grzejnych.
elementen niet aan te raken.
• Nie pozwalać, aby dzieci poniżej 8 roku
• Zorg ervoor dat kinderen die kleiner
życia zbliżały się do urządzenia, jeśli
dan 8 jaar oud zijn niet dichtbij het
nie są pod stałym nadzorem dorosłych.
apparaat kunnen komen, tenzij onder
• Z niniejszego urządzenia mogą
constant toezicht.
korzystać dzieci powyżej 8 roku
• Het huidige apparaat mag alleen
życia i osoby o ograniczonych
door kinderen van 8 jaar en ouder
zdolnościach fi zycznych, zmysłowych
en door personen met een beperkt
bądź umysłowych, jak również osoby
lichamelijk, sensorieel of geestelijk
nieposiadające doświadczenia lub
vermogen, of zonder ervaring en
znajomości urządzenia, jeśli znajdują
kennis worden gebruikt, mits ze
się one pod nadzorem innych osób
onder adequaat toezicht zijn, of
lub jeśli zostały pouczone na temat
mits ze zijn onderricht m.b.t. het
bezpiecznego sposobu użycia
veilige gebruik van het apparaat en
urządzenia oraz zdają sobie sprawę
zich bewust zijn van de betreffende
ze związanych z nim zagrożeń. Dzieci
gevaren. Voorkom dat kinderen met
nie powinny bawić się urządzeniem.
het apparaat spelen. De reinigings-
Prace związane z czyszczeniem
en onderhoudshandelingen
i konserwacją nie mogą być
mogen niet door kinderen worden
wykonywane przez dzieci, jeśli nie są
uitgevoerd, tenzij onder toezicht.
one nadzorowane.
• PAS OP: Het kan gevaarlijk zijn een
• UWAGA: Pozostawienie bez nadzoru
fornuis met vet of olie onbewaakt te
na kuchence tłuszczów i olejów
laten. Er kan brand ontstaan.
może być niebezpieczne i może
• U moet NOOIT proberen een vlam/
spowodować pożar.
brand te blussen met water. U dient
• Nie należy NIGDY próbować ugasić
daarentegen het apparaat uit te
płomieni/pożaru wodą; należy wyłączyć
schakelen en de vlam te bedekken
urządzenie i przykryć płomień np.
met bijvoorbeeld een (blus)deken.
pokrywką lub ognioodpornym kocem.
• PAS OP: Brandgevaar: laat nooit
• UWAGA: Ryzyko pożaru: nie
voorwerpen op het kookoppervlak
pozostawiać przedmiotów na
liggen.
powierzchniach grzejnych.
• PAS OP: Als het oppervlak van de
• UWAGA: Jeżeli powierzchnia ze szkła
glaskeramische kookplaat gebarsten
ceramicznego jest pęknięta, należy
is, moet u het apparaat uitschakelen
wyłączyć urządzenie, aby uniknąć
om te voorkomen dat u een
niebezpieczeństwa porażenia prądem
elektrische schok krijgt.
elektrycznym.
• Gebruik nooit huishoudapparaten met
•Nie stosować nigdy oczyszczaczy
stoom of hoge druk voor het reinigen
parowych lub ciśnieniowych do
van de kookplaat.
czyszczenia urządzenia.
• Het apparaat is niet geschikt om te
• Urządzenie nie jest przeznaczone do
worden ingeschakeld m.b.v. een
włączania przy użyciu zewnętrznego
externe timer of door een gescheiden
przekaźnika czasowego lub zdalnego
afstandsbedieningssysteem.
systemu sterowania.
•Plaats geen metalen voorwerpen
• Na płycie nie należy kłaść metalowych
(messen, lepels, deksels enz.) op de
przedmiotów (noży, łyżek, pokrywek itp.),
kookplaat aangezien zij heet kunnen
ponieważ mogą rozgrzać.
worden.
• Po użyciu, należy wyłączyć płytę
•Na het gebruik dient u de kookplaat
grzejną przy użyciu jej sterownika, nie
uit te schakelen door middel van
polegając na wykrywaczu obecności
het bedieningsmechanisme en
niet uitsluitend te vertrouwen op de
naczyń.
pannensensor.
5

Русский
RS
ВНИМАНИЕ !
• ВНИМАНИЕ: Данное изделие и
его доступные комплектующие
сильно нагреваются в процессе
эксплуатации.
• Будьте осторожны и не касайтесь
нагревательных элементов.
• Не разрешайте детям младше 8
лет приближаться к изделию без
контроля.
• Данное изделие может быть
использовано детьми старше 8
лет и лицами с ограниченными
физическими, сенсорными или
умственными способностями или
без опыта и знания о правилах
использования изделия при условии
надлежащего контроля или обучения
безопасному использованию
изделия с учетом соответствующих
рисков. Не разрешайте детям играть
с изделием. Не разрешайте детям
осуществлять чистку
и уход за
изделием без контроля взрослых.
• ВНИМАНИЕ: Опасно оставлять
включенную конфорку с маслом или
жиром без присмотра, так как это
может привести к пожару.
• НИКОГДА не пытайтесь погасить
пламя/пожар водой. Прежде всего
выключите изделие и накройте
пламя крышкой или огнеупорной
тканью.
• ВНИМАНИЕ: Опасность пожара: не
оставляйте предметов на варочных
поверхностях.
•ВНИМАНИЕ: Еслстеклокерамическая
поверхность варочной панели
треснула, выключите ее во
избежание ударов током.
• Никогда не используйте паровые
чистящие агрегаты или агрегаты
под высоким давлением для чистки
изделия.
• Изделие не рассчитано на
влючение посредством внешнего
синхронизатора или отдельной
системы дистанционного
управления.
• Не кладите металлические
предметы (ножи, ложки, крышки и
т.д.) на варочную панель, так как они
могут сильно нагреться.
• После использования выключите
варочную панель при помощи
специальной рукоятки, не полагаясь
на сенсор обнаружения посуды.
6

3 5
15
16
910
1
6
4
BoosterBoosterBooster
7
12
GB
13
14
2
8
11
Description de l’appareil
FR
Description of the appliance
Tableau de bord
GB
Control panel
Le tableau de bord qui est
The control panel described in this manual is only a
décrit n.a qu.une valeur d.exemple :
representative example: it may not exactly match the panelon
il peut ne pas correspondre au modèle acheté.
your appliance.
1 INCREASE TIME button increases the time value
1 Touche AUGMENTATION DU TEMPS pour augmenter le
set on the timer (see Start-up and use).
temps du programmateur (voir Mise en marche et utilisation).
2 DECREASE TIME button decreases the time value
2 Touche DIMINUTION DU TEMPS pour diminuer le temps
set on the timer (see Start-up and use).
du programmateur (voir Mise en marche et utilisation).
3 COOKING ZONE SELECTOR indicator shows a
3 Voyant FOYER SELECTIONNÉ pour signaler que le foyer
particular cooking zone has been selected and
correspondant a été sélectionné et que les régulations
therefore various adjustments are possible.
sont donc possibles.
4 COOKING ZONE SELECTOR button is used to
4 Touche SÉLECTION FOYER pour sélectionner le foyer
select the desired cooking zone.
souhaité
5 POWER indicator provides a visual display for the
5 Indicateur de PUISSANCE : une colonne lumineuse pour
current heat level.
signaler le niveau de puissance atteint.
6 ON/OFF button switches the appliance on and off.
6 Touche ON/OFF pour allumer ou éteindre l’appareil.
7 ON/OFF indicator light shows whether the appliance
7 Voyant ON/OFF : il signale si l’appareil est allumé ou
is on or off.
éteint.
8 PROGRAMME TIMER button controls the cooking
8 Touche PROGRAMMATEUR pour programmer la durée
programme times (see Start-up and use).
d’une cuisson (voir Mise en marche et Utilisation).
9 PROGRAMME TIMER display shows which
9 Afficheur PROGRAMMATEUR : pour afficher les choix
programme has been selected (see Start-up and use).
correspondant à la programmation (voir Mise en marche et
10 COOKING ZONE PROGRAMMED indicator lights
utilisation).
show which cooking zones are being used during a
10 Voyants FOYER PROGRAMMÉ : ils indiquent les foyers
cooking programme (see Start-up and use).
quand une programmation est lancée (voir Mise en marche
11 CONTROL PANEL LOCK button prevents
et utilisation).
accidental changes to the hob settings (see Start-up
11 Touche VERROUILLAGE DES COMMANDES pour
and use).
empêcher toute intervention extérieure sur les réglages de
12 CONTROL PANEL LOCK indicator light shows the
la table de cuisson (voir Mise en marche et Utilisation).
control panel has been locked (see Start-up and use).
12 Voyant COMMANDES VERROUILLÉES : pour signaler
13 COOKING ZONE POWER SELECTOR buttons
le verrouillage des commandes (voir Mise en marche et
switch on the hotplate and control the power (see
Utilisation).
Start-up and use).
13 Touche SÉLECTION PUISSANCE FOYERS pour allumer
14TIMER indicator light shows that the timer has been
le foyer et régler sa puissance (voir Mise en marche et
activated
utilisation).
15BOOSTER button activates the booster function -
14 Voyant MINUTEUR il signale que le minuteur est activé
3000 W - of the cooking zone (see Start-up and use).
15 Touche BOOSTER pour brancher la suralimentation - 3000
16 BOOSTER indicator light shows that the booster
W – du foyer (voir Mise en marche et utilisation).
function has been activated.
16 Voyant BOOSTER il signale que la fonction de
! This product complies with the requirements of the
suralimentation du booster est activée.
latest European Directive on the limitation of power
consumption of the standby mode.
! Ce produit est conforme à la nouvelle Directive Européenne sur la
If no operations are carried out for a period of 2
réduction de la consommation d’énergie en mode standby. Sans
minutes, after the residual heat indicator lights turn
opérations pendant 2 minutes, après
off and the fan stops (if present), the appliance
automatically switches to the .off mode..
l’extinction des voyants de chaleur résiduelle et l’arrêt du ventilateur
The appliance resumes the operating mode once the
(si existants), l’appareil se place automatiquement en “off mode”. Pour
ON/OFF button is pressed.
remettre l’appareil en mode de fonctionnement
normal, appuyer sur la touche ON/OFF.
* N’existe que sur certains modèles
* Only available in certain models.
7

Descripción del aparato
Descrição do aparelho
ES
PT
Panel de control
Painel de comandos
O painel de comandos descrito a seguir está representado para
El panel de control se describe a continuación a modo de
fins explicativos: pode não ser uma exacta
ejemplo: puede no ser una exacta reproducción del
reprodução do modelo comprado.
modelo adquirido.
1 Botão AUMENTAR TEMPO para aumentar o tempo
1 Botón AUMENTO TIEMPO para aumentar el tiempo del
do timer (veja Início e utilização).
temporizador (ver Puesta en funcionamiento y modo de
2 Botão DIMINUIR TEMPO para diminuir o tempo do
empleo).
timer (veja Início e utilização).
2 Botón DISMINUCIÓN TIEMPO para disminuir el tiempo
3 Indicador luminoso ZONA DE COZEDURA
del temporizador (ver Puesta en funcionamiento y modo de
SELECCIONADA indica que a zona de cozedura
empleo).
relativa foi seleccionada e são portanto possíveis as
3 Piloto ZONA DE COCCIÓN SELECCIONADA indica que
várias regulações.
ha sido seleccionada dicha zona de cocción y, por lo
4 Botão SELECÇÃO ZONA DE COZEDURA para
tanto, se pueden realizar las distintas regulaciones
seleccionar a zona de cozedura desejada.
4 Botón SELECCIÓN DE ZONA DE COCCIÓN para
5 Indicador POTÊNCIA sinaliza visualmente o nível de
seleccionar la zona de cocción deseada
calor alcançado.
5 Indicador de POTENCIA: indica visualmente el nivel de
6 Botão ON/OFF para ligar e desligar o aparelho.
calor alcanzado.
7 Indicador ON/OFF: sinaliza se o aparelho está
6 Botón ON/OFF para encender y apagar el aparato.
aceso ou apagado.
7 Piloto ON/OFF: indica si el aparato está encendido o
8 Botão TIMER DE PROGRAMAÇÃO para regular a
apagado.
programação da duração de uma cozedura (veja
8 Botón TEMPORIZADOR DE PROGRAMACIÓN para
Início e utilização).
programar la duración de una cocción (ver Puesta en
9 Display TIMER DE PROGRAMAÇÃO: visualiza
funcionamiento y uso).
as escolhas relativas à programação (veja Início e
9 Display TEMPORIZADOR DE PROGRAMACIÓN:
utilização).
visualiza las selecciones correspondientes a la
10 Indicadores luminosos ZONA DE COZEDURA
programación (ver Puesta en funcionamiento y uso).
PROGRAMADA: indicam as zonas de cozedura
10 Pilotos ZONA DE COCCIÓN PROGRAMADA: indican las
quando se inicia uma programação (veja Início e
zonas de cocción cuando comienza una programación
utilização).
(ver Puesta en funcionamiento y uso).
11 Botão BLOQUEIO DOS COMANDOS para impedir
11 Botón BLOQUEO DE MANDOS para impedir
modificações acidentais das regulações do plano
modificaciones fortuitas a las regulaciones de la encimera
de cozedura (veja Início e utilização).
(ver Puesta en funcionamiento y uso).
12 Indicador luminoso COMANDOS BLOQUEADOS:
12 Piloto MANDOS BLOQUEADOS: indica que se ha
sinaliza o bloqueio dos comandos (veja Início e
producido el bloqueo de los mandos (ver Puesta en
utilização).
funcionamiento y uso).
13 Botão SELECCIONAR POTÊNCIA DAS ZONAS DE
13Botón SELECCIÓN POTENCIA ZONAS COCCIÓN para
COZEDURA para ligar a chapa e regular a potência
encender la placa y regular la potencia (ver Puesta en
(veja Início e utilização).
funcionamiento y modo de empleo).
14 Indicador luminoso CONTADOR DE MUNITOS
14 Piloto CONTADOR DE MINUTOS indica que se ha
indica que está activo o contador de minutos.
activado el contador de minutos
15 Botão BOOSTER para ligar a super
15Botón BOOSTER para encender la sobrealimentación
alimentação - 3000 W - da zona de cozedura (veja
-3000 vatios -de la zona de cocción (ver Puesta en
Início e Utilização).
funcionamiento y uso ).
16 Indicador luminoso BOOSTER indica que está
16 Piloto BOOSTER indica que está activada la función de
activa a função de super alimentação booster.
sobrealimentación booster.
! Este produto satisfaz os requisitos impostos pela
! Este producto satisface los requisitos establecidos
nova Directiva Europeia sobre a limitação dos
por la nueva Directiva europea sobre la limitación de
consumos energéticos em stand-by.
los consumos energéticos en standby.
Se não se efectuarem operações por 2 minutos,
Si no se realizan operaciones por 2 minutos, una vez
que se apagan los luces piloto del calor residual y
depois que os indicadores de calor resíduo e da
del ventilador (si están presentes), el aparato se
ventoinha (se presentes) se desligarem, o aparelho
coloca de forma automática en el modo .off mode..
coloca-se automaticamente na modalidade .off
El aparato vuelve al modo operativo utilizando la
mode..
tecla ON/OFF.
O aparelho voltará para a modalidade operativa ao
carregar na tecla ON/OFF.
* Presente sólo en algunos modelos. * Há somente em alguns modelos.
8

Beschreibung des Gerätes
Descrizione dell’apparecchio
DE
IT
Bedienfeld
Pannello di controllo
Das hier beschriebene Bedienfeld dient nur als Beispiel, es
Il pannello di controllo che qui viene descritto è
GB
handelt sich nicht unbedingt um eine genaue
rappresentato a fini esemplificativi: può non essere una
Widergabe des von Ihnen erworbenen Modells.
esatta riproduzione del modello acquistato.
1 Taste ZEIT ERHÖHEN zur Verlängerung der Zeit des
1 Tasto AUMENTO TEMPO per aumentare il tempo
Timers (siehe Inbetriebsetzung und Gebrauch).
del timer (vedi Avvio e utilizzo).
2 Taste ZEIT HERABSETZEN zur Verkürzung der Zeit des
2 Tasto DIMINUZIONE TEMPO per diminuire il tempo
Timers (siehe Inbetriebsetzung und Gebrauch).
del timer (vedi Avvio e utilizzo).
3 Kontrollleuchte GEWÄHLTE KOCHZONE: Diese zeigt an,
3 Spia ZONA DI COTTURA SELEZIONATA indica
dass die der Kontrollleuchte entsprechende Kochzone
che la zona di cottura relativa è stata selezionata e
gewählt wurde und die gewünschten Einstellungen
quindi sono possibili le varie regolazioni
demnach vorgenommen werden können.
4 Tasto SELEZIONE ZONA DI COTTURA per
4 Taste WAHL DER KOCHZONE: Mittels dieser wird die
selezionare la zona di cottura desiderata
gewünschte Kochzone gewählt.
5 Indicatore POTENZA: segnala visivamente il livello
5 LEISTUNGSANZEIGE: Auf dieser ist der jeweils erreichte
di calore raggiunto.
Heizwert ersichtlich.
6 Tasto ON/OFF per accendere e spegnere
6 Taste ON/OFF: Zum Ein- bzw. Ausschalten des Gerätes.
l’apparecchio.
7 Kontrollleuchte ON/OFF: Diese zeigt an, ob das Gerät ein-
7 Spia ON/OFF: segnala se l’apparecchio è acceso
oder ausgeschaltet ist.
o spento.
8 Taste PROGRAMMIERUNGSTIMER: Mittels dieser Taste
8 Tasto TIMER DI PROGRAMMAZIONE per regolare
kann die für jede Kochzone jeweils programmierte Zeit
la programmazione della durata di una cottura (vedi
reguliert werden (siehe Inbetriebsetzung und Gebrauch).
Avvio e utilizzo).
9 Display PROGRAMMIERUNGSTIMER: Auf diesem
9 Display TIMER DI PROGRAMMAZIONE: visualizza
Display werden die jeweils programmierten Zeiten
le scelte relative alla programmazione (vedi Avvio e
angezeigt (siehe Inbetriebsetzung und Gebrauch).
utilizzo).
10 Kontrollleuchten PROGRAMMIERTE KOCHZONE: Diese
10 Spie ZONA DI COTTURA PROGRAMMATA:
zeigen die Kochzonen an, die programmiert wurden (siehe
indicano le zone di cottura quando si avvia una
Inbetriebsetzung und Gebrauch).
programmazione (vedi Avvio e utilizzo).
11 Taste SPERRE DER SCHALTELEMENTE: Um
11 Tasto BLOCCO DEI COMANDI per impedire
versehentliche Änderungen der am Kochfeld erfolgten
modifiche fortuite alle regolazioni del piano cottura
Einstellungen zu verhindern (siehe Inbetriebsetzung und
(vedi Avvio e utilizzo).
Gebrauch).
12 Spia COMANDI BLOCCATI: segnala l’avvenuto
12 Kontrollleuchte SCHALTELEMENTE GESPERRT: Diese
blocco dei comandi (vedi Avvio e utilizzo).
signalisiert, dass die Schaltelemente gesperrt wurden
13 Tasti SELEZIONE POTENZA ZONE COTTURA per
(siehe Inbetriebsetzung und Gebrauch).
accendere la piastra e regolare la potenza (vedi
13Taste LEISTUNGSREGLER KOCHZONE zum Einschalten
Avvio e utilizzo).
sowie zur Leistungsregelung der Kochzone (siehe
14 Spia CONTAMINUTI indica che è attivo il
Inbetriebsetzung und Gebrauch).
contaminuti
14 Kontrollleuchte KURZZEITWECKER: Diese signalisiert,
15 Tasto BOOSTER per accendere la
dass der Kurzzeitwecker läuft.
sovralimentazione - 3000 W - della zona di cottura
15 Taste BOOSTER: Mittels dieser kann die
(vedi Avvio e utilizzo).
Kochzonenleistung auf 3000 W erweitert werden (siehe
16 Spia BOOSTER indica che è attiva la funzione
Inbetriebsetzung und Gebrauch).
di sovralimentazione booster
16 Kontrollleuchte BOOSTER: zeigt an, dass die
Booster-Funktion eingeschaltet ist
! Questo prodotto soddisfa i requisiti imposti dalla
nuova Direttiva Europea sulla limitazione dei consumi
! Dieses Produkt entspricht den Vorschriften der
energetici in standby.
neuen Europäischen Richtlinie zur Einschränkung
Se non si eseguono operazioni per 2 minuti, dopo
des Energieverbrauchs im Standby.
lo spegnimento delle spie di calore residuo e della
Werden für 2 Minuten keine Tasten gedrückt, dann
ventola (ove presenti), l’apparecchio si dispone
stellt sich das Gerät nach Ausschalten der Anzeigen
automaticamente in modalità “off mode”.
für Resthitze und des Lüfters (wenn vorhanden)
L’apparecchio ritorna in modalità operativa agendo sul
automatisch in den “off mode”.
Das Gerät kehrt durch Drücken der Taste ON/OFF in
tasto ON/OFF.
den Betriebsmodus zurück.
* Presente solo in alcuni modelli.
* Nur bei einigen Modellen.
9

Beschrijving van het apparaat
Opis urządzenia
NL PL
Bedieningspaneel
Panel sterowania
Het bedieningspaneel dat hier wordt beschreven en
Opisany tu panel sterowania jest przedstawiony jako
afgebeeld geldt alleen als voorbeeld: het is mogelijk dat
przykład: nie musi być dokładnie taki sam, jak panel
het niet exact overeenkomt met het door u aangeschafte
zainstalowany w zakupionym urządzeniu.
model.
1 Toets TOENAME TIJD om de tijd van de timer toe te
1 Przycisk POWIEKSZA CZAS aby powiększyć czas
laten nemen (zie Starten en gebruik).
timera (patrz Uruchomienie i użytkowanie).
2 Toets AFNAME TIJD om de tijd van de timer af te
2 Przycisk SKRÓCA CZAS aby skrócić czas timera
laten nemen (zie Starten en gebruik).
(patrz Uruchomienie i użytkowanie).
3 Controlelampje GESELECTEERD KOOKGEDEELTE
3 Kontrolka WYBRANEGO POLA GRZEJNEGO
geeft aan dat het betreffende kookgedeelte
wskazuje, ze dane pole grzejne zostalo wybrane, a
geselecteerd is en dat u het kunt regelen.
wiec mozliwe sa rózne regulacje
4 Toets SELECTEREN KOOKGEDEELTE om het
4 Przycisk WYBORU POLA GRZEJNEGO do wybrania
gewenste kookgedeelte te selecteren
zadanego pola grzejnego.
5 AanwijzerVERMOGEN: geeft het bereikte
5 Wskaźnik MOCY: wizualnie sygnalizuje osiągnięty
warmteniveau aan.
poziom ciepła.
6 Toets ON/OFF voor het in- en uitschakelen van het
6 Przycisk ON/OFF do wlaczania i wylaczania
apparaat.
urzadzenia.
7 Controlelampje ON/OFF: geeft aan of het apparaat in-
7 Kontrolka ON/OFF: sygnalizuje, czy urzadzenie jest
of uitgeschakeld is.
wlaczone, czy wylaczone.
8 Toets PROGRAMMERINGSTIMER om de
8 Przycisk REGULATORA CZASOWEGO
programmering van de kookduur te regelen (zie
PROGRAMOWANIA do regulacji programowania
Starten en gebruik).
czasu trwania gotowania (patrz Uruchomienie i
9 Display PROGRAMMERINGSTIMER: toont de
uzytkowanie).
keuzes betreffende de programmering aan (zie
9 Wyswietlacz REGULATORA CZASOWEGO
Starten en gebruik).
PROGRAMOWANIA: wyswietla dane dotyczace
10 Controlelampjes GEPROGRAMMEERD
programowania (patrz Uruchomienie i uzytkowanie).
KOOKGEDEELTE: tonen de kookgedeeltes aan als u
10 Kontrolki ZAPROGRAMOWANEGO POLA
een programmering start (zie Starten en gebruik).
GRZEJNEGO: wskazuja pola grzejne przy
11 Toets BLOKKERING BEDIENINGSPANEEL om
rozpoczynaniu programowania (patrz Uruchomienie i
te voorkomen dat er ongewilde wijzigingen aan de
uzytkowanie).
regeling van het kookvlak worden uitgevoerd (zie
11 Przycisk BLOKADY STEROWANIA do zapobiegania
Starten en gebruik).
przypadkowym zmianom parametrów przy regulacji
12 Controlelampje BLOKKERING
plyty grzejnej (patrz Uruchomienie i uzytkowanie).
BEDIENINGSPANEEL: toont dat de blokkering van
12 Kontrolka BLOKADY STEROWANIA : sygnalizuje
het bedieningspaneel heeft plaatsgevonden (zie
zablokowanie sterowania (patrz Uruchomienie i
Starten en gebruik).
uzytkowanie).
13 Toets SELECTEREN KOOKZONES om de kookplaat
13 Przycisk ZWIĘKSZENIA MOCY PŁYTY do włączania
aan te zetten en het vermogen te regelen (zie Starten
płyty i do regulacji mocy (patrz Uruchomienie i
en gebruik).
użytkowanie).
14 Controlelampje TIMER geeft aan dat de timer actief
14 Kontrolka MINUTNIKA wskazuje, ze minutnik jest
is.
wlaczony
15 BOOSTER toets om het extra vermogen - 3000
15
Przycisk BOOSTER służy aby dojść do doładowania
W - van de kookzone in te schakelen (zie Starten en
– 3000 W – strefy gotowania (patrz Uruchomienie i
gebruik).
użytkowanie).
16 BOOSTER controlelampje, geeft aan dat het ‚booster’
16 Wskaźnik BOOSTER wskazuje, że włączona
extra vermogen actief is.
jest funkcja doładwania booster.
! Dit product voldoet aan de eisen die gesteld worden door
! Ten produkt spełnia wymogi dyrektywy wspólnotowej
de nieuwe Europese Richtlijn voor energiebesparing voor
dotyczącej ograniczenia zużycia energii w trybie
apparaten in de standby-stand.
czuwania.
Wanneer 2 minuten lang geen handelingen worden
Jeśli przez 2 minuty nie są wykonywane żadne
uitgevoerd gaat het apparaat, na het uitgaan van de
operacje, po wyłączeniu wskaźnika ciepła resztkowego
waarschuwingslampjes voor restwarmte en voor de
i wentylatora (jeśli obecne), urządzenie automatycznie
ventilator (indien aanwezig), automatisch in de “off mode”.
przechodzi w tryb „off mode”.
Door op de ON/OFF toets te drukken, keert het apparaat
Urządzenie powraca do trybu aktywnego po naciśnięciu
weer terug in de operationele stand.
przycisku ON/OFF.
* Znajduje siê tylko w niektórych modelach.
* Slechts op enkele modellen aanwezig.
10

Описание изделия
RS
Панель управления
Панель управления, описание которои приводится ниже,
служит только в качестве примера: она может не в точности
соответствовать Вашеи модели
1 Кнопка УВЕЛИЧЕНИЕ ВРЕМЕНИ для увеличения
GB
времени таймера (см. Включение и эксплуатация).
2 Кнопка УМЕНЬШЕНИЕ ВРЕМЕНИ для уменьшения
времени таймера (см. Включение и эксплуатация).
3 Индикатор ВЫБРАННАЯ ВАРОЧНАЯ ЗОНА
показывает, что соответствующая варочная зона
была выбрана и следовательно возможно произвести
настроики ее функции.
4 Кнопка ВЫБОР ВАРОЧНОИ ЗОНЫ служит для выбора
нужнои варочнои
зоны.
5 Индикатор МОЩНОСТЬ: показывает уровень нагрева.
6 Кнопка ON/OFF (ВКЛ./ВЫКЛ.) служит для включения и
выключения изделия.
7 Индикатор ON/OFF (ВКЛ./ВЫКЛ.): показывает
состояние изделия, включено или выключено.
8 Кнопка ТАИМЕР ПРОГРАММИРОВАНИЯ служит для
настроики продолжительности приготовления (см.
Включение и эксплуатация).
9 Дисплеи ТАИМЕРА ПРОГРАММИРОВАНИЯ:
показывает различные настроики программирования
(см. Включение
и эксплуатация).
10 Индикаторы ЗАПРОГРАММИРОВАННЫЕ ВАРОЧНЫЕ
ЗОНЫ: показывают варочные зоны после запуска
программирования ( см. Включение и эксплуатация).
11 Кнопка БЛОКИРОВКА УПРАВЛЕНИИ служит для
защиты управлении варочнои панели от случаиных
измнении (см. Включение и эксплуатация).
12 Индикатор УПРАВЛЕНИЯ ЗАБЛОКИРОВАНЫ
показывает, что управления заблокированы ( см.
Включение и эксплуатация).
13 Кнопки ВЫБОР МОЩНОСТИ ВАРОЧНЫХ
ЗОН служат
для включения варочной зоны и регуляции мощности
нагрева (см. Включение и эксплуатация).
14 Индикатор ТАИМЕР показывает, что таимер включен
15 Кнопка BOOSTER служит для включения
дополнительного электропитания – 3000 Вт
– индукционной конфорки (см. Включение и
эксплуатация).
15 Индикатор BOOSTER показывает, что функция
вольтодобавочного устройства включена.
! Данное изделие отвечает требованиям новой Европейской
Директивы по ограничению энергопотребления в режиме
энергосбережения.
Если в течение 2-х минут не производится никаких
действий после выключения индикаторов остаточного
тепла и вентилятора (если они присутствуют), изделие
автоматически переходит в режим «ВЫКЛ.».
Возврат изделия в рабочий режим производится кнопкой
ВКЛ./ВЫКЛ.
* Имеется только в некоторых моделях.
11

Installation
! Before operating your new appliance please read
GB
this instruction booklet carefully. It contains important
information concerning the safe operation, installation
and maintenance of the appliance.
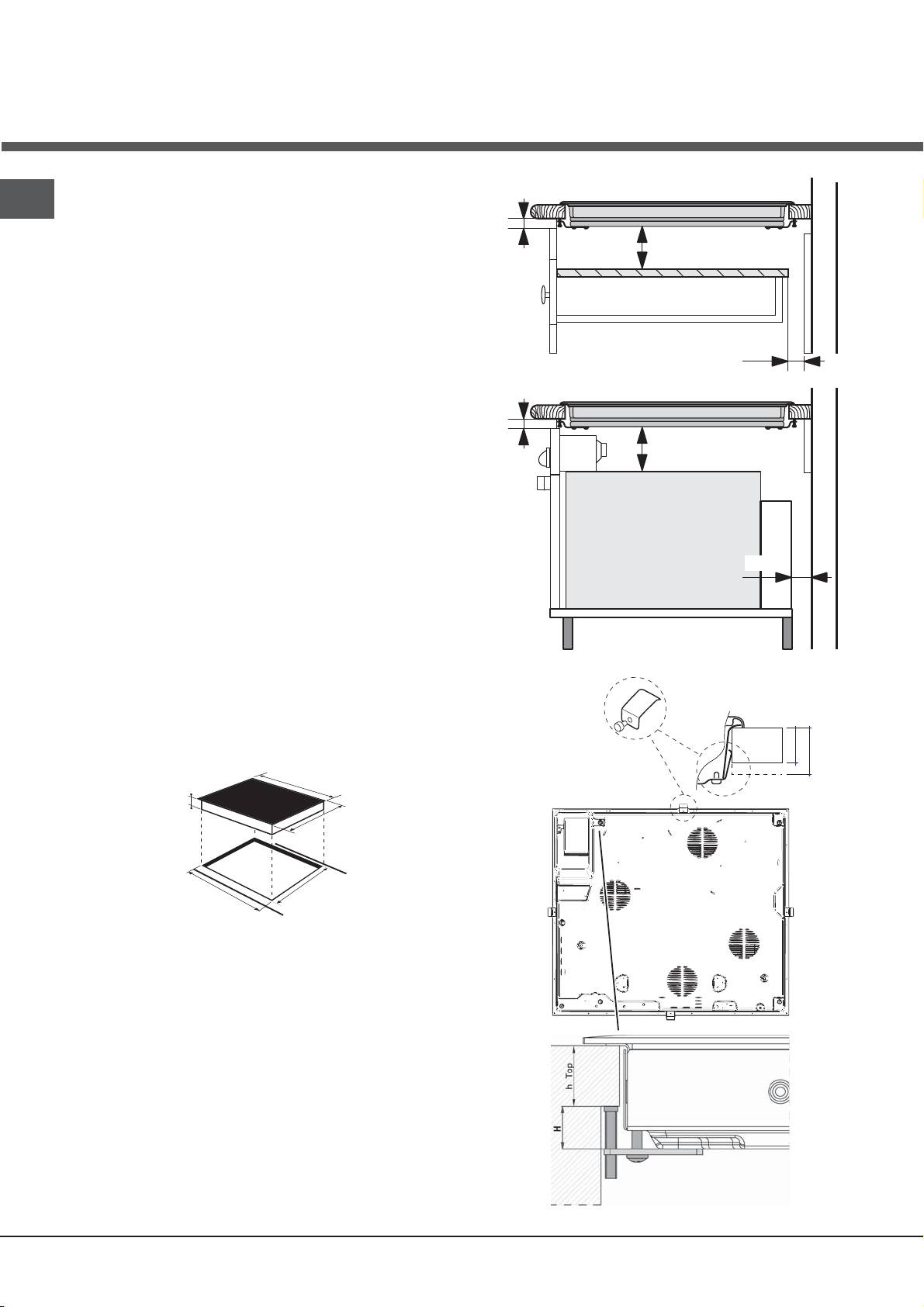
min. 20 mm
! Please keep these operating instructions for future
reference. Pass them on to any new owners of the
5 mm
appliance.
COMPARTMENT
Positioning
min. 40 mm
! Keep all packaging material out of the reach of
children. It may present a choking or suffocation
hazard (see Precautions and tips).
! The appliance must be installed by a qualified
professional in accordance with the instructions
min. 20 mm
provided. Incorrect installation may cause harm to
people and animals or may damage property.
5 mm
FAN-ASSISTED
Built-in appliance
OVEN
Use a suitable cabinet to ensure that the appliance
functions properly.
min. 40 mm
• The supporting surface must be heat-resistant up to
a temperature of approximately 100°C.
• If the appliance is to be installed above an oven,
the oven must be equipped with a forced ventilation
cooling system.
• Avoid installing the hob above a dishwasher: if this
FRONT SIDE
cannot be avoided, place a waterproof separation
OF HOB
device between the two appliances.
• Depending on the hob you want to install, the
SUPPORTING
SURFACE
cabinet must have the following dimensions (see
30
40
gure):
590
UNDERSIDE
OF HOB
48
520
560 +/- 1
490 +/- 1
Ventilation
To allow adequate ventilation and to avoid overheating of
the surrounding surfaces the hob should be positioned as
follows:
• At a minimum distance of 40 mm from the back
panel.
• So that a minimum distance of 20 mm is maintained
between the installation cavity and the cabinet
underneath.
• Kitchen cabinets adjacent to the appliance and taller
than the top of the hob must be at least 600 mm
from the edge of the hob.
12

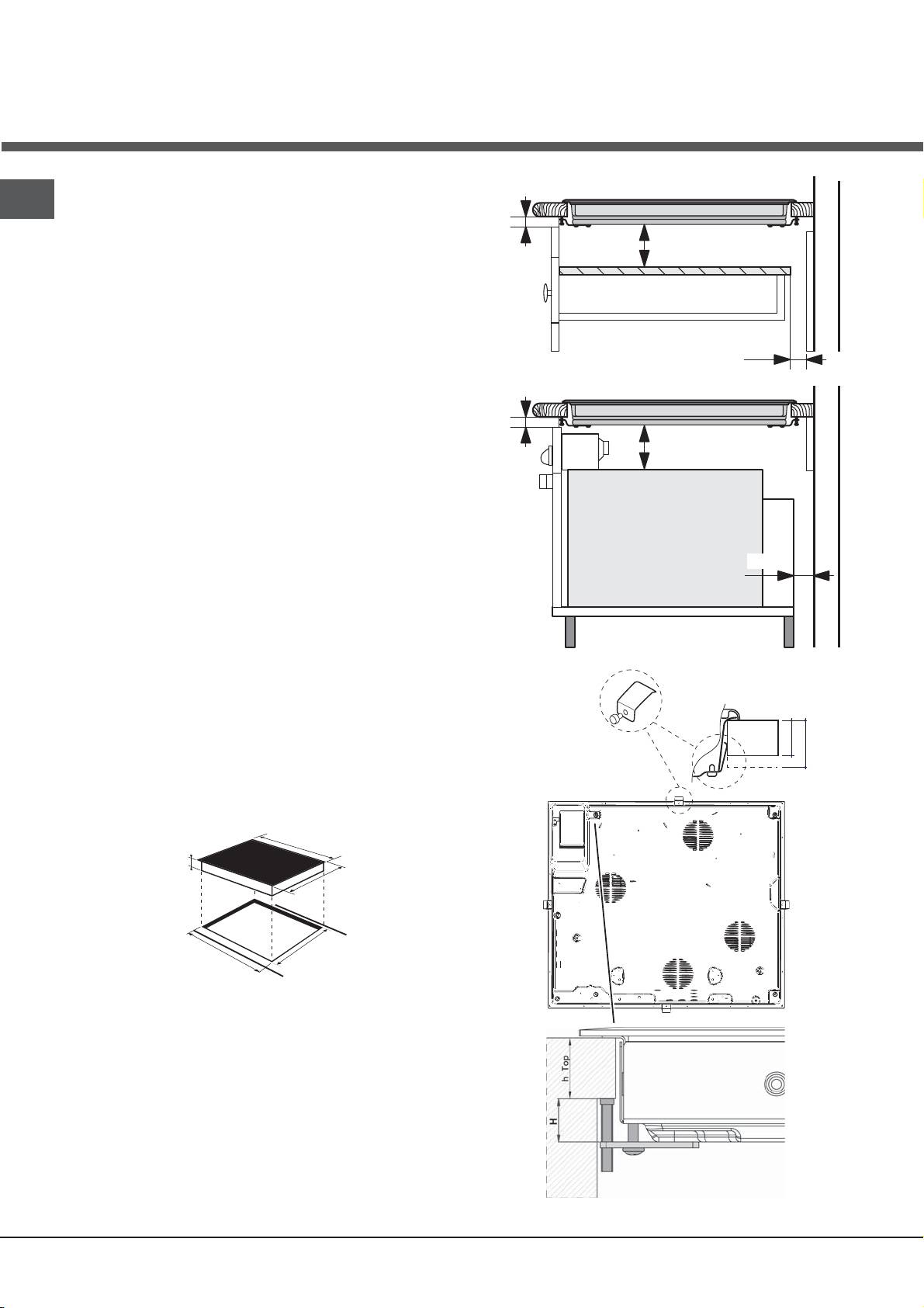
Fixing
• 400V - 2+2N ~ 50 Hz
The appliance must be installed on a perfectly level
GB
supporting surface. Any deformities caused by
Separate the wires and connect them in accordance
improper fixing could affect the features and operation
with the instructions given in the following table and
of the hob. The thickness of the supporting surface
diagrams:
Voltage and
should be taken into account when choosing the length
Electrical cable Wire connection
mains frequency
of the screws for the fixing hooks:
400V - 2+N ~
50 Hz
: yellow/green;
• 30 mm thick: 23 mm screws
220-240V 3 ~
N: the two blue wires
50 Hz
together
• 40 mm thick: 13 mm screws
L1: black
400V 3-N ~
50 Hz
L2: brown
Fix the hob as follows:
: yellow/green;
1. Use short flat-bottomed screws to fix the 4 alignment
400V - 2+2N ~
N1: blue
springs in the holes provided at the central point of each
50 Hz
N2: blue
side of the hob.
L1: black
L2: brown
2. Place the hob in the cavity, make sure it is in a central
position and push down on the whole perimeter until the
Connecting the electricity supply cable to the mains
hob is stuck to the supporting surface.
If the appliance is being connected directly to the
3. For hobs with raised sides: After inserting the hob into
electricity mains an omnipolar switch must be installed
its cavity, insert the 4 fixing hooks (each has its own pin)
with a minimum opening of 3 mm between contacts.
into the lower edges of the hob, using the long pointed
! The installer must ensure that the correct electrical
screws to fix them in place, until the glass is stuck to the
connection has been made and that it is fully compliant
supporting surface.
with safety regulations.
! The screws for the alignment springs must remain
Before connecting the appliance to the power supply,
accessible.
make sure that:
! In order to adhere to safety standards, the appliance
must not come into contact with electrical parts once it
• The appliance is earthed and the plug is compliant
has been installed.
with the law.
! All parts which ensure the safe operation of the
• The socket can withstand the maximum power of the
appliance must not be removable without the aid of a
appliance, which is indicated on the data plate located
tool.
on the appliance itself.
• The voltage falls within the range of values indicated
on the data plate.
Electrical connection
• The socket is compatible with the plug of the
appliance. If the socket is incompatible with the plug,
! The electrical connection for the hob and for any built-
ask an authorised technician to replace it. Do not use
in oven must be carried out separately, both for safety
extension cords or multiple sockets.
purposes and to make extracting the oven easier.
! Once the appliance has been installed, the power
Single-phase connection
supply cable and the electrical socket must be easily
The hob is equipped with a pre-connected electricity
accessible.
supply cable, which is designed for single-phase
! The cable must not be bent or compressed.
connection. Connect the wires in accordance with the
! The cable must be checked regularly and replaced
instructions given in the following table and diagrams:
by authorised technicians only.
Voltage and
Electrical cable Wire connection
mains frequency
! The manufacturer declines any liability should
these safety measures not be observed.
: yellow/green
220-240V 1+N ~
! Do not remove or replace the power supply cable
N
: the two blue wires together
50 Hz
L
: brown and black together
for any reason. Its removal or replacement will void
the warranty and the CE marking. INDESIT does not
Other types of connection
assume liability for accidents or damage arising from
If the mains supply corresponds with one of the following:
replacement/removal of the original power supply
Voltage and mains frequency
cable. Replacement can only be accepted when
• 400V - 2+N ~ 50 Hz
carried out by personnel authorised by INDESIT and
• 220-240V 3 ~ 50 Hz
using an original spare part.
• 400V 3 - N ~ 50 Hz
13

Start-up and use
! The glue applied on the gaskets leaves traces of
Switching on the cooking zones
GB
grease on the glass. Before using the appliance, we
recommend you remove these with a special non-
Each cooking zone is controlled using a selector
abrasive cleaning product. During the first few hours
button
and a power adjustment device consisting
of use there may be a smell of rubber which will
of power level selector buttons between the values of 0
disappear very quickly.
and 9.
• To begin operating a cooking zone, press the
! A few seconds after the hob is connected to the
corresponding control button and set the desired
electricity supply, a buzzer will sound. The hob may
power level using the power level selector buttons
now be switched on.
between 0 and 9.
Types of noise during normal hob operation:
• Buzz: due to the vibration of the metallic parts that
Switching off the cooking zones
make up the induction element and the pot; it is
generated by the electromagnetic field required for
To switch off a cooking zone, select it using the
heating and increases as the power of the induction
element increases.
corresponding selector button
and:
• Soft whistle: heard when the pot placed on the
• Press power level selector button 0: this immediately
heating zone is empty; the noise disappears once
returns the power setting to 0 and the cooking zone
food or water is placed into the pot.
switches off.
• Crackle: produced by the vibration of materials on
the bottom of the pot due to the flow of parasitic
Booster function
currents caused by electromagnetic fields
(induction); can be more or less intense depending
The booster function for some of the cooking zones
on the material making up the bottom of the pot, and
may be used to shorten heating-up times. It may be
decreases as the pot dimensions increase.
Booster
activated by pressing the
button. The indicator
• Loud whistle: heard when two induction elements of
light directly above the button will illuminate. This
the same group function simultaneously at maximum
function boosts the power to 2000 W or 3000 W,
power and/or when the booster function is set on
depending on the size of the relevant cooking zone.
the larger element while the other is auto-adjusted.
The booster stops automatically after 4 minutes. While
Noise is reduced by decreasing the power level of
the booster for one of the cooking zones is active, the
the auto-adjusted induction element; pot bottom
corresponding front or rear cooking zone will operate
layers made of different kinds of materials are
at a reduced power level (e.g. if the booster for the
among the main causes of this noise.
rear left-hand hotplate has been activated, the power
• Fan noise: a fan is necessary to ensure the hob
level of the front left-hand hotplate will be reduced).
functions correctly and to safeguard the electronic
For further information, please refer to the Technical
unit from possible overheating. The fan functions
description of the models.
at maximum power when the large induction
element is at maximum power or when the booster
Programming the cooking duration
function is on; in all other cases, it works at average
power depending on the temperature detected.
! All the cooking zones may be programmed
Furthermore, the fan may continue to work even after
simultaneously, for a duration between 1 and 99
switching the hob off, if the temperature detected is
minutes.
high.
The types of noise listed above are due to induction
1. Select the cooking zone using the corresponding
technology and are not necessarily operational faults.
selector button.
! If the - or + button is pressed for an extended
2. Adjust the power level of the cooking zone.
period of time, the display scrolls quickly though the
3. Press the
programming button. The indicator
power levels and timer minutes.
light corresponding to the selected zone will start
flashing.
Switching on the hob
4. Set the cooking duration using the
- and +
buttons.
To switch the hob on, press and hold the button
for approximately one second.
5. Confirm by pressing the
button or automatic
selection occurs after 10 seconds.
14

The timer begins counting down immediately. A buzzer
Control panel lock
sounds for approximately 1 minute and the cooking
GB
zone switches off when the set programme has
When the hob is switched on, it is possible to lock the
finished.
oven controls in order to avoid accidental changes
Repeat the above procedure for each hotplate you
being made to the settings (by children, during
wish to programme.
cleaning, etc.). Press the
button to lock the control
panel: the indicator light above the button will switch
Using multiple programmes and the display
on.
To use any of the controls (e.g. to stop cooking), you
If one or more hotplates are programmed, the display
will show the data for the hotplate with the least time
must switch off this function. Press the
button for a
remaining, and the light corresponding to the position
few moments, the indicator light will switch off and the
of the hotplate will flash. The lights corresponding to
lock function will be removed.
the other hotplates programmed will be switched on.
To visualise the time remaining for the other
Switching off the hob
programmed hotplates, press the
button
repeatedly: the time remaining for each hotplate will be
Press the button to switch off the appliance - do not
shown sequentially in a clockwise order, starting from
rely solely on the pan sensor.
the front left hotplate.
If the control panel lock has been activated, the
controls will continue to be locked even after the hob is
Changing the programme
switched on again. In order to switch the hob on again,
you must first remove the lock function.
1. Press the
button repeatedly until the duration
“Demo” mode
you wish to change is shown.
2. Use the
buttons to set the new
It is possible to set the hob to a demonstration mode
duration.
where all the controls work normally but the heating
elements do not switch on. To activate the “demo”
3. Confirm by pressing the
button.
mode the hob must be switched on, with all the
hotplates switched off.
To cancel a programme, follow the above instructions.
• Press and hold the
+ and - buttons
At step 2, press the
- button: the duration decreases
simultaneously for 6 seconds. When the 6 seconds
progressively until it reaches 0 and switches off. The
have elapsed, the ON/OFF and CONTROLS
programme resets and the display exits programming
LOCKED indicator lights will flash for one second.
mode.
Release the
+ and - buttons and press the
Timer
button;
• The display will show the text DE and MO and the
The hob must be switched on.
hob will be switched off.
The timer can be used to set a duration up to 99 minutes.
• When the hob is switched on again it will be set to
the “demo” mode.
1. Press the
programming button until the timer
To exit this mode, follow the procedure described
indicator light is illuminated
.
above. The display will show the text DE and OF and
the hob will be switched off. When it is next switched
2. Set the desired duration using the
- and +
on, the hob will function normally.
buttons.
3. Confirm by pressing the
button.
Practical advice on using the appliance
The timer begins counting down immediately. When
the time has elapsed, a buzzer will sound (for one
! Use cookware made from materials which are
minute).
compatible with the induction principle (ferromagnetic
material). We especially recommend pans made
from: cast iron, coated steel or special stainless
steel adapted for induction. Use a magnet to test the
compatibility of the cookware.
15

GB
16
SUITABLE
UNSUITABLE
*
Cast iron
Copper,
Enamelled steel
Aluminium, Glass, Earthenware,
Special stainless steel
Ceramic, non magnetic Stainless steel
Safety switch
The appliance has a safety switch which automatically
switches the cooking zones off after they have been
in operation for a certain amount of time at a particular
power level. When the safety switch has been
triggered, the display shows “0”.
For example: the right rear hotplate is set to 5 and will
In addition, to obtain the best results from your hob:
switch off after 5 hours of continuous operation, while
• Use pans with a thick, flat base in order to fully
the front left hotplate is set to 2 and will switch off after
utilise the cooking zone.
8 hours.
Power level
Maximum operating time in hours
1
9
2
8
• Always use pans with a diameter which is large
3
7
enough to cover the hotplate fully, in order to use all
4
6
the available heat.
5
5
6
4
7
3
• Make sure that the base of the cookware is always
8
clean and dry, in order to fully utilise and extend the
2
life of both the cooking zones and the cookware.
9
1
• Avoid using the same cookware which has been
Buzzer
used on gas burners: the heat concentration on gas
burners may distort the base of the pan, causing it
This can also indicate several irregularities:
not to adhere correctly.
• An object (a pan, cutlery, etc.) has been placed on
the control panel for more than 10 seconds.
Safety devices
• Something has been spilt on the control panel.
• A button has been pressed for too long. All of the
Pan sensor
above situations may cause the buzzer to sound.
Remove the cause of the malfunction to stop the
Each cooking zone is equipped with a pan sensor
buzzer. If the cause of the problem is not removed,
device. The hotplate only emits heat when a pan with
the buzzer will keep sounding and the hob will
suitable measurements for the cooking zone is placed
switch off.
on it. If the indicator light is flashing, it may indicate:
• An incompatible pan
• A pan whose diameter is too small
• The pan has been removed from the hotplate.
Overheating protection
If the electronic elements overheat, the hob switches
off automatically and
F appears on the display,
followed by a flashing number. When the temperature
has reached a suitable level, this message disappears
and the hob may be used again.

Practical cooking advice
GB
17
Pressure cooking
Frying
ª
Pressure cooker
cooking
Very high-flame
•
Grilling Boiling
•
Crêpes Cooking on a high flame and browning
(roasts, steaks, escalopes, fish fillets,
cooking
High-flame
fried eggs)
¶
¶
Fast thickening (liquid juices)
Boiling water (pasta, rice, vegetables)
Milk
§
§
Slow thickening (dense juices)
S
Medium-flame cookingLow-flame
S
Bain-marie cooking Pressure cooking after whistle
¢
¢
£
Low-flame cooking (stews)
cooking
Reheating dishes
™
™
Very
Chocolate sauce Keeping food hot
cooking
low-flame
¡

Precautions and tips
! This appliance has been designed and manufactured
• When unplugging the appliance, always pull the
GB
in compliance with international safety standards. The
plug from the mains socket; do not pull on the cable.
following warnings are provided for safety reasons and
• Never perform any cleaning or maintenance work
must be read carefully.
without having disconnected the appliance from the
electricity mains.
This appliance conforms to the following
• The appliance should not be operated by people
European Economic Community directives:
(including children) with reduced physical, sensory
or mental capacities, by inexperienced individuals
- 2006/95/EEC dated 12/12/06 (Low Voltage) and
or by anyone who is not familiar with the product.
subsequent amendments;
These individuals should, at the very least, be
- 2004/108/EEC dated 15/12/04 (Electromagnetic
supervised by someone who assumes responsibility
Compatibility) and subsequent amendments;
for their safety or receive preliminary instructions
- 93/68/EEC dated 22/07/93 and subsequent amendments.
relating to the operation of the appliance.
- 1275/2008 stand-by/off mode.
• For the attention of wearers of pacemakers or other
active implants:
The hob complies with all current standards on
General safety
electromagnetic interference.
Your induction hob is therefore perfectly in keeping
! Make sure that the air inlet behind the fan grille is
with legal requirements (89/336/CEE directives). It
never obstructed. The built-in hob should, in fact, be
is designed not to create interference on any other
provided with suitable ventilation for the cooling of the
electrical apparatus being used on condition that
electronic components used in the appliance.
the apparatus in question also complies with this
! We advise against the installation of an induction hob
legislation.
above an under-the-counter refrigerator (heat) or above
Your induction hob generates short-range magnetic
a washing machine (vibrations). In fact, there would
fields.
be insufficient space for the ventilation of electronic
To avoid any interference between your induction
components.
hob and a pacemaker, the latter must be designed
• The appliance was designed for domestic use inside
to comply with relevant regulations.
the home and is not intended for commercial or
In this respect, we can only guarantee our own
industrial use.
product conformity. Please consult the pacemaker
• The appliance must not be installed outdoors, even in
manufacturer or your doctor concerning its
covered areas. It is extremely dangerous to leave the
conformity or any possible incompatibility.
appliance exposed to rain and storms.
• Do not let children play with the appliance.
• Do not touch the appliance when barefoot or with wet or
• Do not place metal objects (knives, spoons, pan
damp hands and feet.
lids, etc.) on the hob as they may become hot.
• The appliance must be used by adults only for the
• The appliance is not intended to be operated by
preparation of food, in accordance with the instructions
means of an external timer or separate remote-
provided in this booklet. Do not use the hob as a
control system.
worktop or chopping board.
• The glass ceramic hob is resistant to mechanical
shocks, but it may crack (or even break) if hit with a
sharp object such as a tool. If this happens, disconnect
the appliance from the electricity mains immediately and
Disposal
contact a Service Centre.
• Ensure that power supply cables of other electrical
• When disposing of packaging material: observe local
appliances do not come into contact with the hot parts
legislation so that the packaging may be reused.
of the hob.
• The European Directive 2002/96/EC relating to Waste
• Remember that the cooking zones remain relatively hot
Electrical and Electronic Equipment (WEEE) states
for at least thirty minutes after they have been switched
that household appliances should not be disposed of
off. An indicator light provides a warning when residual
using the normal solid urban waste cycle. Exhausted
heat is present (see Start-up and use).
appliances should be collected separately in order to
• Keep any object which could melt away from the
optimise the cost of re-using and recycling the materials
hob, for example plastic and aluminium objects, or
inside the machine, while preventing potential damage
products with a high sugar content. Be especially
to the atmosphere and to public health. The crossed-out
careful when using plastic film and aluminium foil or
dustbin is marked on all products to remind the owner of
packaging: if placed on surfaces which are still hot,
their obligations regarding separated waste collection.
they may cause serious damage to the hob.
For further information relating to the correct disposal of
• Always make sure that pan handles are turned
exhausted household appliances, owners may contact
towards the centre of the hob in order to avoid
the public service provided or their local dealer.
accidental burns.
18

Care and maintenance
Switching the appliance off
Stainless steel frame (only in models with outer frame)
Stainless steel can be marked by hard water which has
GB
Disconnect your appliance from the electricity supply
been left on the surface for a long time, or by cleaning
before carrying out any work on it.
products containing phosphorus.
After cleaning, it is advisable to rinse the surface well
and dry it thoroughly. If water is spilt on the surface,
Cleaning the appliance
dry it quickly and thoroughly.
! Do not use abrasive or corrosive detergents
! Some hobs have an aluminium frame which is
(for example, products in spray cans for cleaning
similar to stainless steel. Do not use any cleaning or
barbecues and ovens), stain removers, anti-rust
degreasing products which are not suitable for use
products, powder detergents or sponges with abrasive
with aluminium.
surfaces: these may scratch the surface beyond repair.
Disassembling the hob
! Never use steam cleaners or pressure cleaners on the
appliance.
If it is necessary to disassemble the hob:
1. Loosen the screws fixing the alignment springs on
• It is usually sufficient simply to wash the hob using
each side.
a damp sponge and dry it with absorbent kitchen
2. Loosen the screws holding the fixing hooks in each
towel.
corner.
3. Take the hob out of its installation cavity.
• If the hob is particularly dirty, rub it with a special
glass ceramic cleaning product, then rinse well and
! Do not attempt to repair the appliance yourself. If the
dry thoroughly.
appliance breaks down, contact a Service Centre.
• To remove more stubborn dirt, use a suitable
Technical description of the models
scraper. Remove spills as soon as possible, without
waiting for the appliance to cool, to avoid residues
The induction system is the quickest existing way
forming crusty deposits. You can achieve excellent
of cooking. Unlike traditional hotplates where the
results by using a rust-proof steel wire sponge -
cooking zone heats up, with the induction system
specifically designed for glass ceramic surfaces -
heat is generated directly inside pans which have
soaked in soapy water.
ferromagnetic bases.
• If any plastic or sugary substances are accidentally
Key:
melted on the hob, remove them immediately with
I = single induction cooking zone
the scraper, while the surface is still hot.
B = booster: the power level of the cooking zone may
be boosted to 3000 W
• Once it is clean, the hob may be treated with
* = the maximum power level is limited while the
a special protective maintenance product: the
booster is activated for the relevant rear cooking
invisible film left by this product protects the surface
zone (see Start-up and use).
from drips during cooking. This maintenance task
should be carried out while the appliance is warm
(not hot) or cold.
Hobs
KIO 633 T Z
Cooking zone Power (W)
• Always remember to rinse the appliance well with
Back Left
I 1400 – B 2000* – 600 se Front. Left*
clean water and dry it thoroughly: residues can
Back Right
I 3000 – B 4000
become encrusted during subsequent cooking
Front Left
I 2200 – B 3000* – 1600 se Back. Left *
Total power
7600
processes.
19

Installation
! Conserver ce mode d’emploi pour pouvoir le
FR
consulter à tout moment. En cas de vente, de
cession ou de déménagement, veiller à ce qu’il
suive l’appareil pour informer le nouveau propriétaire
min. 20 mm
sur son fonctionnement et lui fournir les conseils
correspondants.
5 mm
TIROIR
! Lire attentivement les instructions : elles contiennent
des conseils importants sur l’installation, l’utilisation et
la sécurité de cet appareil.
min. 40 mm
Positionnement
! Les emballages ne sont pas des jouets pour
enfants, il faut les mettre au rebut en respectant la
réglementation sur le tri sélectif des déchets (voir
min. 20 mm
Précautions et conseils).
! L’installation doit être effectuée par un professionnel
du secteur conformément aux instructions du fabricant.
5 mm
Une mauvaise installation peut causer des dommages
CHALEUR
à des personnes, des animaux ou des biens.
TOURNANTE
min. 40 mm
Encastrement
Pour garantir le bon fonctionnement de l’appareil, il
faut que le meuble possède des caractéristiques bien
précises :
• le matériau du plan d’appui doit pouvoir résister à une
température d’environ 100°C;
• en cas d’installation de la table de cuisson au-dessus
d’un four, il faut que ce dernier soit équipé d’un
dispositif de refroidissement par ventilation forcée ;
• éviter d’installer la table de cuisson au-dessus d’un
lave-vaisselle : si c’est le cas, prévoir une séparation
étanche entre les deux appareils ;
• selon la table de cuisson à installer (voir gures),
la découpe du meuble doit avoir les dimensions
suivantes :
590
48
520
560 +/- 1
490 +/- 1
Aération
Pour permettre une bonne aération et pour éviter toute
surchauffe des surfaces autour de l’appareil, la table de
cuisson doit être positionnée :
• à au moins 40 mm de distance du mur arrière;
• de manière à ce qu’il reste au moins 20 mm de
distance entre la découpe d’encastrement et le
meuble en dessous.
• Les meubles jouxtant la table, dont la hauteur dépasse
celle du plan de cuisson, doivent être placés à au
moins 600 mm du bord du plan.
20
CÔTÉ AVANT DE LA
TABLE DE CUISSON
PLAN DE
TRAVAIL
30
40
TABLE DE CUISSON
RETOURNÉE





